4 izbová novostavba s garážou v radovej zástavbe
- [6.10. 2025]Zmazať/ Upraviť/ Topovať








Ponúkame na predaj novostavbu 4 izbového poschodového rodinného domu s garážou v radovej zástavbe vo vyhľadávanej lokalite v Nových Zámkoch.
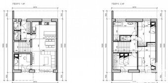
Dispozícia: Prízemie : vstupná chodba, technická miestnosť, samostatné WC, schodisko, spálňa, kuchyňa s jedálňou a priestranná obývačka s výstupom na terasu.
poschodie: 3 izby, 2 balkóny, samostatné WC, kúpelňa s vaňou aj so sprchou. Podlahová plocha domu je spolu 170 m 2, z toho prízemie má 85 m2 a poschodie 85 m 2.
Cena domu je 269900,- eur.
Vlastníctvo: osobne
Stav: novostavba
Celková plocha domu: 170 m2
Plocha pozemku: 230
Počet izieb: 4
Balkón: 2 x
WC: 2 x
Kúpeľňa: 1 x
Garáž: 1
Energetický certifikát: A
El. napätie: 230/400V
Parkovanie: vlastné vyhradené
Voda: verejný vodovod
Kanalizácia: Verejná kanalizácia
Materiál: ytong
Kúrenie podlahové – elektrické.
V cene nehnuteľnosti je právny servis:
– vypracovanie kúpnej zmluvy a rezervačnej zmluvy
– všetky poplatky spojené s kúpnou zmluvou ( notárskou zápisnicou)
– všetky poplatky spojené na katastri nehnuteľností
– odporučíme znalca, geodeta, notára, advokáta
– vyhotovujeme potvrdenie trhovej hodnoty nehnuteľností, ktoré sú potrebné pre dedičské konania
– zabezpečíme finančných poradcov na financovanie cez Hypotekárny úver zo všetkých bánk.
Pre viac informácií nás neváhajte kontaktovať na tel.č. 0907707092.
Dispozícia: Prízemie : vstupná chodba, technická miestnosť, samostatné WC, schodisko, spálňa, kuchyňa s jedálňou a priestranná obývačka s výstupom na terasu.
poschodie: 3 izby, 2 balkóny, samostatné WC, kúpelňa s vaňou aj so sprchou. Podlahová plocha domu je spolu 170 m 2, z toho prízemie má 85 m2 a poschodie 85 m 2.
Cena domu je 269900,- eur.
Vlastníctvo: osobne
Stav: novostavba
Celková plocha domu: 170 m2
Plocha pozemku: 230
Počet izieb: 4
Balkón: 2 x
WC: 2 x
Kúpeľňa: 1 x
Garáž: 1
Energetický certifikát: A
El. napätie: 230/400V
Parkovanie: vlastné vyhradené
Voda: verejný vodovod
Kanalizácia: Verejná kanalizácia
Materiál: ytong
Kúrenie podlahové – elektrické.
V cene nehnuteľnosti je právny servis:
– vypracovanie kúpnej zmluvy a rezervačnej zmluvy
– všetky poplatky spojené s kúpnou zmluvou ( notárskou zápisnicou)
– všetky poplatky spojené na katastri nehnuteľností
– odporučíme znalca, geodeta, notára, advokáta
– vyhotovujeme potvrdenie trhovej hodnoty nehnuteľností, ktoré sú potrebné pre dedičské konania
– zabezpečíme finančných poradcov na financovanie cez Hypotekárny úver zo všetkých bánk.
Pre viac informácií nás neváhajte kontaktovať na tel.č. 0907707092.
|
|
Kontaktovať inzerenta e-mailom
Kontaktovať e-mailom môže iba overený užívateľ.
Overenie je zadarmo.
Vaše telefónne číslo *
Kontaktovať e-mailom môže iba overený užívateľ.
Overenie je zadarmo.
Vaše telefónne číslo *
Podobné inzeráty

Typ: Rodinný dom
Ulica: .
Obec: Nové Zámky
S poverením majiteľa ponúkame 2 bytové jednotky v radovej zástavbe v okrajovej časti v Nových Zámkoch s úžitkovou plochou 170 m2/1 dom. Každý dom má zdvojené a odizolované múry, oddelené dilatačnou škárou, je napojený na IS, kúrenie elektrick ...
230 000 €
Nové Zámky
940 02
940 02
60 x
Označiť zlý inzerát Chybnú kategóriu Ohodnotiť užívateľa Zmazať/Upraviť/Topovať

Typ: Rodinný dom
Ulica: .
Obec: Nové Zámky
S poverením majiteľa nehnuteľnosti ponúkame starší štýlový rodinný dom:
- nachádza sa na peknej zelenej ulici na 500 m2 pozemku
- zastavaná plocha domu 92 m2, je čiastočne podpivničený a má 2 nadzemné podlažia
- dispozícia na prízemí: vstupná chodbičk ...
180 000 €
Nové Zámky
940 02
940 02
52 x
Označiť zlý inzerát Chybnú kategóriu Ohodnotiť užívateľa Zmazať/Upraviť/Topovať

DOM na predaj, kde láska má svoje miesto!
Hľadáte miesto, kde sa história stretáva s rodinnou atmosférou a priestorom pre nové začiatky?
Starostlivo udržiavaný a milovaný - nie je to len stavba z tehál, ale skutočný DOM, ktorý čaká na svoju ďalšiu kapitolu.
Dom v ikonickom tvare ´kocky´ ponúka ...
239 000 €
Nové Zámky
940 02
940 02
155 x
Označiť zlý inzerát Chybnú kategóriu Ohodnotiť užívateľa Zmazať/Upraviť/Topovať

Sprostredkujeme predaj 7 izbového rodinného domu vo vyhľadávanej lokalite v Nových Zámkoch.
Nehnuteľnosť stojí na 4,03 árovom pozemku.
Úžitková plocha je 346 m2, zastavaná je 115,50 m2 a pristavaná garáž má 36 m2.
Nehnuteľnosť pozostáva z troch podlaží: suterén, prízemie a poschodie.
Dom prešiel ...
260 000 €
Nové Zámky
940 02
940 02
40 x
Označiť zlý inzerát Chybnú kategóriu Ohodnotiť užívateľa Zmazať/Upraviť/Topovať

Typ: Rodinný dom
Obec: Nové Zámky
Ponúkame Vám na predaj 4-izbovú novostavbu rodinného domu (bungalov) v meste Nové Zámky.
Plocha: úžitková 100m2, zastavaná 145m2, pozemku 763m2.
Dispozičné riešenie: vstupná chodba, samostatné WC,
denná časť: obývačka spojená s kuchyňou kde sa nachá ...
339 900 €
Nové Zámky
940 02
940 02
194 x
Označiť zlý inzerát Chybnú kategóriu Ohodnotiť užívateľa Zmazať/Upraviť/Topovať

Typ: Rodinný dom
Ulica: Nové Zámky
Obec: Nové Zámky
Ponúkame Vám na predaj rodinné domy- radovú výstavbu 12 rodinných domov len 10 km od Nových Zámkov v meste Šurany.
Projekt ponúka na predaj dvojpodlažné rodinné domy postavené na kľúč ,vrátane pozemku, ktoré sú vynikajúcou voľbou pre rodiny s ...
249 000 €
Nové Zámky
940 02
940 02
44 x
Označiť zlý inzerát Chybnú kategóriu Ohodnotiť užívateľa Zmazať/Upraviť/Topovať

Typ: Rodinný dom
Ulica: Nové Zámky
Obec: Nové Zámky
Ponúkame Vám na predaj domy a vily. Plocha: úžitková 170m2 ( (2x 85m2), pozemku 226m2. Podlaha: plávajúca, dlažba. Steny: stierky, omietky. Okná: plastové. Vybavenie kúpeľne: klasická vaňa, sprchovací kút.Stav objektu: vo výstavbe. Konštrukcia ...
269 900 €
Nové Zámky
940 02
940 02
54 x
Označiť zlý inzerát Chybnú kategóriu Ohodnotiť užívateľa Zmazať/Upraviť/Topovať

Typ: Rodinný dom
Ulica: Nové Zámky
Obec: Nové Zámky
Ponúkame Vám na predaj 7 izbový poschodový rodinný dom ktorý je čiastočne zariadený v meste Nové Zámky. Plocha: úžitková 200m2, zastavaná 130m2, pozemku 553m2. Podlaha: plávajúca, dlažba. Steny: stierky, omietky. Okná: plastové. V dome sa nach ...
239 000 €
Nové Zámky
940 02
940 02
177 x
Označiť zlý inzerát Chybnú kategóriu Ohodnotiť užívateľa Zmazať/Upraviť/Topovať

Typ: Rodinný dom
Ulica: Nové Zámky
Obec: Nové Zámky
V meste Nové Zámky vznikne jedinečná štvrť pozostávajúca z rodinných domov a množstva zelene.
Projekt ponúka 21 moderných dvojpodlažných rodinných domov postavené na kľúč ,vrátane pozemku, ktoré sú vynikajúcou voľbou pre rodiny s deťmi. Plocha ...
335 000 €
Nové Zámky
940 02
940 02
193 x
Označiť zlý inzerát Chybnú kategóriu Ohodnotiť užívateľa Zmazať/Upraviť/Topovať

Typ: Rodinný dom
Ulica: Nové Zámky
Obec: Nové Zámky
V meste Nové Zámky vznikne jedinečná štvrť pozostávajúca z rodinných domov a množstva zelene.
Projekt ponúka 21 moderných dvojpodlažných rodinných domov postavené na kľúč ,vrátane pozemku, ktoré sú vynikajúcou voľbou pre rodiny s deťmi. Plocha ...
335 000 €
Nové Zámky
940 02
940 02
171 x
Označiť zlý inzerát Chybnú kategóriu Ohodnotiť užívateľa Zmazať/Upraviť/Topovať