Investičná príležitosť: Moderná budova na bytový projekt v P
- TOP - [9.11. 2025]Zmazať/ Upraviť/ Topovať






























Predstavujeme vám jedinečnú príležitosť pre investíciu v srdci Piešťan. Táto moderná, 4-podlažná budova, postavená v roku 2008, je ideálnym miestom pre váš ďalší developérsky projekt. Nachádza sa na atraktívnej adrese – križovatke ulíc Teplická a Bratislavská, len kúsok od centra mesta, čo zaručuje výbornú dostupnosť a pohodlie pre budúcich obyvateľov.
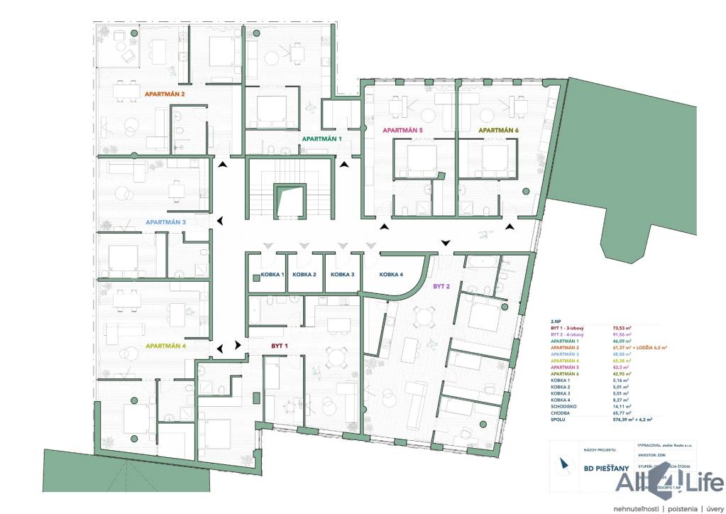
Budova ponúka rozsiahlu úžitkovú plochu 1.938,15 m², ktorá je pripravená na prestavbu na bytový dom. Vďaka schváleniu v územnom pláne môžete začať s výstavbou moderných bytov, ktoré budú spĺňať všetky požiadavky súčasného bývania.
Parkovanie je zabezpečené v suteréne budovy, kde je k dispozícii 22 parkovacích miest. Vstupná chodba a schodisko sú pokryté elegantným mramorom, čo dodáva priestoru luxusný vzhľad. Na streche sa nachádza kotolňa, technická miestnosť vzduchotechniky a centrálna jednotka chladenia, čo zaručuje efektívne a úsporné vykurovanie a chladenie budovy.
Budova je postavená z tehly a je vybavená plastovými oknami, čo prispieva k jej energetickej úspornosti. Disponuje aj bezbariérovým prístupom, čo zvyšuje jej atraktivitu pre široké spektrum potenciálnych obyvateľov. Všetky inžinierske siete sú zavedené, vrátane verejného vodovodu, kanalizácie, plynu a elektrického napätia 230/400V.
Ak hľadáte investičnú príležitosť s vysokým potenciálom v lukratívnej lokalite, táto budova je presne to, čo potrebujete. Neváhajte a kontaktujte nás pre viac informácií alebo si dohodnite termín obhliadky. Cena nehnuteľnosti je na vyžiadanie a zahŕňa kompletný realitný servis vrátane poradenstva a vypracovania zmluvnej dokumentácie.
Pre viac informácií nás kontaktujte na telefónnom čísle 0903 476 290 alebo e-mailom na martin.haring@allforlife.sk. Sme tu pre vás, aby sme vám pomohli uskutočniť váš investičný sen.
Popis nehnuteľnosti:
- 4-podlažná Moderná kancelárska budova
- kvalitné, moderné a energeticky úsporné priestory s celkovou plochou 1.938,15m²
- Výťah
- Svetlá výška 2,5m - 2,7m
- Parkovanie v suteréne (22 miest)
- Vstupná chodba, schodisko – mramorové
- Na streche sa nachádza kotolňa, technická miestnosť vzduchotechniky a centrálna jednotka chladenia
- rozloha pozemku 1.049m²
- Architektonický návrh a technická špecifikácia je atraktívna a efektívna pre užívateľa / investora.
Poloha:
- Teplická 147, 921 01 Piešťany, Slovensko
- atraktívna lokalita s dobrou dostupnosťou do centra mesta,
- križovatka ulíc Teplická a Bratislavská,
- v blízkosti autobusovej a vlakovej stanice
Volajte 0903 476 290, alebo píšte martin.haring@allforlife.sk, poprípade FB @allforlife, IG all_4_life_official a samozrejme youtube All 4 Life.
Dodatok k cene: , vrátane provízie
Obytná plocha: 1938.15m²
Celková rozloha: 1938.15m²
Rozloha pozemku: 1049m²
Úžitková plocha: 1938.15m²
Vlastníctvo: firemné
Stav: pôvodný
Odvoz odpadu: áno - separovaný
Voda: verejný vodovod
El. napätie: 230/400V
Plyn: áno
Kan
Budova ponúka rozsiahlu úžitkovú plochu 1.938,15 m², ktorá je pripravená na prestavbu na bytový dom. Vďaka schváleniu v územnom pláne môžete začať s výstavbou moderných bytov, ktoré budú spĺňať všetky požiadavky súčasného bývania.
Parkovanie je zabezpečené v suteréne budovy, kde je k dispozícii 22 parkovacích miest. Vstupná chodba a schodisko sú pokryté elegantným mramorom, čo dodáva priestoru luxusný vzhľad. Na streche sa nachádza kotolňa, technická miestnosť vzduchotechniky a centrálna jednotka chladenia, čo zaručuje efektívne a úsporné vykurovanie a chladenie budovy.
Budova je postavená z tehly a je vybavená plastovými oknami, čo prispieva k jej energetickej úspornosti. Disponuje aj bezbariérovým prístupom, čo zvyšuje jej atraktivitu pre široké spektrum potenciálnych obyvateľov. Všetky inžinierske siete sú zavedené, vrátane verejného vodovodu, kanalizácie, plynu a elektrického napätia 230/400V.
Ak hľadáte investičnú príležitosť s vysokým potenciálom v lukratívnej lokalite, táto budova je presne to, čo potrebujete. Neváhajte a kontaktujte nás pre viac informácií alebo si dohodnite termín obhliadky. Cena nehnuteľnosti je na vyžiadanie a zahŕňa kompletný realitný servis vrátane poradenstva a vypracovania zmluvnej dokumentácie.
Pre viac informácií nás kontaktujte na telefónnom čísle 0903 476 290 alebo e-mailom na martin.haring@allforlife.sk. Sme tu pre vás, aby sme vám pomohli uskutočniť váš investičný sen.
Popis nehnuteľnosti:
- 4-podlažná Moderná kancelárska budova
- kvalitné, moderné a energeticky úsporné priestory s celkovou plochou 1.938,15m²
- Výťah
- Svetlá výška 2,5m - 2,7m
- Parkovanie v suteréne (22 miest)
- Vstupná chodba, schodisko – mramorové
- Na streche sa nachádza kotolňa, technická miestnosť vzduchotechniky a centrálna jednotka chladenia
- rozloha pozemku 1.049m²
- Architektonický návrh a technická špecifikácia je atraktívna a efektívna pre užívateľa / investora.
Poloha:
- Teplická 147, 921 01 Piešťany, Slovensko
- atraktívna lokalita s dobrou dostupnosťou do centra mesta,
- križovatka ulíc Teplická a Bratislavská,
- v blízkosti autobusovej a vlakovej stanice
Volajte 0903 476 290, alebo píšte martin.haring@allforlife.sk, poprípade FB @allforlife, IG all_4_life_official a samozrejme youtube All 4 Life.
Dodatok k cene: , vrátane provízie
Obytná plocha: 1938.15m²
Celková rozloha: 1938.15m²
Rozloha pozemku: 1049m²
Úžitková plocha: 1938.15m²
Vlastníctvo: firemné
Stav: pôvodný
Odvoz odpadu: áno - separovaný
Voda: verejný vodovod
El. napätie: 230/400V
Plyn: áno
Kan
|
| |||||||||||||||||||||||||||||||
Kontaktovať inzerenta e-mailom
Kontaktovať e-mailom môže iba overený užívateľ.
Overenie je zadarmo.
Vaše telefónne číslo *
Kontaktovať e-mailom môže iba overený užívateľ.
Overenie je zadarmo.
Vaše telefónne číslo *









