Predaj stavebný pozemok 1140 m2, Vydumanec, Líščia ul.
- [6.10. 2025]Zmazať/ Upraviť/ Topovať











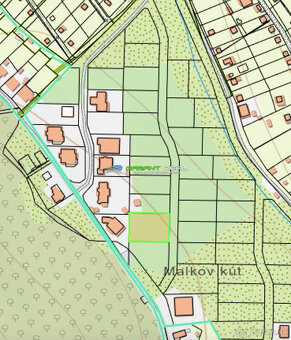
Ponúkame na predaj stavebný pozemok o výmere 1140 m2, Prešov, Vydumanec, Líščia ulica.
ZÁKLADNÉ ÚDAJE:
- rovinatý až mierne svahovitý pozemok nachádzajúci sa pod lesom vedľa zástavby existujúcich rodinných domov, na okraji mestskej časti Prešov - Vydumanec
- slnečný pozemok
- v územnom pláne na výstavbu rodinných domov
- pozemok má pekný výhľad na okolitú prírodu
- na prístupovej ceste je dohoda na vecnom bremene (momentálne v riešení)
ROZMERY POZEMKU:
- dĺžka 40 m, šírka 29 m
INŽINIERSKE SIETE:
- elektrický rozvádzač priamo na pozemku
DOPLŇUJÚCE INFORMÁCIE:
- MHD v dosahu cca 400 m
CENA:
- 141.650,- € za celý pozemok
- 123,60 €/m2
VIAC AKO 15 ROKOV NA TRHU - KANCELÁRIA ROKA 2019, 2020
V prípade záujmu nás kontaktujte na tel. čísle 0907 030 623,
mailom na adrese ponuky@garantreal.sk
Navštívte nás aj osobne v kancelárii na Hlavnej ulici 70 v Prešove.
VIAC AKO 15 ROKOV NA TRHU - KANCELÁRIA ROKA 2019, 2020
V prípade záujmu nás kontaktujte na tel. čísle 0907 030 623,
mailom na adrese ponuky@garantreal.sk
Navštívte nás aj osobne v kancelárii na Hlavnej ulici 70 v Prešove.
ZÁKLADNÉ ÚDAJE:
- rovinatý až mierne svahovitý pozemok nachádzajúci sa pod lesom vedľa zástavby existujúcich rodinných domov, na okraji mestskej časti Prešov - Vydumanec
- slnečný pozemok
- v územnom pláne na výstavbu rodinných domov
- pozemok má pekný výhľad na okolitú prírodu
- na prístupovej ceste je dohoda na vecnom bremene (momentálne v riešení)
ROZMERY POZEMKU:
- dĺžka 40 m, šírka 29 m
INŽINIERSKE SIETE:
- elektrický rozvádzač priamo na pozemku
DOPLŇUJÚCE INFORMÁCIE:
- MHD v dosahu cca 400 m
CENA:
- 141.650,- € za celý pozemok
- 123,60 €/m2
VIAC AKO 15 ROKOV NA TRHU - KANCELÁRIA ROKA 2019, 2020
V prípade záujmu nás kontaktujte na tel. čísle 0907 030 623,
mailom na adrese ponuky@garantreal.sk
Navštívte nás aj osobne v kancelárii na Hlavnej ulici 70 v Prešove.
VIAC AKO 15 ROKOV NA TRHU - KANCELÁRIA ROKA 2019, 2020
V prípade záujmu nás kontaktujte na tel. čísle 0907 030 623,
mailom na adrese ponuky@garantreal.sk
Navštívte nás aj osobne v kancelárii na Hlavnej ulici 70 v Prešove.
|
|
Kontaktovať inzerenta e-mailom
Kontaktovať e-mailom môže iba overený užívateľ.
Overenie je zadarmo.
Vaše telefónne číslo *
Kontaktovať e-mailom môže iba overený užívateľ.
Overenie je zadarmo.
Vaše telefónne číslo *
Podobné inzeráty

Ponúkame na predaj stavebný pozemok o výmere 800 m2, lokalita Prešov, Šalgovík, Teriakovská ulica.
ZÁKLADNÉ ÚDAJE:
- rovinatý pozemok nachádzajúci sa za zástavbou existujúcich rodinných domov v lokalite Šalgovík
- slnečný pozemok
- prístupová c ...
164 800 €
Prešov
080 01
080 01
5 x
Označiť zlý inzerát Chybnú kategóriu Ohodnotiť užívateľa Zmazať/Upraviť/Topovať

Na predaj stavebný pozemok v Nižnej Šebastovej v Prešove, Vranovská ulica (smer Kapušany). Pozemky sú 2 a nachádzajú sa v priemyselnej zóne, sú rovinaté a majú rozlohu 21.088m² (310m x 68m) a 7.097m² (590m x 12m). Podľa územnoplánovacej informácie mesta Prešov, sú pozemky určené pre priemyselnú výro ...
Dohodou
Prešov
080 01
080 01
9 x
Označiť zlý inzerát Chybnú kategóriu Ohodnotiť užívateľa Zmazať/Upraviť/Topovať

Ak uvažujete v blízkej dobe nad výstavbou rodinného domu v lukratívnej lokalite toto je pre Vás ideálna príležitosť.
So súhlasom majiteľa Vám ponúkame na predaj rovinatý stavebný pozemok s výmerou 593 m² v Prešove , Nižnej Šebastovej v smere na Fintice, ul. Rezbárska.
Ponúkaný stavebný pozemok ...
110 000 €
Prešov
080 01
080 01
28 x
Označiť zlý inzerát Chybnú kategóriu Ohodnotiť užívateľa Zmazať/Upraviť/Topovať

- Ing. Juraj Antol, ANTE REALITY (viac ako 25 ročné skúsenosti, člen Realitnej únie)
- pozemok (KAMEŇOLOM s LESOM) v k.ú. Vyšná Šebastová, lokalita MAGLOVEC,
okres Prešov
- KAMEŇOLOM obsahujúci kvalitný ANDEZIT o veľkosti cca 23,77 ha + LES cca 19-20 ha
- realizovaný GEOLOGICKÝ PRIESKUM (vrty do ...
Dohodou
Prešov
080 01
080 01
194 x
Označiť zlý inzerát Chybnú kategóriu Ohodnotiť užívateľa Zmazať/Upraviť/Topovať

ARCHEUS reality Prešov Vám ponúka na predaj 🏭 priemyselný pozemok nachádzajúci sa pri vjazde do obce Župčany. Zo Župčan je veľmi dobré dopravné spojenie do Prešova vzdialeného 6km a jednoduchý prístup na diaľnicu smerom do Košíc, Popradu.
3D OBHLIADKA 🎥 ►https://bit.ly/PredajŽupčany◄
📍 Popis:
✅ ...
104 000 €
Prešov
080 01
080 01
183 x
Označiť zlý inzerát Chybnú kategóriu Ohodnotiť užívateľa Zmazať/Upraviť/Topovať

🌟 Investičný pozemok v Prešove – Nižná Šebastová, Agátová ulica 🌟
Ponúkame na predaj slnečný rovinatý pozemok o výmere 1100 m² (11 árov) (dá sa však rozdeliť na polovicu 550m² + 550 m²)
v atraktívnej časti Prešova – Nižná Šebastová.
Pozemok sa predáva ako investičný, nakoľko je potrebné vys ...
85 000 €
Prešov
080 01
080 01
170 x
Označiť zlý inzerát Chybnú kategóriu Ohodnotiť užívateľa Zmazať/Upraviť/Topovať

Predám pozemok v r.o. Lipovce - chaty, zastavana plocha, les, potok, skaly aj lúka 12000m2,el. energia na pozemku, vhodne na ranč, farmu usadlosť, kemping a podobne
159 000 €
Prešov
080 01
080 01
183 x
Označiť zlý inzerát Chybnú kategóriu Ohodnotiť užívateľa Zmazať/Upraviť/Topovať

Dobrý deň,
Adass reality Vám ponúka na predaj podiel na pozemku o veľkosti 1/2 (11 000 m2), celková výmera pozemku je 22 000 m2, druhá polovica je vo vlastníctve SPF. Spomínaný pozemok sa nachádza v obci Chmeľovec, ktorá je vzdialená približne 10km od krajského mesta Prešov. Nachádza v tichej obl ...
V texte
Prešov
080 01
080 01
303 x
Označiť zlý inzerát Chybnú kategóriu Ohodnotiť užívateľa Zmazať/Upraviť/Topovať

BENARD reality ponúka na predaj pozemok priamo v meste Prešov, v časti pod Wilec Hôrkou.
Pozemok sa nachádza v zastavanej časti mesta s možnosťou budúcej výstavby rodinného domu.
Pozemok je mierne svahovitý. Prístupová cesta je mestská asfaltová.
Na hranici pozemku sú všetky siete (okrem kan ...
130 000 €
Prešov
080 01
080 01
373 x
Označiť zlý inzerát Chybnú kategóriu Ohodnotiť užívateľa Zmazať/Upraviť/Topovať

Ponúkame na predaj EXKLUZÍVNE len v KING REAL pozemok o výmere 5602 m². Pozemok sa nachádza v meste Prešov - časť Kúty (nad záhradkárskou oblasťou).
ZÁKLADNÉ ÚDAJE:
mierne svahovitý pozemok
5602 m² , rozmery pozemku cca 20 x 280 m
pozemok je slnečný , nachádza sa nad záhradkárskou oblasťou a ...
V texte
Prešov
080 01
080 01
169 x
Označiť zlý inzerát Chybnú kategóriu Ohodnotiť užívateľa Zmazať/Upraviť/Topovať