RADO | 4 izbový penthouse 155m² | Greencorner | Bratislava-N
- [6.10. 2025]Zmazať/ Upraviť/ Topovať











4-izbový penthouse s terasou a tromi lodžiami | Green Corner – Račianska 69, Bratislava – Nové Mesto
Luxusný priestor, panoramatické výhľady, zelený pokoj a mesto na dosah.
Predstavte si bývanie, kde máte viac než 50 m² exteriérového priestoru – raňajky na terase s výhľadom, popoludňajší relax v lodžii a večerné posedenie pod hviezdami. To všetko v energeticky úspornom a architektonicky výnimočnom projekte, kde sa dizajn stretáva s prírodou.
Prečo si zamilujete tento byt :
-Interiér: 104 m² + exteriér: 50 m² – dokopy 155,71 m²
-Veľká terasa (34,74 m²) + 3 lodžie – ideálne na oddych, prácu aj zábavu
-Obývačka s rozlohou 30 m², oddelená kuchyňa a 3 samostatné izby
-Prémiový štandard:
-Klimatizácia Samsung WindFree v každej izbe
-Talianske obklady Pastorelli, sanita Hansgrohe, Geberit
-Laminátové podlahy EGGER, bezpečnostné dvere, predpríprava na žalúzie
VÝHODNÉ FINANCOVANIE
-Len 10 % teraz
- Zvyšok až po kolaudácii
- Bezplatné hypotekárne poradenstvo
- Garancia vrátenia rezervačného poplatku, ak hypotéku nezískate
- Znalecký posudok netreba (pri vybraných bankách)
Kobka v cene
PARKOVANIE - Možnosť prenájmu s neskorším odkúpením – zaplatené nájomné sa odráta z ceny.
ZELENÁ FASÁDA & ekológia
-Energetická trieda A0 – takmer nulová spotreba energie
-Automatické zavlažovanie zelene na fasádach, strechách a lodžiách
-Viac než 6 000 rastlín vo vnútrobloku – doslova mestská záhrada
LOKALITA, ktorá má všetko
Račianska 69 – Nové Mesto
Green Corner sa nachádza v žiadanom mestskom uzle Račianska–Pionierska, len pár minút od centra. Lokalita ponúka ideálnu kombináciu mestskej dostupnosti a pokojnej zelene.
-Električka 3,7 a autobusy 59, 75, 98 priamo pri dome – rýchle spojenie do centra
-V pešej dostupnosti: obchody, školy, kaviarne, poliklinika, VIVO!, Slimák
-Blízkosť Malých Karpát a Kuchajdy – prechádzky, šport, relax
-Moderná infraštruktúra: cyklotrasa, úschovňa bicyklov, e-mobilita
-Obchody, školy, športoviská, reštaurácie, príroda – všetko v pešej dostupnosti
Projekt vyniká zelenou architektúrou, biofilným dizajnom a komunitným vnútroblokom, ktorý ponúka súkromie aj priestor na oddych.
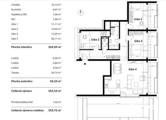
DISPOZÍCIA bytu B-7.1
-Obývacia izba: 30,11 m²
-Kuchyňa: 6,67 m²
-Spálňa: 14,25 m²
-Izba 1: 11,11 m²
-Izba 2: 13,50 m²
-Chodba: 19,13 m²
-Kúpeľňa + WC: 7,36 m² | Samostatné WC: 1,96 m²
-Terasa: 34,74 m²
-Lodžia 1: 6,00 m² | Lodžia 2: 4,86 m² | Lodžia 3: 4,50 m²
Kobka: 1,52 m²
Spolu: 155,71 m²
Kolaudácia 2Q/2026
Cena: 712.800,- € s DPH
(Kobka a štandard bytu v cene)
Zodpovedný maklér:
Mário Baláž | RADO Reality Group
0907 750 421
balaz@radoreality.sk
Cena je konečná (vrátane právneho servisu, zmlúv, hypotekárneho poradenstva a poplatku za vklad do katastra).
RADO Reality Group – najlepšia realitná kancelária Slovenska (Realitná únia 2023)
Obytná plocha: 138m&
Luxusný priestor, panoramatické výhľady, zelený pokoj a mesto na dosah.
Predstavte si bývanie, kde máte viac než 50 m² exteriérového priestoru – raňajky na terase s výhľadom, popoludňajší relax v lodžii a večerné posedenie pod hviezdami. To všetko v energeticky úspornom a architektonicky výnimočnom projekte, kde sa dizajn stretáva s prírodou.
Prečo si zamilujete tento byt :
-Interiér: 104 m² + exteriér: 50 m² – dokopy 155,71 m²
-Veľká terasa (34,74 m²) + 3 lodžie – ideálne na oddych, prácu aj zábavu
-Obývačka s rozlohou 30 m², oddelená kuchyňa a 3 samostatné izby
-Prémiový štandard:
-Klimatizácia Samsung WindFree v každej izbe
-Talianske obklady Pastorelli, sanita Hansgrohe, Geberit
-Laminátové podlahy EGGER, bezpečnostné dvere, predpríprava na žalúzie
VÝHODNÉ FINANCOVANIE
-Len 10 % teraz
- Zvyšok až po kolaudácii
- Bezplatné hypotekárne poradenstvo
- Garancia vrátenia rezervačného poplatku, ak hypotéku nezískate
- Znalecký posudok netreba (pri vybraných bankách)
Kobka v cene
PARKOVANIE - Možnosť prenájmu s neskorším odkúpením – zaplatené nájomné sa odráta z ceny.
ZELENÁ FASÁDA & ekológia
-Energetická trieda A0 – takmer nulová spotreba energie
-Automatické zavlažovanie zelene na fasádach, strechách a lodžiách
-Viac než 6 000 rastlín vo vnútrobloku – doslova mestská záhrada
LOKALITA, ktorá má všetko
Račianska 69 – Nové Mesto
Green Corner sa nachádza v žiadanom mestskom uzle Račianska–Pionierska, len pár minút od centra. Lokalita ponúka ideálnu kombináciu mestskej dostupnosti a pokojnej zelene.
-Električka 3,7 a autobusy 59, 75, 98 priamo pri dome – rýchle spojenie do centra
-V pešej dostupnosti: obchody, školy, kaviarne, poliklinika, VIVO!, Slimák
-Blízkosť Malých Karpát a Kuchajdy – prechádzky, šport, relax
-Moderná infraštruktúra: cyklotrasa, úschovňa bicyklov, e-mobilita
-Obchody, školy, športoviská, reštaurácie, príroda – všetko v pešej dostupnosti
Projekt vyniká zelenou architektúrou, biofilným dizajnom a komunitným vnútroblokom, ktorý ponúka súkromie aj priestor na oddych.
DISPOZÍCIA bytu B-7.1
-Obývacia izba: 30,11 m²
-Kuchyňa: 6,67 m²
-Spálňa: 14,25 m²
-Izba 1: 11,11 m²
-Izba 2: 13,50 m²
-Chodba: 19,13 m²
-Kúpeľňa + WC: 7,36 m² | Samostatné WC: 1,96 m²
-Terasa: 34,74 m²
-Lodžia 1: 6,00 m² | Lodžia 2: 4,86 m² | Lodžia 3: 4,50 m²
Kobka: 1,52 m²
Spolu: 155,71 m²
Kolaudácia 2Q/2026
Cena: 712.800,- € s DPH
(Kobka a štandard bytu v cene)
Zodpovedný maklér:
Mário Baláž | RADO Reality Group
0907 750 421
balaz@radoreality.sk
Cena je konečná (vrátane právneho servisu, zmlúv, hypotekárneho poradenstva a poplatku za vklad do katastra).
RADO Reality Group – najlepšia realitná kancelária Slovenska (Realitná únia 2023)
Obytná plocha: 138m&
|
|
Kontaktovať inzerenta e-mailom
Kontaktovať e-mailom môže iba overený užívateľ.
Overenie je zadarmo.
Vaše telefónne číslo *
Kontaktovať e-mailom môže iba overený užívateľ.
Overenie je zadarmo.
Vaše telefónne číslo *