NOVOSTAVBA - predaj - 3 izb. byt, Bzovík - Krupina
- TOP - [29.10. 2025]Zmazať/ Upraviť/ Topovať






Typ: 3-izbový byt
Obec: Bzovík
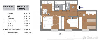
Na predaj moderný 3 izbový byt na 1 poschodí o výmere 75,06 m2 s predzáhradkou 13 m2 v Rezidencii Bazový háj – Bzovík
Kancelária Realitné Očko Vám ponúka na predaj štýlový byt v atraktívnej novostavbe Rezidencia Bazový háj v obci Bzovík. Projekt je zasadený do pokojnej, zelenej lokality, ktorá spája výhody vidieckeho bývania s rýchlou dostupnosťou do mesta Krupina. Rezidencia je ideálna voľba pre rodiny aj jednotlivcov, ktorí hľadajú komfortné a bezpečné bývanie.
✨ Výhody bytu:
k bytu prislúcha pivnica – ideálna na úložný priestor,
vlastné parkovacie miesto priamo pri dome,
spoločná kočikáreň / bicykláreň, ktorá zjednodušuje každodenné fungovanie,
moderné dispozičné riešenie a kvalitné materiály použit é pri výstavbe.
🌳 Lokalita:
Obec Bzovík je známa svojím historickým kláštorom a krásnou prírodou. Poskytuje pokojné bývanie s dobrou občianskou vybavenosťou a rýchlou dostupnosťou do okresného mesta. Vďaka okolitej prírode je vhodná aj pre milovníkov turistiky, cyklistiky a aktívneho oddychu.
🔑 Rezidencia Bazový háj v Bzovíku je miestom, kde nájdete rovnováhu medzi komfortom moderného bývania a pokojom vidieka. Ak hľadáte príjemné bývanie pre seba alebo investíciu do budúcnosti, tento byt je tou správnou voľbou.
Nezmeškajte túto príležitosť a dohodnite si obhliadku ešte dnes!
Bc. Stanislava Kicková
📞 0918 892 128
📧 stanislava.kickova@realitneocko.sk
Realitné očko – vidíme to, čo iní prehliadajú V cene nehnuteľnosti získavate znalecký posudok, kompletný právny servis, poradenstvo a vyriešime finančne sprostredkovanie za najlepších podmienok pre Vás. Pri Vážnom záujme a serióznom jednaní je možná dohoda na cena. Kontaktujte nás už dnes a dohodnite si individuálnu obhliadku nehnuteľnosti ;) UPREDNOSTŇUJEME KLIENTOV, KTORÍ V PRÍPADE HYPOTEKÁRNEHO ÚVERU VYUŽIJÚ NAŠE SLUŽBY.
Status: aktívne
Vlastníctvo: osobné
Úžitková plocha: 75.06 m2
Podlahová plocha: 88.06 m2
Skladová plocha: 4.15 m2
Stav: novostavba
Počet izieb: 3
Typ výbavy: holopriestor
Terasa: áno
Pivnica: áno
Rok výstavby: 2025
Počet poschodí od prízemia vyššie: 2
Pozícia: vyššie poschodie
Poschodie: 1
Celková plocha: 92.21 m2
Terasa plocha: 13 m2
Počet terás: 1
Pivnica plocha: 4.15 m2
Počet pivníc: 1
Počet vonkajších parkovacích miest: 1
Inžinierske siete: áno
Obec: Bzovík
Na predaj moderný 3 izbový byt na 1 poschodí o výmere 75,06 m2 s predzáhradkou 13 m2 v Rezidencii Bazový háj – Bzovík
Kancelária Realitné Očko Vám ponúka na predaj štýlový byt v atraktívnej novostavbe Rezidencia Bazový háj v obci Bzovík. Projekt je zasadený do pokojnej, zelenej lokality, ktorá spája výhody vidieckeho bývania s rýchlou dostupnosťou do mesta Krupina. Rezidencia je ideálna voľba pre rodiny aj jednotlivcov, ktorí hľadajú komfortné a bezpečné bývanie.
✨ Výhody bytu:
k bytu prislúcha pivnica – ideálna na úložný priestor,
vlastné parkovacie miesto priamo pri dome,
spoločná kočikáreň / bicykláreň, ktorá zjednodušuje každodenné fungovanie,
moderné dispozičné riešenie a kvalitné materiály použit é pri výstavbe.
🌳 Lokalita:
Obec Bzovík je známa svojím historickým kláštorom a krásnou prírodou. Poskytuje pokojné bývanie s dobrou občianskou vybavenosťou a rýchlou dostupnosťou do okresného mesta. Vďaka okolitej prírode je vhodná aj pre milovníkov turistiky, cyklistiky a aktívneho oddychu.
🔑 Rezidencia Bazový háj v Bzovíku je miestom, kde nájdete rovnováhu medzi komfortom moderného bývania a pokojom vidieka. Ak hľadáte príjemné bývanie pre seba alebo investíciu do budúcnosti, tento byt je tou správnou voľbou.
Nezmeškajte túto príležitosť a dohodnite si obhliadku ešte dnes!
Bc. Stanislava Kicková
📞 0918 892 128
📧 stanislava.kickova@realitneocko.sk
Realitné očko – vidíme to, čo iní prehliadajú V cene nehnuteľnosti získavate znalecký posudok, kompletný právny servis, poradenstvo a vyriešime finančne sprostredkovanie za najlepších podmienok pre Vás. Pri Vážnom záujme a serióznom jednaní je možná dohoda na cena. Kontaktujte nás už dnes a dohodnite si individuálnu obhliadku nehnuteľnosti ;) UPREDNOSTŇUJEME KLIENTOV, KTORÍ V PRÍPADE HYPOTEKÁRNEHO ÚVERU VYUŽIJÚ NAŠE SLUŽBY.
Status: aktívne
Vlastníctvo: osobné
Úžitková plocha: 75.06 m2
Podlahová plocha: 88.06 m2
Skladová plocha: 4.15 m2
Stav: novostavba
Počet izieb: 3
Typ výbavy: holopriestor
Terasa: áno
Pivnica: áno
Rok výstavby: 2025
Počet poschodí od prízemia vyššie: 2
Pozícia: vyššie poschodie
Poschodie: 1
Celková plocha: 92.21 m2
Terasa plocha: 13 m2
Počet terás: 1
Pivnica plocha: 4.15 m2
Počet pivníc: 1
Počet vonkajších parkovacích miest: 1
Inžinierske siete: áno
|
| |||||||||||||||||||||||||||||||
Kontaktovať inzerenta e-mailom
Kontaktovať e-mailom môže iba overený užívateľ.
Overenie je zadarmo.
Vaše telefónne číslo *
Kontaktovať e-mailom môže iba overený užívateľ.
Overenie je zadarmo.
Vaše telefónne číslo *
Podobné inzeráty
NOVOSTAVBA - predaj - 3 izb. byt, Bzovík - Krupina - TOP - [12.10. 2025]Typ: 3-izbový byt
Obec: Bzovík
Na predaj moderný 3 izbový byt na 1 poschodí o výmere 65,19 m2 v Rezidencii Bazový háj – Bzovík
Kancelária Realitné Očko Vám ponúka na predaj štýlový byt v atraktívnej novostavbe Rezidencia Bazový háj v obci Bzovík. Projekt je zasadený do pokojnej, ...
165 990 €
Krupina
962 41
962 41
181 x
Označiť zlý inzerát Chybnú kategóriu Ohodnotiť užívateľa Zmazať/Upraviť/Topovať
NOVOSTAVBA - predaj - 3 izb. byt, Bzovík - Krupina - TOP - [12.10. 2025]Typ: 3-izbový byt
Obec: Bzovík
Na predaj moderný 3 izbový byt na 2 poschodí o výmere 75,06 m2 v Rezidencii Bazový háj – Bzovík
Kancelária Realitné Očko Vám ponúka na predaj štýlový byt v atraktívnej novostavbe Rezidencia Bazový háj v obci Bzovík. Projekt je zasadený do poko ...
190 990 €
Krupina
962 41
962 41
208 x
Označiť zlý inzerát Chybnú kategóriu Ohodnotiť užívateľa Zmazať/Upraviť/Topovať
NOVOSTAVBA - predaj - 2 izb. byt, Bzovík - Krupina - TOP - [29.10. 2025]Typ: 2-izbový byt
Obec: Bzovík
Na predaj moderný 2 izbový byt na 2 poschodí o výmere 55,65 m2 v Rezidencii Bazový háj – Bzovík
Kancelária Realitné Očko Vám ponúka na predaj štýlový byt v atraktívnej novostavbe Rezidencia Bazový háj v obci Bzovík. Projekt je zasadený do poko ...
141 900 €
Krupina
962 41
962 41
712 x
Označiť zlý inzerát Chybnú kategóriu Ohodnotiť užívateľa Zmazať/Upraviť/Topovať
NOVOSTAVBA - predaj - 2 izb. byt, Bzovík - Krupina - TOP - [31.10. 2025]Typ: 3-izbový byt
Obec: Bzovík
Na predaj moderný 2 izbový byt na 2 poschodí o výmere 54,17 m2 v Rezidencii Bazový háj – Bzovík
Kancelária Realitné Očko Vám ponúka na predaj štýlový byt v atraktívnej novostavbe Rezidencia Bazový háj v obci Bzovík. Projekt je zasadený do poko ...
137 900 €
Krupina
962 41
962 41
901 x
Označiť zlý inzerát Chybnú kategóriu Ohodnotiť užívateľa Zmazať/Upraviť/Topovať
NOVOSTAVBA - predaj - 2 izb. byt, Bzovík - Krupina - TOP - [29.10. 2025]Typ: 2-izbový byt
Obec: Bzovík
Na predaj moderný 2 izbový byt na 3 poschodí o výmere 53,69 m2 v Rezidencii Bazový háj – Bzovík
Kancelária Realitné Očko Vám ponúka na predaj štýlový byt v atraktívnej novostavbe Rezidencia Bazový háj v obci Bzovík. Projekt je zasadený do ...
136 900 €
Krupina
962 41
962 41
727 x
Označiť zlý inzerát Chybnú kategóriu Ohodnotiť užívateľa Zmazať/Upraviť/Topovať
NOVOSTAVBA - predaj - 2 izb. byt, Bzovík - Krupina - TOP - [29.10. 2025]Typ: 2-izbový byt
Obec: Bzovík
Na predaj moderný 2 izbový byt na 3 poschodí o výmere 55,17 m2 v Rezidencii Bazový háj – Bzovík
Kancelária Realitné Očko Vám ponúka na predaj štýlový byt v atraktívnej novostavbe Rezidencia Bazový háj v obci Bzovík. Projekt je zasadený do pokojnej, ...
140 900 €
Krupina
962 41
962 41
729 x
Označiť zlý inzerát Chybnú kategóriu Ohodnotiť užívateľa Zmazať/Upraviť/Topovať
NOVOSTAVBA - predaj - 3 izb. byt, Bzovík - Krupina - TOP - [31.10. 2025]Typ: 3-izbový byt
Obec: Bzovík
Na predaj moderný 3 izbový byt na 3 poschodí o výmere 64,09 m2 v Rezidencii Bazový háj – Bzovík
Kancelária Realitné Očko Vám ponúka na predaj štýlový byt v atraktívnej novostavbe Rezidencia Bazový háj v obci Bzovík. Projekt je zasadený do ...
162 900 €
Krupina
962 41
962 41
830 x
Označiť zlý inzerát Chybnú kategóriu Ohodnotiť užívateľa Zmazať/Upraviť/Topovať
NOVOSTAVBA - predaj - 3 izb. byt, Bzovík - Krupina - TOP - [31.10. 2025]Typ: 3-izbový byt
Obec: Bzovík
Na predaj moderný 3 izbový byt na 3 poschodí o výmere 74,38 m2 v Rezidencii Bazový háj – Bzovík
Kancelária Realitné Očko Vám ponúka na predaj štýlový byt v atraktívnej novostavbe Rezidencia Bazový háj v obci Bzovík. Projekt je zasad ...
189 900 €
Krupina
962 41
962 41
1137 x
Označiť zlý inzerát Chybnú kategóriu Ohodnotiť užívateľa Zmazať/Upraviť/Topovať