026h 3 izb. byt v apartmánovom komplexe Košice - Sever
- [4.10. 2025]Zmazať/ Upraviť/ Topovať











Do dlhodobého nájmu ponúkame atypický bezbariérový byt s dvoma balkónmi v uzavretom obytnom komplexe a to vrátane parkovacieho miesta.
Lokalita: okrajová vilová štvrť mesta v susedstve obľúbenej rekreačnej zóny.
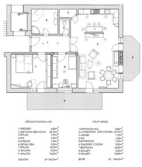
Popis bytu: Dispozícia bytu o rozlohe 104 m2 + balkóny je zrejmá z priloženého pôdorysu.
Byt umiestnený na 3.poschodí bytového domu je v nadštandardnom prevedení, drevené a keramické podlahy, kvalitné zariadenie, sanita, svietidlá, moderná kuchynská linka so spotrebičmi značky Bosch, samostatná priestranná kúpeľňa s práčkou a sušičkou, rohovou vaňou, sprchovým kútom s masážnym boxom a parnou saunou. Cez domový telefón je možné komunikovať s návštevou pri bráne. V kuchyni, WC a kúpeľni je aj podlahové kúrenie. V obývacej miestnosti je krb na drevo, zabudovaný systém domáceho kina, nezávislý TV, počítačový a telefónny rozvod. Televízny signál je možné prijímať cez satelitný rozvod telefónu T-com sieť (Magio), alebo UPS kábelový rozvod.
Popis areálu: Obytný komplex tvorí 11 apartmanových bytov a 4 rodinné domy so samostatnou infraštruktúrou a parkovaním pri dome, priamo v oplotenom a bezpečnom areály. Súčasťou dvorovej časti je aj oddychová zeleň s lavičkami a nočným záhradným osvetlením. Samozrejmosťou je aj detské ihrisko.
Kúrenie: plynový kotol, radiátory, + funkčný krb + podlahové kúrenie.
Dostupnosť: MHD.
Okolie a občianska vybavenosť: kompletná v blízkom okolí.
Mesačné nájomné za byt a jedno parkovacie miesto v areáli je 1 100,- € bez DPH. Platby nájmu sú kvartálne. K nájmu sa pripočítava platba za skutočnú spotrebu médií a služieb. Možnosť 2.parkovacieho miesta za poplatok 60,-€/mes.
Depozit:1 500,- €.
Uvedená cena je vrátane provízie realitnej kancelárie, v ktorej je zahrnuté vypracovanie nájomnej zmluvy a preberacieho protokolu.
Lokalita: okrajová vilová štvrť mesta v susedstve obľúbenej rekreačnej zóny.
Popis bytu: Dispozícia bytu o rozlohe 104 m2 + balkóny je zrejmá z priloženého pôdorysu.
Byt umiestnený na 3.poschodí bytového domu je v nadštandardnom prevedení, drevené a keramické podlahy, kvalitné zariadenie, sanita, svietidlá, moderná kuchynská linka so spotrebičmi značky Bosch, samostatná priestranná kúpeľňa s práčkou a sušičkou, rohovou vaňou, sprchovým kútom s masážnym boxom a parnou saunou. Cez domový telefón je možné komunikovať s návštevou pri bráne. V kuchyni, WC a kúpeľni je aj podlahové kúrenie. V obývacej miestnosti je krb na drevo, zabudovaný systém domáceho kina, nezávislý TV, počítačový a telefónny rozvod. Televízny signál je možné prijímať cez satelitný rozvod telefónu T-com sieť (Magio), alebo UPS kábelový rozvod.
Popis areálu: Obytný komplex tvorí 11 apartmanových bytov a 4 rodinné domy so samostatnou infraštruktúrou a parkovaním pri dome, priamo v oplotenom a bezpečnom areály. Súčasťou dvorovej časti je aj oddychová zeleň s lavičkami a nočným záhradným osvetlením. Samozrejmosťou je aj detské ihrisko.
Kúrenie: plynový kotol, radiátory, + funkčný krb + podlahové kúrenie.
Dostupnosť: MHD.
Okolie a občianska vybavenosť: kompletná v blízkom okolí.
Mesačné nájomné za byt a jedno parkovacie miesto v areáli je 1 100,- € bez DPH. Platby nájmu sú kvartálne. K nájmu sa pripočítava platba za skutočnú spotrebu médií a služieb. Možnosť 2.parkovacieho miesta za poplatok 60,-€/mes.
Depozit:1 500,- €.
Uvedená cena je vrátane provízie realitnej kancelárie, v ktorej je zahrnuté vypracovanie nájomnej zmluvy a preberacieho protokolu.
|
|
Kontaktovať inzerenta e-mailom
Kontaktovať e-mailom môže iba overený užívateľ.
Overenie je zadarmo.
Vaše telefónne číslo *
Kontaktovať e-mailom môže iba overený užívateľ.
Overenie je zadarmo.
Vaše telefónne číslo *