880a Pozemky a haly v priemyselnom parku pri Košiciach
- [4.10. 2025]Zmazať/ Upraviť/ Topovať







Ponúkame Vám
- stavebné pozemky s prípojkami na všetky médiá a asfaltovou prístupovou komunikáciou. (Minimálna rozloha 1 ha.)
- pomoc pri vybavovaní územného a stavebného povolenia na Vami požadovanú halu,
- možnosť výstavby haly podľa Vašich potrieb.
Umiestnenie: okrajová časť obce smer Prešov
Popis:
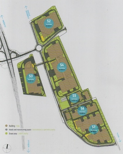
Logisticko – priemyselný park s rozlohou takmer 40 ha leží v polovici vzdialenosti medzi jestvujúcimi
diaľničnými križovatkami na D1 – Budimír a Lemešany, na hlavnej sídelno rozvojovej osi Košice – Prešov.
Hlavný príjazd do Logisticko-priemyselného parku je z diaľnice D1
Veľmi dobre napojiteľnosť na siete TI – elektrická energia, pitná voda, kanalizácia, a plyn.
V areály sa počíta okrem prístupových a obslužných komunikácii aj s plochou pre statickú dopravu, zeleň
a zázemie pre zamestnancov a návštevníkov (služby, stravovanie, prechodné ubytovanie a pod.)
Dostupnosť:
12 km od centra Košíc 18 km od centra Prešova 98 km od poľských hraníc 97 km od ukrajinských hraníc 38 km od maďarských hraníc 21 km od košického letiska 27 km od železničnej stanice Haniska
Využitie:
Logistika, nezávadná výroba, obchod, služby a distribúcia na medzinárodnej úrovni.
Svojou polohou dáva záujemcom možnosť umiestniť svoj biznis na križovatke dôležitých obchodných ciest
strednej a východnej Európy.
Počet obyvateľov v okruhu do 50 km od priemyselného parku je cca 1,3 mil.
- stavebné pozemky s prípojkami na všetky médiá a asfaltovou prístupovou komunikáciou. (Minimálna rozloha 1 ha.)
- pomoc pri vybavovaní územného a stavebného povolenia na Vami požadovanú halu,
- možnosť výstavby haly podľa Vašich potrieb.
Umiestnenie: okrajová časť obce smer Prešov
Popis:
Logisticko – priemyselný park s rozlohou takmer 40 ha leží v polovici vzdialenosti medzi jestvujúcimi
diaľničnými križovatkami na D1 – Budimír a Lemešany, na hlavnej sídelno rozvojovej osi Košice – Prešov.
Hlavný príjazd do Logisticko-priemyselného parku je z diaľnice D1
Veľmi dobre napojiteľnosť na siete TI – elektrická energia, pitná voda, kanalizácia, a plyn.
V areály sa počíta okrem prístupových a obslužných komunikácii aj s plochou pre statickú dopravu, zeleň
a zázemie pre zamestnancov a návštevníkov (služby, stravovanie, prechodné ubytovanie a pod.)
Dostupnosť:
12 km od centra Košíc 18 km od centra Prešova 98 km od poľských hraníc 97 km od ukrajinských hraníc 38 km od maďarských hraníc 21 km od košického letiska 27 km od železničnej stanice Haniska
Využitie:
Logistika, nezávadná výroba, obchod, služby a distribúcia na medzinárodnej úrovni.
Svojou polohou dáva záujemcom možnosť umiestniť svoj biznis na križovatke dôležitých obchodných ciest
strednej a východnej Európy.
Počet obyvateľov v okruhu do 50 km od priemyselného parku je cca 1,3 mil.
|
|
Kontaktovať inzerenta e-mailom
Kontaktovať e-mailom môže iba overený užívateľ.
Overenie je zadarmo.
Vaše telefónne číslo *
Kontaktovať e-mailom môže iba overený užívateľ.
Overenie je zadarmo.
Vaše telefónne číslo *