Slnečné pozemky Podtúreň, Nižná Roveň
- TOP - [7.10. 2025]Zmazať/ Upraviť/ Topovať







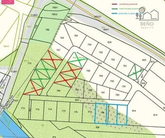
Ponúkame Vám nové stavebné pozemky v novovznikajúcej rezidenčnej štvrti v obci Podtúreň, Nižná roveň. Pozemky majú rozlohu 507m2 až 1003m2. Pozemky sú rovinaté, budú na nich IS : elektrika, kanalizácia, voda. Výhodou pozemkov je lukratívna poloha s krásnymi výhľadmi na Nízke a Západné Tatry. Od diaľničného privádzača cca 2km, skvelá východisková poloha do Západných a Nízkych Tatier, od mestečka Liptovský Hrádok cca 4km, Liptovského Mikuláša 6km, Liptovský Ján 3km. Cena je stanovená na 123€/m2 vrátane dph (100+23). Ku pozemkom Vám vieme ponúknuť výstavbu rodinných domov na kľúč. Realitná kancelária Vám vie zabezpečiť servis ohľadom postavenia domu podľa vlastných predstáv na kľúč, taktiež bezproblémové vybavenie úveru u našich úverových špecialistov. V prípade Vášho záujmu Vám radi sprostredkujeme nezáväznú obhliadku nehnuteľnosti.
|
|
Kontaktovať inzerenta e-mailom
Kontaktovať e-mailom môže iba overený užívateľ.
Overenie je zadarmo.
Vaše telefónne číslo *
Kontaktovať e-mailom môže iba overený užívateľ.
Overenie je zadarmo.
Vaše telefónne číslo *
Podobné inzeráty

AstonReal ponúka na predaj pozemok v Pavčinej Lehote o výmere 720m2 (41m x 17m). Nehnuteľnosť sa nachádza v peknej, rekreačnej lokalite. V blízkosti obce je mnoho možností na rekreáciu. Obec je obklopená krásnou prírodou Nízkych Tatier. V blízkosti je lyžiarske stredisko Jasná, vodný park Tatralandi ...
Dohodou
Liptovský Mikuláš
031 01
031 01
20 x
Označiť zlý inzerát Chybnú kategóriu Ohodnotiť užívateľa Zmazať/Upraviť/Topovať

AstonReal ponúka na predaj pozemok 12 565 m2 v atraktívnej lokalite Liptovského Mikuláša ,neďaleko obchodné centrá, čerpacia stanica, servisy a pod. prevádzky, obytné domy.
Popis pozemku:
- v neďalekej blízkosti pozemku sú inžinierske siete a spevnená komunikácia.
Územno-plánovacia informácia: ...
Dohodou
Liptovský Mikuláš
031 01
031 01
15 x
Označiť zlý inzerát Chybnú kategóriu Ohodnotiť užívateľa Zmazať/Upraviť/Topovať

Mám záujem o spoluvlastnícke podiely na pozemkoch v okresoch Ružomberok a Liptovský Mikuláš. Prioritne mám záujem o pozemky kde sa nachádza Váš podiel a podiel neznámeho vlastníka tj. Vlastníci ktorý zomreli a podiel je v správe SPF. Ponuky mi prosím zasielajte na email vyporiadaniepozemkov@gmail.co ...
Dohodou
Liptovský Mikuláš
031 01
031 01
153 x
Označiť zlý inzerát Chybnú kategóriu Ohodnotiť užívateľa Zmazať/Upraviť/Topovať

Ponúkam na predaj pekný, rovný pozemok s výmerou 838 m² (plus 46 m²), rozmer cca 26x32m spolu s exkluzívnym projektom moderného rodinného domu na ktorý je vydané právoplatné stavebné povolenie. Pozemok je v lokalite IBV Zelená vieska, obec Uhorská Ves (okres Liptovský Mikuláš). Ide o jeden z väčších ...
184 900 €
Liptovský Mikuláš
031 01
031 01
219 x
Označiť zlý inzerát Chybnú kategóriu Ohodnotiť užívateľa Zmazať/Upraviť/Topovať

Predáme novostavbu 4-izbového rodinného domu v Slavnici, v novovybudovanej štvrti rodinných domov, ktorý bude postavený v 12/2026 s rovinatým pozemkom o výmere 1072 m2 ( 35x30). Dom bude nízkoenergetický z tehál, 30mm hrúbka, zateplenie 15 mm polystyrénom , škrídla bude betónová taška, silikónová om ...
95 000 €
Liptovský Mikuláš
031 01
031 01
26 x
Označiť zlý inzerát Chybnú kategóriu Ohodnotiť užívateľa Zmazať/Upraviť/Topovať

Na predaj rovinatý pozemok s výmerou 3113 m² v katastri obce Pavčina Lehota, v extraviláne.
Prístup je zabezpečený po spevnenej ceste z obce Lazisko (smer vojenská strelnica).
Parcelné číslo: 537
Výmera parcely: 3113 m²
Druh pozemku: trvalý trávny porast
Spôsob využívania: pozemok lúky ...
20 €
Liptovský Mikuláš
031 01
031 01
171 x
Označiť zlý inzerát Chybnú kategóriu Ohodnotiť užívateľa Zmazať/Upraviť/Topovať

Ponúkame jedinečnú príležitosť získať krásny, rovinatý a slnečný pozemok s nádherným výhľadom v tichom prostredí. Tento pozemok je ideálnou voľbou pre výstavbu vysnívaného domu či rekreačnej stavby.
Hlavné prednosti:
•Krásny a rovinatý terén: Ideálny pre rôzne stavebné a záhradné projekty.
•S ...
167 €
Liptovský Mikuláš
031 01
031 01
49 x
Označiť zlý inzerát Chybnú kategóriu Ohodnotiť užívateľa Zmazať/Upraviť/Topovať

Ponúkam na predaj pozemok v obci Bodice.
Pozemok je vhodný na investičný a developerský projekt. Predáva sa ako celok.
Je vedený ako Trvalý trávny porast.
Rozloha pozemku je 250 364 m2,
Rozmery: cca 210 x 1138m.
Nachádza sa západne od mestskej časti Demänová.
Lukratívnosť uvedeného pozemku ...
Dohodou
Liptovský Mikuláš
031 01
031 01
115 x
Označiť zlý inzerát Chybnú kategóriu Ohodnotiť užívateľa Zmazať/Upraviť/Topovať

Ponúkame Vám na predaj nové slnečné stavebné pozemky v novom projekte, v obci Liptovská Sielnica, s krásnym výhľadom na okolité vrchy, 3 km od vodnej priehrady Liptovská Mara. Pozemky sú väčšinou obdĺžnikovitého tvaru rozdelené na parcely od cca 580 – 780 m2, v rovinatom teréne, vzdialené len cca 12 ...
96 €
Liptovský Mikuláš
031 01
031 01
218 x
Označiť zlý inzerát Chybnú kategóriu Ohodnotiť užívateľa Zmazať/Upraviť/Topovať

Predám lukratívne nehnuteľnosti na Liptove pri Liptovskej Mare. K Lipt. Mare je to asi 100 m. Jedná sa o pozemky v obci Bobrovník v približnej výmere 5000 m2 ktoré sú oplotené a nachádzajú sa pred domom, ktorý sa tiež predáva. Pozemky sú evidované na správe Katastra ako zastavané plochy (aj keď nie ...
V texte
Liptovský Mikuláš
031 01
031 01
419 x
Označiť zlý inzerát Chybnú kategóriu Ohodnotiť užívateľa Zmazať/Upraviť/Topovať