Predaj luxusného apartmánu na ostrove PAŠMAN - Chorvátsko
- [3.10. 2025]Zmazať/ Upraviť/ Topovať











Chcete dovolenkovať vo svojom? Na jednom z najzelenších ostrovov v Chorvátsku?
DOVOLENKUJTE KOMFORTNE VO VLASTNOM!
Na predaj 3 izb. KOMPLET ZARIADENÝ 2-poschodový apartmán na ostrove Pašman.
Apartmán č. 1 – vyznačený vo fotkách modrou farbou - 85 m2 + terasa 13 m2 + 2 parkovacie miesta CENA: 229.900,-€
Apartmán č. 2 – vyznačený vo fotkách žltou farbou - 85 m2 + terasa 24 m2 + 70m2 pozemok + 2 parkovacie miesta CENA: 249.900,-€
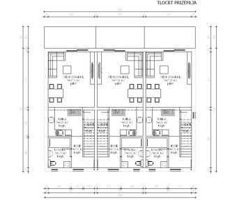
Dispozícia apartmánov viď priložený pôdorys:
* Prízemie:
– Vstupná chodba
– Kúpeľňa: moderný obklad, sprchový kút, WC, umývadlo so skrinkou, zrkadlo, práčka,
– Priestranná obývačka s kuchyňou – moderná kuchynská linka so zabudovanými spotrebičmi v cene (dvojplatnička, chladnička, umývačka riadu, mikrovlnná rúra, rýchlovarná kanvica),
– Východ na priestrannú terasu – terénne úpravy + príprava na terasové sedenie.
* Poschodie
– 2 x nepriechodná izba – spálňa, jedna s východom na terasu,
– Kúpeľňa: sprchový kút, WC, vlastný bojler, umývadlo + skrinka.
Vzdialenosť od mora: 400 m - piesková pláž + pláž s vybetónovaným vstupom do mora.
50 m od apartmánov je krásny borovicový háj, cez ktorý je tiež možný prístup k moru (peši).
Dostupnosť obchodov a reštaurácií: v blízkosti - potraviny a pizzeria cca 400 m.
Vážni záujemcovia prosím kontaktujte po 14:00 hodine telefónne číslo: +421 910 942 332 - Monika
DOVOLENKUJTE KOMFORTNE VO VLASTNOM!
Na predaj 3 izb. KOMPLET ZARIADENÝ 2-poschodový apartmán na ostrove Pašman.
Apartmán č. 1 – vyznačený vo fotkách modrou farbou - 85 m2 + terasa 13 m2 + 2 parkovacie miesta CENA: 229.900,-€
Apartmán č. 2 – vyznačený vo fotkách žltou farbou - 85 m2 + terasa 24 m2 + 70m2 pozemok + 2 parkovacie miesta CENA: 249.900,-€
Dispozícia apartmánov viď priložený pôdorys:
* Prízemie:
– Vstupná chodba
– Kúpeľňa: moderný obklad, sprchový kút, WC, umývadlo so skrinkou, zrkadlo, práčka,
– Priestranná obývačka s kuchyňou – moderná kuchynská linka so zabudovanými spotrebičmi v cene (dvojplatnička, chladnička, umývačka riadu, mikrovlnná rúra, rýchlovarná kanvica),
– Východ na priestrannú terasu – terénne úpravy + príprava na terasové sedenie.
* Poschodie
– 2 x nepriechodná izba – spálňa, jedna s východom na terasu,
– Kúpeľňa: sprchový kút, WC, vlastný bojler, umývadlo + skrinka.
Vzdialenosť od mora: 400 m - piesková pláž + pláž s vybetónovaným vstupom do mora.
50 m od apartmánov je krásny borovicový háj, cez ktorý je tiež možný prístup k moru (peši).
Dostupnosť obchodov a reštaurácií: v blízkosti - potraviny a pizzeria cca 400 m.
Vážni záujemcovia prosím kontaktujte po 14:00 hodine telefónne číslo: +421 910 942 332 - Monika
|
|
Kontaktovať inzerenta e-mailom
Kontaktovať e-mailom môže iba overený užívateľ.
Overenie je zadarmo.
Vaše telefónne číslo *
Kontaktovať e-mailom môže iba overený užívateľ.
Overenie je zadarmo.
Vaše telefónne číslo *