Reprezentatívne kancelárie v centre s parkovaním a terasou,
- [3.10. 2025]Zmazať/ Upraviť/ Topovať
















Ponúkame na prenájom uzavretý kancelársky celok v novostavbe na Panenskej ulici, Bratislava-Staré Mesto.
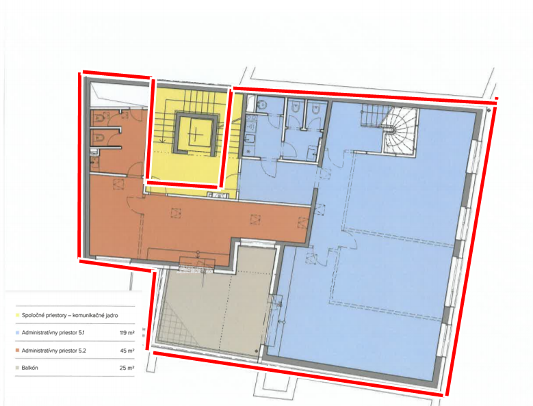
Priestory sa rozprestierajú na dvoch podlažiach a to na 4. a 5.poschodí s celkovou výmerou 235m2 + 25 m2 terasa.
Celok disponuje kuchynkou a sociálnych zázemím. Možnosť prenájmu až 4 krytých parkovacích miest.
Dispozícia:
4. poschodie: 164m2 + 25m2 terasa s orientáciou do dvora (119m2 priestor + 45m2 priestor). Priestory majú vybavenú kuchynku + delené dámske a pánske WC.
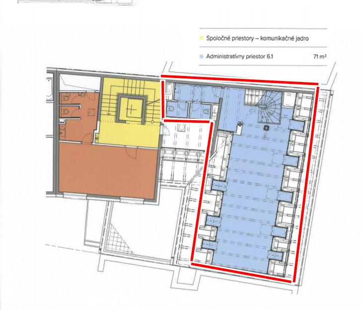
Z priestoru sa dá ísť o poschodie vyššie, tj. :
na 5. poschodie: 71m2 kancelársky priestor. Priestor disponuje vybavenou kuchynkou, samostatným WC a sprchovým kútom.
Nájomné 10.90€/m2/mesiac (2.561,5€/mesiac) + prevádzkové náklady a energie 3€/m2/mesiac (705€/mesiac) + DPH. Cena spolu 3.266,50€/mesiac + DPH.
Priestory sú k dispozícií od 1.11.2025 alebo dohodou.
Doba nájmu min. 3 roky.
Záujemca neplatí províziu.
Viac informácii u uvedeného realitného manažéra.
Priestory sa rozprestierajú na dvoch podlažiach a to na 4. a 5.poschodí s celkovou výmerou 235m2 + 25 m2 terasa.
Celok disponuje kuchynkou a sociálnych zázemím. Možnosť prenájmu až 4 krytých parkovacích miest.
Dispozícia:
4. poschodie: 164m2 + 25m2 terasa s orientáciou do dvora (119m2 priestor + 45m2 priestor). Priestory majú vybavenú kuchynku + delené dámske a pánske WC.
Z priestoru sa dá ísť o poschodie vyššie, tj. :
na 5. poschodie: 71m2 kancelársky priestor. Priestor disponuje vybavenou kuchynkou, samostatným WC a sprchovým kútom.
Nájomné 10.90€/m2/mesiac (2.561,5€/mesiac) + prevádzkové náklady a energie 3€/m2/mesiac (705€/mesiac) + DPH. Cena spolu 3.266,50€/mesiac + DPH.
Priestory sú k dispozícií od 1.11.2025 alebo dohodou.
Doba nájmu min. 3 roky.
Záujemca neplatí províziu.
Viac informácii u uvedeného realitného manažéra.
|
| |||||||||||||||||||||||||||||||
Kontaktovať inzerenta e-mailom
Kontaktovať e-mailom môže iba overený užívateľ.
Overenie je zadarmo.
Vaše telefónne číslo *
Kontaktovať e-mailom môže iba overený užívateľ.
Overenie je zadarmo.
Vaše telefónne číslo *