Dobré reality - NOVOSTAVBA, 3-izb. tehlový byt 84,72m2 s log
- [3.10. 2025]Zmazať/ Upraviť/ Topovať











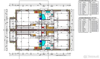
Posledné byty na predaj 1.poschodí s veľkorysou úžitkovou plochou 84,72 m2 vrátane loggie, 2x parkovacie miesto pred bytovkou. Jedná sa o tehlovú 4-bytovku, nízkonákladové bývanie, vlastné podlahové kúrenie, videovrátnik,. Dispozičné riešenie bytov: vstupná chodba so schodiskom, obývacia izba prepojená s kuchyňou 31,28m2 a výstupom na loggiu 5,64m2, technická miestnosť, kúpelňa s wc, rodičovská spálňa 12,12m2 so šatníkom 3,25 m2, detská izba 12,12m2. Nový komplex nachádzajúcim sa pred vstupom do obce Diakovce v tesnej blízkosti mesta Šaľa. Vybavený HOLOBYT:
- podlahové el. kúrenie s dotykovými termostatmi, vlastný bojler
- farebná zámková dlažba a mrazuvzdorná keramická dlažba
- plastové okná a dvere s farebnou fóliou, izolačné trojsklo
- bránka, oplotenie, exteriérové úpravy a zeleň
- prípojky na vysokorýchlostný optický internet, umývačku, drez
- elektroinštalácia, zásuvky, príprava na alarm
- LCD videovrátnik
- predpríprava na klimatizáciu
+10.000€ dokončenie na kľúč ŠTANDARD bez kuch.linky, vrátane montáže:
- plávajúca podlaha
- fóliované interiérové dvere a zárubne s kovaním plné-hladké
- sanita, batérie, kvalitné obklady a dlažba
- maľovanie na bielo a spotrebný materiál, upratovanie
Výhody:
- nízkoenergetická bytovka, vlastné el. podlahové kúrenie
- 2x parkovanie, veľký krytý balkón
- vlaková stanica 5min, Bratislava 66km, Galanta 12km
Cena uvedená na internetovej stránke je vrátane právneho a realitného servisu. Prostredníctvom nášho hypotekárneho partnera Vám zabezpečíme bezplatné poradenstvo a pomoc pri financovaní kúpy formou hypotekárneho úveru.
- podlahové el. kúrenie s dotykovými termostatmi, vlastný bojler
- farebná zámková dlažba a mrazuvzdorná keramická dlažba
- plastové okná a dvere s farebnou fóliou, izolačné trojsklo
- bránka, oplotenie, exteriérové úpravy a zeleň
- prípojky na vysokorýchlostný optický internet, umývačku, drez
- elektroinštalácia, zásuvky, príprava na alarm
- LCD videovrátnik
- predpríprava na klimatizáciu
+10.000€ dokončenie na kľúč ŠTANDARD bez kuch.linky, vrátane montáže:
- plávajúca podlaha
- fóliované interiérové dvere a zárubne s kovaním plné-hladké
- sanita, batérie, kvalitné obklady a dlažba
- maľovanie na bielo a spotrebný materiál, upratovanie
Výhody:
- nízkoenergetická bytovka, vlastné el. podlahové kúrenie
- 2x parkovanie, veľký krytý balkón
- vlaková stanica 5min, Bratislava 66km, Galanta 12km
Cena uvedená na internetovej stránke je vrátane právneho a realitného servisu. Prostredníctvom nášho hypotekárneho partnera Vám zabezpečíme bezplatné poradenstvo a pomoc pri financovaní kúpy formou hypotekárneho úveru.
|
|
Kontaktovať inzerenta e-mailom
Kontaktovať e-mailom môže iba overený užívateľ.
Overenie je zadarmo.
Vaše telefónne číslo *
Kontaktovať e-mailom môže iba overený užívateľ.
Overenie je zadarmo.
Vaše telefónne číslo *