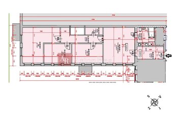
Priestranný byt 4+kk, 98,60m2, 1. poshodie,parkovacie miesto
- [2.10. 2025]Zmazať/ Upraviť/ Topovať







AstonReal ponúka v zastúpení majiteľov na predaj zrekonštruovaný priestranný 4-izbový byt o výmere podlahovej plochy 96,53m2 + pivnica o výmere 2,07m2, v polyfunkčnej budove, ktorá momentálne prechádza kompletnou rekonštrukciou, v tichej ulici v obci Chocholná-Velčice vzdialenej od Trenčína cca 5km. Byt sa nachádza na prvom poschodí (2. nadzemné podlažie) v nízkopodlažnej iba dvojposchodovej budove len s 13-timi bytmi.
Vzhľadom na blízkosť priemyselného parku je vhodný aj ako investičná príležitosť. Byt sa predáva v štádiu holobyt.
K bytu prislúcha jedno vyhradené vonkajšie parkovisko.
Byt bude odovzdávaný s nasledovným zrekonštruovanými súčasťami:
- nové rozvody elektriny, vody a odpadu,
- nové plastové okná s dvojsklom,
- znížené stropy,
- potery na podlahe,
- nové vstupné protipožiarne dvere do bytu,
- nové vypínače a zásuvky,
- nová sanita v kúpeľni,
- nové radiátory zn. Korado.
Spoločné súčasti budovy:
- vlastné tepelné čerpadlo pre byty bude zabezpečovať vykurovanie a ohrev teplej vody,
- kamerový bezpečnostný systém v spoločných priestoroch aj vonku,
- optické pripojenie a satelit pre dom,
- zateplenie budovy,
- nová strecha (Fatrafol),
- podiel na spoločných priestoroch.
V obci sa nachádza základná občianska vybavenosť (obchody, škôlka, základná škola, kultúrne stredisko, futbalové ihrisko, tenisové kurty, detské ihrisko, parky, MHD, kostol). Výhodou je tiché prostredie, plno zelene, ľahká dostupnosť na diaľnicu a blízkosť Trenčína.
Orientácia bytu je JZ. K bytu patrí murovaná pivnica, cca 2,07m2.
Byt je bez tiarch a je k dispozícii dohodou.
Všetky výmery sú orientačné.
K bytu nie je vytvorený energetický certifikát.
Predajná cena zahŕňa nasledujúce služby, finančné a právne poradenstvo, tj. vypracovanie zmluvnej dokumentácie, zabezpečenie návrhu na vklad na príslušnom katastri, vrátane uhradenia správneho poplatku, finančné poradenstvo a províziu realitnej kancelárie. Info: 0905/795 159, halbarth@astonreal.sk
Dodatok k cene: , vrátane provízie
Obytná plocha: 98.6m²
Celková rozloha: 98.6m²
Úžitková plocha: 98.6m²
Vlastníctvo: osobné
Stav: holopriestor
Odvoz odpadu: áno - separovaný
Internet: optika
Kúpeľňa: áno
Vykurovanie: spoločné – vlastná kotolňa
Pivnica: áno
Parkovanie: vlastné vyhradené
Postavené z: Zmiešané
Zateplený objekt: plánuje sa
Energetický certifikát: nie
Okná: plastové
Orientácia: juhozápadná
Vzhľadom na blízkosť priemyselného parku je vhodný aj ako investičná príležitosť. Byt sa predáva v štádiu holobyt.
K bytu prislúcha jedno vyhradené vonkajšie parkovisko.
Byt bude odovzdávaný s nasledovným zrekonštruovanými súčasťami:
- nové rozvody elektriny, vody a odpadu,
- nové plastové okná s dvojsklom,
- znížené stropy,
- potery na podlahe,
- nové vstupné protipožiarne dvere do bytu,
- nové vypínače a zásuvky,
- nová sanita v kúpeľni,
- nové radiátory zn. Korado.
Spoločné súčasti budovy:
- vlastné tepelné čerpadlo pre byty bude zabezpečovať vykurovanie a ohrev teplej vody,
- kamerový bezpečnostný systém v spoločných priestoroch aj vonku,
- optické pripojenie a satelit pre dom,
- zateplenie budovy,
- nová strecha (Fatrafol),
- podiel na spoločných priestoroch.
V obci sa nachádza základná občianska vybavenosť (obchody, škôlka, základná škola, kultúrne stredisko, futbalové ihrisko, tenisové kurty, detské ihrisko, parky, MHD, kostol). Výhodou je tiché prostredie, plno zelene, ľahká dostupnosť na diaľnicu a blízkosť Trenčína.
Orientácia bytu je JZ. K bytu patrí murovaná pivnica, cca 2,07m2.
Byt je bez tiarch a je k dispozícii dohodou.
Všetky výmery sú orientačné.
K bytu nie je vytvorený energetický certifikát.
Predajná cena zahŕňa nasledujúce služby, finančné a právne poradenstvo, tj. vypracovanie zmluvnej dokumentácie, zabezpečenie návrhu na vklad na príslušnom katastri, vrátane uhradenia správneho poplatku, finančné poradenstvo a províziu realitnej kancelárie. Info: 0905/795 159, halbarth@astonreal.sk
Dodatok k cene: , vrátane provízie
Obytná plocha: 98.6m²
Celková rozloha: 98.6m²
Úžitková plocha: 98.6m²
Vlastníctvo: osobné
Stav: holopriestor
Odvoz odpadu: áno - separovaný
Internet: optika
Kúpeľňa: áno
Vykurovanie: spoločné – vlastná kotolňa
Pivnica: áno
Parkovanie: vlastné vyhradené
Postavené z: Zmiešané
Zateplený objekt: plánuje sa
Energetický certifikát: nie
Okná: plastové
Orientácia: juhozápadná
|
|
Kontaktovať inzerenta e-mailom
Kontaktovať e-mailom môže iba overený užívateľ.
Overenie je zadarmo.
Vaše telefónne číslo *
Kontaktovať e-mailom môže iba overený užívateľ.
Overenie je zadarmo.
Vaše telefónne číslo *