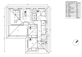
4IZ BUNGALOV 149 m2 NA SLNEČNOM POZEMKU - 184 900.-€
- [2.10. 2025]Zmazať/ Upraviť/ Topovať









Realitná kancelária REG4U Vám vo výhradnom zastúpení ponúka na PREDAJ NOVOSTAVBY RODINNÝCH DOMOV v obci BELUŠA, časť Podhorie, okres Púchov.V ponuke sú dva výnimočné rodinné domy - 4 izbové bungalovy s modernou, funkčnou vnútornou dispozíciou, ktoré budú postavené na rovinatých, slnečných pozemkoch v tichej, súkromnej ulici.
Zahájenie výstavby bude naplánované podľa požiadaviek budúceho vlastníka, čo mu umožňuje realizovať ešte drobné zmeny a úpravy v projekte podľa svojich predstáv.
RD 1: rozloha pozemku 600 m2
RD 2: rozloha pozemku 600 m2
Video obhliadka tu: https://youtu.be/t4IYtX0-OKU
Cena domu vrátane pozemku v prevedení Velox:
HRUBÁ STAVBA: 184 900,- €
HOLODOM: 268.800,- € vrátane pripojenia na IS
HOLODOM:
okenný a dverný systém Gealan 9000 s profi montážou na pásky (plastové trojsklo 6 komorové 84 mm)
siete: elektroinštalácia (Legrand Valena Life) vrátene bleskozvodu, rozvodová poistná skrinka, príprava pre dátové napojenie stavby - wifi
vodovodné a kanalizačné rozvody - plastohliník, omietky, hydroizolácia a tepelná izolácia podlahy, poter
povrchová silikónová fasádna úprava vrátane zateplenia EPS 200 mm
stropný SDK systém, stropná izolácia 400 mm
podkrovný úložný priestor, stropný výlez
podlahové vykurovanie s tepelnou reguláciou každej miestnosti zvlášť alebo tepelné čerpadlo (za príplatok)
ohrev teplej vody TUV
povrchová úprava interiéru - maľovanie
napojenie na IS: elektrika, voda z obecného vodovodu a kanalizácia žumpou 12 m3 (do 2 rokov je naplánovaná výstavba kanalizácie)
uvedenie stavby do prevádzky
NA KĽÚČ V PREVEDENÍ ŠTANDARD: kontaktujte prosím RK
S financovaním kúpy pozemku a postupnou výstavbou domu cez hypotéku Vám radi pomôžeme.
Call centrum: 0911 175 510
Zahájenie výstavby bude naplánované podľa požiadaviek budúceho vlastníka, čo mu umožňuje realizovať ešte drobné zmeny a úpravy v projekte podľa svojich predstáv.
RD 1: rozloha pozemku 600 m2
RD 2: rozloha pozemku 600 m2
Video obhliadka tu: https://youtu.be/t4IYtX0-OKU
Cena domu vrátane pozemku v prevedení Velox:
HRUBÁ STAVBA: 184 900,- €
HOLODOM: 268.800,- € vrátane pripojenia na IS
HOLODOM:
okenný a dverný systém Gealan 9000 s profi montážou na pásky (plastové trojsklo 6 komorové 84 mm)
siete: elektroinštalácia (Legrand Valena Life) vrátene bleskozvodu, rozvodová poistná skrinka, príprava pre dátové napojenie stavby - wifi
vodovodné a kanalizačné rozvody - plastohliník, omietky, hydroizolácia a tepelná izolácia podlahy, poter
povrchová silikónová fasádna úprava vrátane zateplenia EPS 200 mm
stropný SDK systém, stropná izolácia 400 mm
podkrovný úložný priestor, stropný výlez
podlahové vykurovanie s tepelnou reguláciou každej miestnosti zvlášť alebo tepelné čerpadlo (za príplatok)
ohrev teplej vody TUV
povrchová úprava interiéru - maľovanie
napojenie na IS: elektrika, voda z obecného vodovodu a kanalizácia žumpou 12 m3 (do 2 rokov je naplánovaná výstavba kanalizácie)
uvedenie stavby do prevádzky
NA KĽÚČ V PREVEDENÍ ŠTANDARD: kontaktujte prosím RK
S financovaním kúpy pozemku a postupnou výstavbou domu cez hypotéku Vám radi pomôžeme.
Call centrum: 0911 175 510
|
|
Kontaktovať inzerenta e-mailom
Kontaktovať e-mailom môže iba overený užívateľ.
Overenie je zadarmo.
Vaše telefónne číslo *
Kontaktovať e-mailom môže iba overený užívateľ.
Overenie je zadarmo.
Vaše telefónne číslo *