Predaj rodinného domu, Hlohovec
- [2.10. 2025]Zmazať/ Upraviť/ Topovať











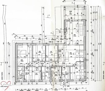
Exkluzívne ponúkame na predaj hrubú stavbu rodinného domu bez suterénu, ktorý stojí na rovinatom pozemku v pokojnej časti obce Ratkovce, okr. Hlohovec. Pozemok v celku o veľkosti 1 616 m2 tvoria štyri parcely. Predáva sa v takom stave v akom sa aktuálne nachádza so zvyšným stavebným materiálom, hradami, latkami stolom, lavicami ale aj neporiadku vo vnútri stavby a v okolí. Podkrovie je urobené tak, aby sa v budúcnosti dalo využiť na vytvorenie ďalších obytných priestorov.
Stavba:
- zastavaná plocha s terasou: 246,42 m2
- zastavaná plocha domu: 207,44 m2
- úžitková plocha: 163,79 m2
- obytná plocha:116,29 m2
- plocha na parkovanie 3 MV: 55,45 m2
- materiál keramická tehla POROTHERM
- strešná keramická krytina RÖBEN
- minerálna strešná izolácia ISOVER UNIROL plus hr. 360 mm
- zásyp zo štrkodrvy hr. 200 mm (300 mm)
- železobetónová základová doska
- debnenie STYRODUR
- obvodová stena ISOVER 60 mm
- podkladový betón hr. 150 mm vystužený sieťovinou
- počet izieb 6
IS:
- pri pozemku: elektrika, obecný vodovod, kanalizácia, plyn,
Dispozičné členenie:
- vstupná chodba, technická miestnosť s prístupom do podkrovia
- pracovňa/hosťovská izba
- kuchyňa + jedáleň, obývačka
- vnútorná chodba, 2 detské izby, šatník a kúpeľňa
- spálňa s kúpeľňou a šatníkom
Pozemok
- rovinatý 1 616 m2
- orientácia východ- západ
- záhrada s vysadenými ovocnými stromami a viničom
- prístupová cesta asfaltová
Výhody:
- tichá lokalita
- pekné výhľady do okolia
- vzdialenosť od Hlohovca 13,5 km, od Trnavy 16 km
Cena:
- 158.500,- Eur v prípade hotovosti, vrátane provízie a kompletného odborného servisu
Poskytujeme sprostredkovanie najvýhodnejšieho úveru našim úverovým špecialistom.
Dodatok k cene: , vrátane provízie, možnosť HÚ
Zastavaná plocha: 397m²
Obytná plocha: 163.79m²
Celková rozloha: 1616m²
Rozloha pozemku: 1219m²
Úžitková plocha: 163.79m²
Stav: nedokončený
El. napätie: 230/400V
Plyn: áno
Kanalizácia: áno
Internet: nie
Pivnica: nie
Inžinierske siete: áno
Postavené z: tehla
Zariadenie: nezariadený
Zateplený objekt: nie
Energetický certifikát: nie
Terén: rovina
Prístupová cesta: neupravená cesta
Stavba:
- zastavaná plocha s terasou: 246,42 m2
- zastavaná plocha domu: 207,44 m2
- úžitková plocha: 163,79 m2
- obytná plocha:116,29 m2
- plocha na parkovanie 3 MV: 55,45 m2
- materiál keramická tehla POROTHERM
- strešná keramická krytina RÖBEN
- minerálna strešná izolácia ISOVER UNIROL plus hr. 360 mm
- zásyp zo štrkodrvy hr. 200 mm (300 mm)
- železobetónová základová doska
- debnenie STYRODUR
- obvodová stena ISOVER 60 mm
- podkladový betón hr. 150 mm vystužený sieťovinou
- počet izieb 6
IS:
- pri pozemku: elektrika, obecný vodovod, kanalizácia, plyn,
Dispozičné členenie:
- vstupná chodba, technická miestnosť s prístupom do podkrovia
- pracovňa/hosťovská izba
- kuchyňa + jedáleň, obývačka
- vnútorná chodba, 2 detské izby, šatník a kúpeľňa
- spálňa s kúpeľňou a šatníkom
Pozemok
- rovinatý 1 616 m2
- orientácia východ- západ
- záhrada s vysadenými ovocnými stromami a viničom
- prístupová cesta asfaltová
Výhody:
- tichá lokalita
- pekné výhľady do okolia
- vzdialenosť od Hlohovca 13,5 km, od Trnavy 16 km
Cena:
- 158.500,- Eur v prípade hotovosti, vrátane provízie a kompletného odborného servisu
Poskytujeme sprostredkovanie najvýhodnejšieho úveru našim úverovým špecialistom.
Dodatok k cene: , vrátane provízie, možnosť HÚ
Zastavaná plocha: 397m²
Obytná plocha: 163.79m²
Celková rozloha: 1616m²
Rozloha pozemku: 1219m²
Úžitková plocha: 163.79m²
Stav: nedokončený
El. napätie: 230/400V
Plyn: áno
Kanalizácia: áno
Internet: nie
Pivnica: nie
Inžinierske siete: áno
Postavené z: tehla
Zariadenie: nezariadený
Zateplený objekt: nie
Energetický certifikát: nie
Terén: rovina
Prístupová cesta: neupravená cesta
|
|
Kontaktovať inzerenta e-mailom
Kontaktovať e-mailom môže iba overený užívateľ.
Overenie je zadarmo.
Vaše telefónne číslo *
Kontaktovať e-mailom môže iba overený užívateľ.
Overenie je zadarmo.
Vaše telefónne číslo *
Podobné inzeráty

SIERA Realitná Kancelária: Predaj 4-izbového rodinného domu v obci Červeník – Exkluzívna ponuka
Ponúkame na predaj 4-izbový rodinný dom v obci Červeník s úžitkovou plochou 112 m² a pozemkom o výmere 700 m². Nehnuteľnosť sa nachádza na Mierovej ulici v tichej lokalite.
Kľúčové vlastnosti:
Ro ...
130 000 €
Hlohovec
920 42
920 42
439 x
Označiť zlý inzerát Chybnú kategóriu Ohodnotiť užívateľa Zmazať/Upraviť/Topovať

Typ: Rodinný dom
Ulica: Červeník
Obec: Červeník
Leaders&Partners s.r.o. pobočka Trnava ponúka na predaj 2-podlažný rodinný dom v obci Červeník okres Hlohovec
Rodinný dom sa rozprestiera na pozemku s celkovou rozlohou 648m2 z čoho zastavaná plocha je 326m2. Podlahová plocha c ...
220 000 €
Hlohovec
920 42
920 42
80 x
Označiť zlý inzerát Chybnú kategóriu Ohodnotiť užívateľa Zmazať/Upraviť/Topovať

Aj starší dom sa da určite prerobiť, zrekonštruovať bude to stáť ale veľa peňazí, niekedy sa dokonca stáva že investícia vložená do rekonštrukcie prevyšuje náklady novostavby. Pri rekonštrukcii vždy budú obmedzenia ako nosné priečky a mnoho iného, nebude to nikdy vyzerať úplne podľa vašich predstáv ...
96 500 €
Hlohovec
920 42
920 42
582 x
Označiť zlý inzerát Chybnú kategóriu Ohodnotiť užívateľa Zmazať/Upraviť/Topovať

Typ: Rodinný dom
Ulica: Ružová
Obec: Červeník
Sale-A Váš partner v realitách ponúka na predaj rodinný dom v známej obci Červeník na ulici Ružová.
Celková výmera pozemku je 575 m2. Dom dispozične pozostáva zo vstupnej haly, priestrannej kuchyne s kuchynskou linkou, 3 samostatné veľké izby, zre ...
220 000 €
Hlohovec
920 42
920 42
348 x
Označiť zlý inzerát Chybnú kategóriu Ohodnotiť užívateľa Zmazať/Upraviť/Topovať

Typ: Rodinný dom
Obec: Červeník
Predstavujeme vám štýlový a úsporný rodinný dom, ideálny pre tých, ktorí hľadajú pokojné bývanie, komfortné technológie a možnosť dotvoriť si interiér podľa vlastných predstáv.
🔹 Základné informácie
Úžitková plocha: 103 m²
Zastavaná plocha: 146 m²
Poze ...
225 000 €
Hlohovec
920 42
920 42
354 x
Označiť zlý inzerát Chybnú kategóriu Ohodnotiť užívateľa Zmazať/Upraviť/Topovať

Dom za cenu pozemku – ideálny projekt na rekonštrukciu
Ponúkame na predaj dlhý sedliacky dom v centre Ratkoviec, ktorý je skvelou voľbou pre tých, ktorí hľadajú projekt na kompletnú rekonštrukciu. Tento dom má veľký potenciál a je ideálny na vytvorenie moderného bývania podľa vlastných predstáv.
Z ...
Dohodou
Hlohovec
920 42
920 42
387 x
Označiť zlý inzerát Chybnú kategóriu Ohodnotiť užívateľa Zmazať/Upraviť/Topovať

Ponúkame na predaj 2-podlažný rodinný dom v obci Červeník, okres Hlohovec.
Celková rozloha pozemku je 648m2 z čoho zastavaná plocha a nádvorie sú 326m2.
Celková podlahová plocha rodinného domu je 126m2.
Dispozícia RD:
1. poschodie – vstupná chodba , kúpeľňa (vaňa s toaletou) , kuchyňa so špajz ...
220 000 €
Hlohovec
920 42
920 42
536 x
Označiť zlý inzerát Chybnú kategóriu Ohodnotiť užívateľa Zmazať/Upraviť/Topovať

Ponúkame na predaj čiastočne zrekonštruovaný jednopodlažný 3-izbový rodinný dom s garážou, veľkou záhradou, úžitková plocha 130 m2, pozemok o výmere 1332,5 m2.
RD sa nachádza v obci Žlkovce, medzi krajským mestom Trnava (14 km) a okresnými, Hlohovec (11 km) Piešťany ( 20 km).
Čiastočná rekonš ...
139 000 €
Hlohovec
920 42
920 42
1519 x
Označiť zlý inzerát Chybnú kategóriu Ohodnotiť užívateľa Zmazať/Upraviť/Topovať

Ponúkam na predaj túto NOVOSTAVBU v obci Ratkovce. Dom sa nachádza okolo 13 km od Trnavy.Cena domu je pevná 350 tis € Koho oslovil tento dom a má záujem o viac informácii môže sa ohlásiť na tel 0915214537. Dom je bez ťarchy . Kataster to má čistý ako slza.
350 000 €
Hlohovec
920 42
920 42
615 x
Označiť zlý inzerát Chybnú kategóriu Ohodnotiť užívateľa Zmazať/Upraviť/Topovať

Ponúkam na predaj modernú novostavbu 4-izbového rodinného domu v štýle bungalov, nachádzajúcu sa v novovybudovanej a tichej obytnej zóne obce Červeník.
Dispozícia domu:
Zádverie (4,32 m²)
Chodba (3,12 m²)
Technická miestnosť (1,95 m²)
Samostatné WC (1,76 m²)
Kúpeľňa (6,6 m²)
Dve detské iz ...
223 900 €
Hlohovec
920 42
920 42
3375 x
Označiť zlý inzerát Chybnú kategóriu Ohodnotiť užívateľa Zmazať/Upraviť/Topovať