MODERNÝ ELEGANTNÝ 4IZB. BYT,PETRŽALKA, KOMPLET ZARIADENÝ
- [2.10. 2025]Zmazať/ Upraviť/ Topovať











Na predaj elegantný, kompletne zrekonštruovaný, moderný, klimatizovaný, plne vybavený a zariadený 4izbový byt, nachádzajúci sa na 4/8.p. bytového domu na Pifflovej ulici, hneď skraja Petržalky (oproti Auparku).
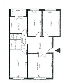
Rozloha bytu je 85m2. K bytu prináleží aj vydláždená loggia o výmere 3,28m2 s moderným posuvným zaskleným systémom a sieťkou proti hmyzu.
Výstup na loggiu, orientovanú do zelene, je z kuchyne, posuvnými francúzskymi dverami a so zatemňovacími roletami.
Dispozícia bytu:
vstupnými oceľovými, protipožiarnymi, bezpečnostnými dverami sa vstúpi do priestrannej haly o výmere 11,55m2, v ktorej sa nachádza dostatok úložných priestorov(vstavaná skriňa) a veľký jedálenský stôl s dizajnovými stoličkami pre celú rodinu.
Vľavo sa nachádza obývačka o výmere 17,04m2, s modernou koženou sedačkou s dvomi sklápacími mechanizmami, dizajnovým konferenčným stolíkom,minimalistickým sektorovým TV nábytkom, LCD TV, a na mieru vyrobeným pracovným kútom.Z priestrannej haly je aj vstup do detskej izby o výmere 13,08m2, 2x detská posteľ, skriňa ( cvičebné vybavenie tejto izby ako jediné nieje predmetom predaja). Oproti vstupných dverí sa nachádza samostatná kúpeľňa o výmere 2,93m2 s vaňou, umývadlom a práčkou. Samostatné WC o výmere 0,93m2 s podomietkovovým splachovačom a závesnou WC misou (so sprškou) a úložným priestorom. Vpravo sa nacháza kuchyňa o výmere 8,90m2, s kuchynskou linkou do tvaru L,s pracovnou doskou z pravého kameňa, granitovým drezom, indukčnou varnou doskou, elektrickou rúrou; v modernom dizajne, vybavenou aj americkou chladničkou, a kuchynským stôlom.
Vpravo z haly sa vstupuje do ďalšej detskej izby o výmere 10,78m2, ktorá slúži majiteľom ako šatník, pracovňa, žehliareň a úložný priestor. Je vybavený otvoreným policovým šatníkom, veĺkou skriňou s posuvnými dverami a pracovným kútom. Spálňa o výmere 14,04m2 je zariadená elegantnou manželskou posteľou.
Všetok nábytok, zariaďovacie predmety a spotrebiče, zostáva v byte, a je v cene bytu (okrem telocvičného náradia v detskej izbe).
BYTOVÝ DOM:
Zateplený bytový dom
Spoločné priestory zrekonštruované
Výťah nový
Vstup do domu modernizovaný
Pivnič.kobka na prízemí.
BYT:
Kompletná rekonštrukcia v r.2019
Medené priznané rozvody + dizajnové radiátory
Všetky spotrebiče zn. BOSCH
Posuvné balkónové dvere so zatemňovacími roletami
2x klimatizačná jednotka
V izbách nalepené kvalitné koberce so soklami a lištami
Original drevené parkety
Obklad v hale z prírodného kameňa
Moderná sanita
Závesy na mieru
Značkové vypínače a zásuvky
SMART podsvietenia
Všetky okná s vnútornými žalúziami
Náklady na bývanie:
250€/mes.na 4 osoby poplatok správcovskej spoločnosti
55€/mes. elektrina
Byt je vybavený modernými kvalitnými a účelnými zariaďovacími prvkami, spĺňa nároky na moderné bývanie, je presvetlený, so sviežim šarmom. Keďže sa byt predáva kompletne zariadený, stačí si priniesť osobné veci a bývať.
Parkovanie PAAS
Rozloha bytu je 85m2. K bytu prináleží aj vydláždená loggia o výmere 3,28m2 s moderným posuvným zaskleným systémom a sieťkou proti hmyzu.
Výstup na loggiu, orientovanú do zelene, je z kuchyne, posuvnými francúzskymi dverami a so zatemňovacími roletami.
Dispozícia bytu:
vstupnými oceľovými, protipožiarnymi, bezpečnostnými dverami sa vstúpi do priestrannej haly o výmere 11,55m2, v ktorej sa nachádza dostatok úložných priestorov(vstavaná skriňa) a veľký jedálenský stôl s dizajnovými stoličkami pre celú rodinu.
Vľavo sa nachádza obývačka o výmere 17,04m2, s modernou koženou sedačkou s dvomi sklápacími mechanizmami, dizajnovým konferenčným stolíkom,minimalistickým sektorovým TV nábytkom, LCD TV, a na mieru vyrobeným pracovným kútom.Z priestrannej haly je aj vstup do detskej izby o výmere 13,08m2, 2x detská posteľ, skriňa ( cvičebné vybavenie tejto izby ako jediné nieje predmetom predaja). Oproti vstupných dverí sa nachádza samostatná kúpeľňa o výmere 2,93m2 s vaňou, umývadlom a práčkou. Samostatné WC o výmere 0,93m2 s podomietkovovým splachovačom a závesnou WC misou (so sprškou) a úložným priestorom. Vpravo sa nacháza kuchyňa o výmere 8,90m2, s kuchynskou linkou do tvaru L,s pracovnou doskou z pravého kameňa, granitovým drezom, indukčnou varnou doskou, elektrickou rúrou; v modernom dizajne, vybavenou aj americkou chladničkou, a kuchynským stôlom.
Vpravo z haly sa vstupuje do ďalšej detskej izby o výmere 10,78m2, ktorá slúži majiteľom ako šatník, pracovňa, žehliareň a úložný priestor. Je vybavený otvoreným policovým šatníkom, veĺkou skriňou s posuvnými dverami a pracovným kútom. Spálňa o výmere 14,04m2 je zariadená elegantnou manželskou posteľou.
Všetok nábytok, zariaďovacie predmety a spotrebiče, zostáva v byte, a je v cene bytu (okrem telocvičného náradia v detskej izbe).
BYTOVÝ DOM:
Zateplený bytový dom
Spoločné priestory zrekonštruované
Výťah nový
Vstup do domu modernizovaný
Pivnič.kobka na prízemí.
BYT:
Kompletná rekonštrukcia v r.2019
Medené priznané rozvody + dizajnové radiátory
Všetky spotrebiče zn. BOSCH
Posuvné balkónové dvere so zatemňovacími roletami
2x klimatizačná jednotka
V izbách nalepené kvalitné koberce so soklami a lištami
Original drevené parkety
Obklad v hale z prírodného kameňa
Moderná sanita
Závesy na mieru
Značkové vypínače a zásuvky
SMART podsvietenia
Všetky okná s vnútornými žalúziami
Náklady na bývanie:
250€/mes.na 4 osoby poplatok správcovskej spoločnosti
55€/mes. elektrina
Byt je vybavený modernými kvalitnými a účelnými zariaďovacími prvkami, spĺňa nároky na moderné bývanie, je presvetlený, so sviežim šarmom. Keďže sa byt predáva kompletne zariadený, stačí si priniesť osobné veci a bývať.
Parkovanie PAAS
|
|
Kontaktovať inzerenta e-mailom
Kontaktovať e-mailom môže iba overený užívateľ.
Overenie je zadarmo.
Vaše telefónne číslo *
Kontaktovať e-mailom môže iba overený užívateľ.
Overenie je zadarmo.
Vaše telefónne číslo *