OBCHODNÝ PRIESTOR, 32m2, ŽILINA - CENTRUM
- [1.10. 2025]Zmazať/ Upraviť/ Topovať


















SaleA - Váš partner v realitách ponúka exkluzívne na prenájom obchodný priestor priamo v centre mesta Žilina o celkovej výmere 32m2.
Priestor sa nachádza na ulici Štúrova v suteréne - pivničný priestor bez okien.
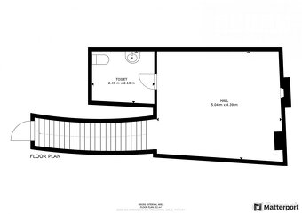
Priestor tvorí jedna miestnosť o výmere 22m2, ktorú môžete využiť na obchodnú prevádzku alebo sklad. Ďalej sa tu nachádza miestnosť so sociálnym zariadením.
Priestor nie je vykurovaný. Kúrenie je možné zabezpečiť elektrickými radiátormi.
Cena prenájmu je 300 Eur + energie. Voľný je ihneď.
V prípade záujmu alebo pre bližšie informácie ma kontaktujte telefonicky na 0903 310 506 alebo mailom na droncovsky@salea.sk
Priestor sa nachádza na ulici Štúrova v suteréne - pivničný priestor bez okien.
Priestor tvorí jedna miestnosť o výmere 22m2, ktorú môžete využiť na obchodnú prevádzku alebo sklad. Ďalej sa tu nachádza miestnosť so sociálnym zariadením.
Priestor nie je vykurovaný. Kúrenie je možné zabezpečiť elektrickými radiátormi.
Cena prenájmu je 300 Eur + energie. Voľný je ihneď.
V prípade záujmu alebo pre bližšie informácie ma kontaktujte telefonicky na 0903 310 506 alebo mailom na droncovsky@salea.sk
|
| |||||||||||||||||||||||||||||||
Kontaktovať inzerenta e-mailom
Kontaktovať e-mailom môže iba overený užívateľ.
Overenie je zadarmo.
Vaše telefónne číslo *
Kontaktovať e-mailom môže iba overený užívateľ.
Overenie je zadarmo.
Vaše telefónne číslo *