Dom na predaj Slovenská ul. v centre Prešova - Multifunkčný
- [1.10. 2025]Zmazať/ Upraviť/ Topovať











Dom na predaj Slovenská ul. v centre Prešova - Multifunkčný priestor plný inšpirácie
Na predaj rodinný dom - polyfunkčný priestor na ul. Slovenská pár metrov od úradu práce a s výhľadom na nonkonkatedrálu sv. Mikuláša.
Bývanie v širšom centre mesta, alebo ideálna nehnuteľnosť v prípade ak bývate, podnikáte a ešte aj prenajímate. Atraktívna lokalita ponúka absolútne súkromie, z jednej časti domu s výhľadom aj na katedrálu hlavnej ulice a druhá časť je na jednosmernú ulicu Slovenská. V noci je v tejto časti kľud, cez deň klasická mestský ruch. V ponuke je plná občianska vybavenosť s pešou dostupnosťou do centra mesta cca 50m, bez dopravných obmedzení.
Viac fotiek a infa: www.dom.alibaba.sk
Cena v rámci dohody a ponúk k spokojnosti kupujúceho.
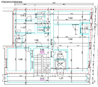
Ide o priestranný rodinný dom o rozlohe približne 370 m² postavený na pozemku 130 m² - 12m x 10,5m,
+170 m² pôjd,
+150 m² suterén,
ktorý poskytuje dostatok priestoru na oddych a podnikanie.
Prízemie domu má dva samostatné vstupy. Jeden vstup cez drevenú bránu, druhý vstup priamo z ulice.
Dom prešiel za posledné 4 roky plnou rekonštrukciou.
Boli vymenené komplet elektrické rozvody až po centrálny kábel k rozvádzaču pri dome.
Každé poschodie má merač elektriny, vody a plynu.
Vymenené boli komplet rozvody vody a odpadu v celom dome. Taktiež prevedená výmena plynových kotlov. Jeden sa nachádza v suteréne určený pre prízemie, druhý je na poschodí a určený pre celé prvé poschodie.
Dom má 50-80cm múry, nie je zateplený. Ale má dobrú polohu, takže je tam v zime teplo a v lete prijemne.
Na predaj rodinný dom - polyfunkčný priestor na ul. Slovenská pár metrov od úradu práce a s výhľadom na nonkonkatedrálu sv. Mikuláša.
Bývanie v širšom centre mesta, alebo ideálna nehnuteľnosť v prípade ak bývate, podnikáte a ešte aj prenajímate. Atraktívna lokalita ponúka absolútne súkromie, z jednej časti domu s výhľadom aj na katedrálu hlavnej ulice a druhá časť je na jednosmernú ulicu Slovenská. V noci je v tejto časti kľud, cez deň klasická mestský ruch. V ponuke je plná občianska vybavenosť s pešou dostupnosťou do centra mesta cca 50m, bez dopravných obmedzení.
Viac fotiek a infa: www.dom.alibaba.sk
Cena v rámci dohody a ponúk k spokojnosti kupujúceho.
Ide o priestranný rodinný dom o rozlohe približne 370 m² postavený na pozemku 130 m² - 12m x 10,5m,
+170 m² pôjd,
+150 m² suterén,
ktorý poskytuje dostatok priestoru na oddych a podnikanie.
Prízemie domu má dva samostatné vstupy. Jeden vstup cez drevenú bránu, druhý vstup priamo z ulice.
Dom prešiel za posledné 4 roky plnou rekonštrukciou.
Boli vymenené komplet elektrické rozvody až po centrálny kábel k rozvádzaču pri dome.
Každé poschodie má merač elektriny, vody a plynu.
Vymenené boli komplet rozvody vody a odpadu v celom dome. Taktiež prevedená výmena plynových kotlov. Jeden sa nachádza v suteréne určený pre prízemie, druhý je na poschodí a určený pre celé prvé poschodie.
Dom má 50-80cm múry, nie je zateplený. Ale má dobrú polohu, takže je tam v zime teplo a v lete prijemne.
|
|
Kontaktovať inzerenta e-mailom
Kontaktovať e-mailom môže iba overený užívateľ.
Overenie je zadarmo.
Vaše telefónne číslo *
Kontaktovať e-mailom môže iba overený užívateľ.
Overenie je zadarmo.
Vaše telefónne číslo *