1-izb. byt v novostavbe v Krásňanoch
- [1.10. 2025]Zmazať/ Upraviť/ Topovať


















Ponúkame na predaj 1- izb. byt na ul. Pekná cesta, Rača – Krásňany.
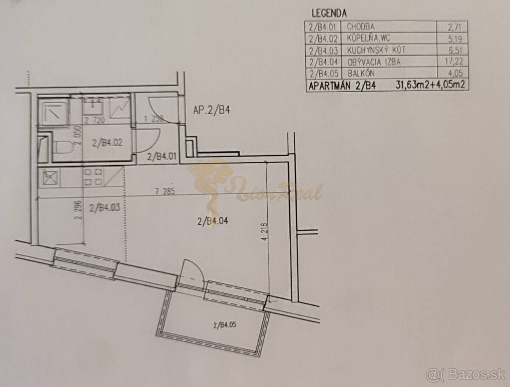
Výmera 34,3 m2 vrátane balkóna, nachádza sa na 1.p./3 s výťahom.
Byt je dostatočne priestranný, má veľmi dobrú dispozíciu a praktické usporiadanie. Kuchynka je plne zariadená so všetkými spotrebičmi a oddelená od obývacej časti. K dispozícii je aj priestranný balkón orientovaný na juh, ktorý sa dá využiť počas väčšiny roka. Kúpeľňa je so sprchovým kútom a WC, je plne zariadená a priestranne usporiadaná.
Byt sa nachádza v novostavbe v novom uzavretom areáli s bezpečným parkovaním a možnosťou dokúpiť si parkovacie miesto.
V okolí sa nachádza kompletná občianska vybavenosť.
Na predaj sú ešte dva ďalšie byty: Celková výmera je 37,30 m2 vrátane balkónu a druhá varianta 39 m2 (cena 179.000,- €).
K cene bude pripočítaná sprostredkovateľská provízia 3.000,- € v rámci ktorej Vám zabezpečíme:
- kompletné preverenie právneho stavu a tiarch danej nehnuteľnosti
- kópiu LV prípadne katastrálnej mapy s kolkom na právne účely
- notárske poplatky za overenie podpisov na zmluvách
- správny poplatok za bežný vklad vlastníckeho práva do katastra
- kompletný právny servis zabezpečený interným právnikom /vypracovanie zmluvy o budúcej zmluve, kúpnej zmluvy, návrhu na vklad, plnomocenstiev, dodatkov, preberacieho protokolu....
Informácie o ponúkanej nehnuteľnosti a obhliadky si môžete dohodnúť na telefónnom čísle: 0907 407 754, 0948 598 398, 0903 853 035, prípadne email: lionreal@lionreal.sk
Pri kontaktovaní emailom, Vás prosíme uvádzať na Vás i telefonický kontakt.
V prípade záujmu Vám zabezpečíme BEZPLATNÝ kompletný hypotekárny servis. K dispozícii Vám bude náš hypotekárny špecialista, ktorý Vám dojedná najvýhodnejšie podmienky.
Dodatok k cene: + sprostredkovateľská provízia 3.000,- €
Obytná plocha: 34.3m²
Celková rozloha: 34.3m²
Úžitková plocha: 34.3m²
Vlastníctvo: osobné
Balkón: áno
Výťah: áno
Postavené z: Zmiešané
Výmera 34,3 m2 vrátane balkóna, nachádza sa na 1.p./3 s výťahom.
Byt je dostatočne priestranný, má veľmi dobrú dispozíciu a praktické usporiadanie. Kuchynka je plne zariadená so všetkými spotrebičmi a oddelená od obývacej časti. K dispozícii je aj priestranný balkón orientovaný na juh, ktorý sa dá využiť počas väčšiny roka. Kúpeľňa je so sprchovým kútom a WC, je plne zariadená a priestranne usporiadaná.
Byt sa nachádza v novostavbe v novom uzavretom areáli s bezpečným parkovaním a možnosťou dokúpiť si parkovacie miesto.
V okolí sa nachádza kompletná občianska vybavenosť.
Na predaj sú ešte dva ďalšie byty: Celková výmera je 37,30 m2 vrátane balkónu a druhá varianta 39 m2 (cena 179.000,- €).
K cene bude pripočítaná sprostredkovateľská provízia 3.000,- € v rámci ktorej Vám zabezpečíme:
- kompletné preverenie právneho stavu a tiarch danej nehnuteľnosti
- kópiu LV prípadne katastrálnej mapy s kolkom na právne účely
- notárske poplatky za overenie podpisov na zmluvách
- správny poplatok za bežný vklad vlastníckeho práva do katastra
- kompletný právny servis zabezpečený interným právnikom /vypracovanie zmluvy o budúcej zmluve, kúpnej zmluvy, návrhu na vklad, plnomocenstiev, dodatkov, preberacieho protokolu....
Informácie o ponúkanej nehnuteľnosti a obhliadky si môžete dohodnúť na telefónnom čísle: 0907 407 754, 0948 598 398, 0903 853 035, prípadne email: lionreal@lionreal.sk
Pri kontaktovaní emailom, Vás prosíme uvádzať na Vás i telefonický kontakt.
V prípade záujmu Vám zabezpečíme BEZPLATNÝ kompletný hypotekárny servis. K dispozícii Vám bude náš hypotekárny špecialista, ktorý Vám dojedná najvýhodnejšie podmienky.
Dodatok k cene: + sprostredkovateľská provízia 3.000,- €
Obytná plocha: 34.3m²
Celková rozloha: 34.3m²
Úžitková plocha: 34.3m²
Vlastníctvo: osobné
Balkón: áno
Výťah: áno
Postavené z: Zmiešané
|
| |||||||||||||||||||||||||||||||
Kontaktovať inzerenta e-mailom
Kontaktovať e-mailom môže iba overený užívateľ.
Overenie je zadarmo.
Vaše telefónne číslo *
Kontaktovať e-mailom môže iba overený užívateľ.
Overenie je zadarmo.
Vaše telefónne číslo *