PNORF - 4i bungalov, 106,20 m2, pozemok 523 m2, Špačince
- TOP - [7.10. 2025]Zmazať/ Upraviť/ Topovať





























PNORF – REAL ESTATE exkluzívne ponúka na predaj samostatný 4-izbový rodinný holodom (typ bungalov). Nachádza sa v tichej, novovytvorenej rezidenčnej lokalite na Hospodárskej ulici v obci Špačince. Lokalita zaručuje perfektnú dostupnosť do Trnavy (len 3 minúty autom) a vďaka napojeniu na obchvat aj smerom na Bratislavu, Žilinu či Nitru.
Začiatok výstavby jeseň 2025, kolaudácia stavby jar 2026.
________________________________________
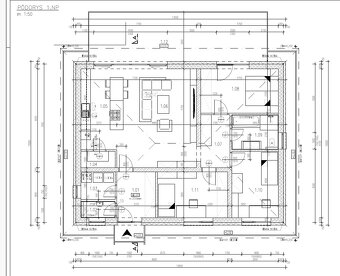
Dispozícia a energie
Developer projektu použil rokmi overenú dispozíciu s inteligentnými a praktickými riešeniami, ktoré v aktuálnom štádiu výstavby domu môže variovať podľa vašich požiadaviek a predstáv:
Srdce domova Otvorená denná zóna s kuchyňou, jedálňou a obývačkou. Priamy výstup na terasu s výhľadom do záhrady západnej orientácie.
Súkromie 3 nepriechodné izby (vrátane hlavnej spálne so šatníkom) v oddelenej nočnej zóne.
Pohodlie Hlavná kúpeľňa (vaňa, sprcha, toaleta), plus hosťovská toaleta.
Technológie Efektívne tepelné čerpadlo s podlahovým kúrením aj chladením. Predpríprava na žalúzie, alarm a fotovoltaiku.
Úložné priestory Priestranné zádverie, technická miestnosť, praktická špajza a dodatočný úložný priestor v podkroví.
________________________________________
Technický prehľad: Parametre a štandardy holodomu
Rozmery Obytná plocha: 106,20 m² / Pozemok: 523 m²
Konštrukcia Murivo: Tehla 30 cm. Zateplenie: 15 cm polystyrén.
Vykurovanie Tepelné čerpadlo (nízkoenergetické a úsporné).
Okná Izolačné troj-sklo s vonkajšou povrchovou úpravou.
Strecha Kvalitná strešná krytina Bramac (čierna) s väzníkovým krovom.
Dokončenie interiéru Hotové sadrokartóny, omietky, potery, vypínače a zásuvky.
Príprava na budúcnosť Predpríprava na krb, alarm a kamerový systém.
Siete Elektrina, obecný vodovod, kanalizácia, optická sieť (Airnet).
________________________________________
Lokalita a bezpečnosť
• Tichá a bezpečná zóna: Dom sa nachádza na konci slepej ulice s minimálnou prevádzkou, čo zaručuje vysokú mieru bezpečnosti pre deti.
• Infraštruktúra: V zóne je už vybudovaná nová asfaltová cesta, chodníky, osvetlenie a všetky inžinierske siete.
• Občianska vybavenosť: Špačince fungujú ako malé mestečko s kompletnou občianskou vybavenosťou.
________________________________________
PNORF – REAL ESTATE: Profesionálne právne a realitné služby. V prípade záujmu nás kontaktujte: Tel.: 0904 825 980 | E-mail: pnorf.realestate@hotmail.com + Hypotekárne poradenstvo zdarma.
Začiatok výstavby jeseň 2025, kolaudácia stavby jar 2026.
________________________________________
Dispozícia a energie
Developer projektu použil rokmi overenú dispozíciu s inteligentnými a praktickými riešeniami, ktoré v aktuálnom štádiu výstavby domu môže variovať podľa vašich požiadaviek a predstáv:
Srdce domova Otvorená denná zóna s kuchyňou, jedálňou a obývačkou. Priamy výstup na terasu s výhľadom do záhrady západnej orientácie.
Súkromie 3 nepriechodné izby (vrátane hlavnej spálne so šatníkom) v oddelenej nočnej zóne.
Pohodlie Hlavná kúpeľňa (vaňa, sprcha, toaleta), plus hosťovská toaleta.
Technológie Efektívne tepelné čerpadlo s podlahovým kúrením aj chladením. Predpríprava na žalúzie, alarm a fotovoltaiku.
Úložné priestory Priestranné zádverie, technická miestnosť, praktická špajza a dodatočný úložný priestor v podkroví.
________________________________________
Technický prehľad: Parametre a štandardy holodomu
Rozmery Obytná plocha: 106,20 m² / Pozemok: 523 m²
Konštrukcia Murivo: Tehla 30 cm. Zateplenie: 15 cm polystyrén.
Vykurovanie Tepelné čerpadlo (nízkoenergetické a úsporné).
Okná Izolačné troj-sklo s vonkajšou povrchovou úpravou.
Strecha Kvalitná strešná krytina Bramac (čierna) s väzníkovým krovom.
Dokončenie interiéru Hotové sadrokartóny, omietky, potery, vypínače a zásuvky.
Príprava na budúcnosť Predpríprava na krb, alarm a kamerový systém.
Siete Elektrina, obecný vodovod, kanalizácia, optická sieť (Airnet).
________________________________________
Lokalita a bezpečnosť
• Tichá a bezpečná zóna: Dom sa nachádza na konci slepej ulice s minimálnou prevádzkou, čo zaručuje vysokú mieru bezpečnosti pre deti.
• Infraštruktúra: V zóne je už vybudovaná nová asfaltová cesta, chodníky, osvetlenie a všetky inžinierske siete.
• Občianska vybavenosť: Špačince fungujú ako malé mestečko s kompletnou občianskou vybavenosťou.
________________________________________
PNORF – REAL ESTATE: Profesionálne právne a realitné služby. V prípade záujmu nás kontaktujte: Tel.: 0904 825 980 | E-mail: pnorf.realestate@hotmail.com + Hypotekárne poradenstvo zdarma.
|
| |||||||||||||||||||||||||||||||
Kontaktovať inzerenta e-mailom
Kontaktovať e-mailom môže iba overený užívateľ.
Overenie je zadarmo.
Vaše telefónne číslo *
Kontaktovať e-mailom môže iba overený užívateľ.
Overenie je zadarmo.
Vaše telefónne číslo *
Podobné inzeráty
5-izbový rodinný dom s dvomi garážami v obci Špačince - [31.10. 2025]reality BIČIAR exkluzívne ponúka na predaj priestranný 5-izbový rodinný dom s dvoma garážami v obci Špačince
LOKALITA
Nehnuteľnosť sa nachádza len 5 km od krajského mesta Trnava v obci Špačince, ktorá sa okrem širokej občianskej vybavenosti (materská a základná škola, pošta, obchody, reštaurácie ...
349 000 €
Trnava
919 51
919 51
225 x
Označiť zlý inzerát Chybnú kategóriu Ohodnotiť užívateľa Zmazať/Upraviť/Topovať
NOVOSTAVBA - Rodinny dom 4 izbový - TOP - [23.10. 2025]Na predaj 4-izbová novostavba rodinného domu v obci Špačince (ul. Hospodárska)
Dobrý deň, ponúkame na predaj murovaný, samostatne stojaci 4-izbový rodinný dom v atraktívnej a novovybudovanej lokalite v obci Špačince na ulici Hospodárska, s novou cestou a verejným osvetlením. Dom sa nachádza na po ...
267 000 €
Trnava
919 51
919 51
786 x
Označiť zlý inzerát Chybnú kategóriu Ohodnotiť užívateľa Zmazať/Upraviť/Topovať
PNORF: Nová kapitola Vášho života. Prvotriedny 4i Bungalov. - TOP - [16.10. 2025]Vitajte na Hospodárskej ulici, v novovznikajúcej štvrti Špačiniec. PNORF – REAL ESTATE Vám exkluzívne predstavuje príležitosť vlastniť murovanú, samostatne stojacu novostavbu (4-izbový rodinný dom) navrhnutú pre moderný rodinný život.
Tento dom, postavený na pozemku s rozlohou 537 m², spája vysok ...
267 000 €
Trnava
919 51
919 51
882 x
Označiť zlý inzerát Chybnú kategóriu Ohodnotiť užívateľa Zmazať/Upraviť/Topovať
BAR v úplnom centre obce Špačince - [27.9. 2025]Typ: Rodinný dom
Ulica: Hlavná
Obec: Špačince
Ponúkame na predaj jedinečný rodinný dom s prevádzkou baru, situovaný v centrálnej zóne frekventovanej obce Špačince, priamo v uličnej zástavbe. Tehlová stavba so sedlovou strechou sa nachádza na pozemku o výmere 781 m² a predstavuje výbornú príleži ...
265 000 €
Trnava
919 51
919 51
770 x
Označiť zlý inzerát Chybnú kategóriu Ohodnotiť užívateľa Zmazať/Upraviť/Topovať
Rodinný dom s dvojgarážou v Špačinciach - TOP - [30.10. 2025]/ EXKLUZÍVNE IBA U NÁS / ponúkame na predaj priestranný dvojpodlažný rodinný dom s dvojgarážou v obľúbenej obci Špačince na ulici J. Strečanského, vzdialenej len pár minút od Trnavy. Táto päťročná novostavba s úžitkovou plochou 180 m² stojí na rovinatom pozemku s výmerou 441 m² a už na prvý pohľad z ...
448 000 €
Trnava
919 51
919 51
1567 x
Označiť zlý inzerát Chybnú kategóriu Ohodnotiť užívateľa Zmazať/Upraviť/Topovať








