Najom priestor ambulancie West –690€/m vrátane energií
- [30.9. 2025]Zmazať/ Upraviť/ Topovať











Typ: Obchodné priestory
Ulica: Úzka
Obec: Galanta
Na prenájom: priestor bývalej ambulancie – 690 € mesačne (vrátane energií)
Priestor sa nachádza na prízemí bytového domu na sídlisku West.
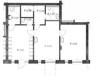
O výmere: 74.8m2
Pozostáva z:
- 2x klimatizovaných miestností,
- 1 čakárne,
- samostatnej bezbariérovej toalety pre hostí,
- výlevky,
- miestnosti využiteľnej ako šatňa alebo prezliekareň,
- miestnosti so sprchou a druhým WC.
- chodba
Na oknách sú žalúzie, podlahy sú riešené dlažbou. Orientácia na juh -tichá strana s výhľadom na zeleň. K priestoru neprislúcha vlastné parkovacie miesto, avšak je možné parkovať na miestach pre hostí alebo si prenajať vlastné.
Podmienky pri nástupe:
rezervačný poplatok v hotovosti: 690 €,
depozit: 690 €,
prvé nájomné: 690 € (uhrádza sa prevodom na účet spolu s depozitom).
Cena spolu pri podpise zmluvy: 2 070 €.
Mesačné nájomné je 690 € vrátane energií.
pre viac informácií ma môžete kontaktovať telefonicky 0918685901 alebo e-mailom bartikova@salea.sk
Status: aktívne
Vlastníctvo: firemné
Stav: novostavba
Celková plocha: 75 m2
Úžitková plocha: 74.8 m2
Zateplený objekt: áno
Kúpeľňa: áno
Počet podlaží: 1
Počet izieb: 4
Balkón: nie
Kúpeľňa: áno
Klimatizácia: áno
El. napätie: 230V
Parkovanie: verejné
Kanalizácia: áno
Zateplený objekt: nie
Terasa: nie
Vykurovanie: spoločné
Ulica: Úzka
Obec: Galanta
Na prenájom: priestor bývalej ambulancie – 690 € mesačne (vrátane energií)
Priestor sa nachádza na prízemí bytového domu na sídlisku West.
O výmere: 74.8m2
Pozostáva z:
- 2x klimatizovaných miestností,
- 1 čakárne,
- samostatnej bezbariérovej toalety pre hostí,
- výlevky,
- miestnosti využiteľnej ako šatňa alebo prezliekareň,
- miestnosti so sprchou a druhým WC.
- chodba
Na oknách sú žalúzie, podlahy sú riešené dlažbou. Orientácia na juh -tichá strana s výhľadom na zeleň. K priestoru neprislúcha vlastné parkovacie miesto, avšak je možné parkovať na miestach pre hostí alebo si prenajať vlastné.
Podmienky pri nástupe:
rezervačný poplatok v hotovosti: 690 €,
depozit: 690 €,
prvé nájomné: 690 € (uhrádza sa prevodom na účet spolu s depozitom).
Cena spolu pri podpise zmluvy: 2 070 €.
Mesačné nájomné je 690 € vrátane energií.
pre viac informácií ma môžete kontaktovať telefonicky 0918685901 alebo e-mailom bartikova@salea.sk
Status: aktívne
Vlastníctvo: firemné
Stav: novostavba
Celková plocha: 75 m2
Úžitková plocha: 74.8 m2
Zateplený objekt: áno
Kúpeľňa: áno
Počet podlaží: 1
Počet izieb: 4
Balkón: nie
Kúpeľňa: áno
Klimatizácia: áno
El. napätie: 230V
Parkovanie: verejné
Kanalizácia: áno
Zateplený objekt: nie
Terasa: nie
Vykurovanie: spoločné
|
|
Kontaktovať inzerenta e-mailom
Kontaktovať e-mailom môže iba overený užívateľ.
Overenie je zadarmo.
Vaše telefónne číslo *
Kontaktovať e-mailom môže iba overený užívateľ.
Overenie je zadarmo.
Vaše telefónne číslo *