HALO reality - Predaj, trojizbový byt Banská Bystrica, Iliaš
- [30.9. 2025]Zmazať/ Upraviť/ Topovať











Hľadáte bývanie, kde sa snúbi komfort, pokoj a moderný štýl?
Predstavujeme vám krásny 3-izbový byt v novostavbe, ktorý vás osloví svojím štýlom, praktickým riešením a výnimočnou atmosférou. Nachádza sa v obľúbenej mestskej časti Iliaš, len pár minút od centra Banskej Bystrice.
DISPOZÍCIA BYTU:
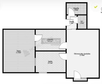
• vstupná chodba s priestorom na úložné riešenia
• otvorená denná zóna – priestranná obývačka s kuchyňou a francúzskym balkónom, orientovaná na sever
• dve nepriechodné izby – spálňa a pracovňa/detská izba, orientované na juh
• z pracovne priamy výstup na terasu (22 m2) – ideálne miesto pre relax či letné posedenia
• kúpeľňa so sprchovým kútom a priestorom na práčku
• samostatná toaleta s umývadlom
STAV NEHNUTEĽNOSTI:
Byt sa nachádza na 1. poschodí z 2 v kvalitnej tehlovej novostavbe, ktorá bola skolaudovaná v roku 2020. Je vo výbornom technickom stave – plastové okná, plávajúce podlahy, moderná dlažba, kvalitné bezpečnostné vstupné dvere a štýlové interiérové dvere.
Vykurovanie je riešené elektrickým podlahovým kúrením s termostatmi v každej miestnosti, čo zabezpečuje komfortnú a úspornú reguláciu teploty. Ohrev teplej úžitkovej vody (TÚV) je zabezpečený tepelným čerpadlom. V každej izbe je nainštalovaná rekuperácia, ktorá zaisťuje neustály prísun čerstvého vzduchu a zlepšuje energetickú efektivitu bývania.
Kuchynská linka je vybavená vstavanými spotrebičmi: elektrická rúra, indukčná varná doska a digestor.
Byt sa predáva kompletne zariadený a je pripravený na okamžité nasťahovanie – bez potreby ďalších investícií.
BYTOVÝ DOM:
• tehlová novostavba so zateplením, skolaudovaná v roku 2020
• len 10 bytových jednotiek – komorné a pokojné bývanie
• uzavretý spoločný dvor so zeleňou a priestorom na oddych
• spoločný odkladací priestor na prízemí
• vlastné parkovacie miesto vo dvore
VÝHODY:
• novostavba – moderné technické riešenia
• podlahové kúrenie + tepelné čerpadlo + rekuperácia
• priestranná terasa (22 m2)
• vlastné parkovacie miesto priamo vo dvore (v cene nehnuteľnosti)
• kompletne zariadený byt – pripravený na nasťahovanie
• kvalitné vstavané spotrebiče v kuchyni
• tichá lokalita s rýchlou dostupnosťou do centra mesta
MESAČNÉ NÁKLADY:
Pre 2 osoby cca 250 EUR (vrátane energií).
LOKALITA:
Iliaš je obľúbená časť Banskej Bystrice, známa svojím pokojným prostredím, prírodou a rýchlou dostupnosťou do centra, buď MHD, alebo autom (cca 10 minút). Príroda na dosah – ideálne na cykloturistiku, prechádzky či aktívny oddych.
NÁZOR MAKLÉRA:
Tento byt ponúka dokonalú rovnováhu medzi mestským komfortom a pokojom prírody. Je ideálny pre mladé rodiny, páry či jednotlivcov, ktorí hľadajú kvalitné, energeticky úsporné bývanie v novostavbe bez ďalších investícií. Bonusom je výnimočná terasa a uzavretý dvor – výnimočné benefity, ktoré dnes ni
Predstavujeme vám krásny 3-izbový byt v novostavbe, ktorý vás osloví svojím štýlom, praktickým riešením a výnimočnou atmosférou. Nachádza sa v obľúbenej mestskej časti Iliaš, len pár minút od centra Banskej Bystrice.
DISPOZÍCIA BYTU:
• vstupná chodba s priestorom na úložné riešenia
• otvorená denná zóna – priestranná obývačka s kuchyňou a francúzskym balkónom, orientovaná na sever
• dve nepriechodné izby – spálňa a pracovňa/detská izba, orientované na juh
• z pracovne priamy výstup na terasu (22 m2) – ideálne miesto pre relax či letné posedenia
• kúpeľňa so sprchovým kútom a priestorom na práčku
• samostatná toaleta s umývadlom
STAV NEHNUTEĽNOSTI:
Byt sa nachádza na 1. poschodí z 2 v kvalitnej tehlovej novostavbe, ktorá bola skolaudovaná v roku 2020. Je vo výbornom technickom stave – plastové okná, plávajúce podlahy, moderná dlažba, kvalitné bezpečnostné vstupné dvere a štýlové interiérové dvere.
Vykurovanie je riešené elektrickým podlahovým kúrením s termostatmi v každej miestnosti, čo zabezpečuje komfortnú a úspornú reguláciu teploty. Ohrev teplej úžitkovej vody (TÚV) je zabezpečený tepelným čerpadlom. V každej izbe je nainštalovaná rekuperácia, ktorá zaisťuje neustály prísun čerstvého vzduchu a zlepšuje energetickú efektivitu bývania.
Kuchynská linka je vybavená vstavanými spotrebičmi: elektrická rúra, indukčná varná doska a digestor.
Byt sa predáva kompletne zariadený a je pripravený na okamžité nasťahovanie – bez potreby ďalších investícií.
BYTOVÝ DOM:
• tehlová novostavba so zateplením, skolaudovaná v roku 2020
• len 10 bytových jednotiek – komorné a pokojné bývanie
• uzavretý spoločný dvor so zeleňou a priestorom na oddych
• spoločný odkladací priestor na prízemí
• vlastné parkovacie miesto vo dvore
VÝHODY:
• novostavba – moderné technické riešenia
• podlahové kúrenie + tepelné čerpadlo + rekuperácia
• priestranná terasa (22 m2)
• vlastné parkovacie miesto priamo vo dvore (v cene nehnuteľnosti)
• kompletne zariadený byt – pripravený na nasťahovanie
• kvalitné vstavané spotrebiče v kuchyni
• tichá lokalita s rýchlou dostupnosťou do centra mesta
MESAČNÉ NÁKLADY:
Pre 2 osoby cca 250 EUR (vrátane energií).
LOKALITA:
Iliaš je obľúbená časť Banskej Bystrice, známa svojím pokojným prostredím, prírodou a rýchlou dostupnosťou do centra, buď MHD, alebo autom (cca 10 minút). Príroda na dosah – ideálne na cykloturistiku, prechádzky či aktívny oddych.
NÁZOR MAKLÉRA:
Tento byt ponúka dokonalú rovnováhu medzi mestským komfortom a pokojom prírody. Je ideálny pre mladé rodiny, páry či jednotlivcov, ktorí hľadajú kvalitné, energeticky úsporné bývanie v novostavbe bez ďalších investícií. Bonusom je výnimočná terasa a uzavretý dvor – výnimočné benefity, ktoré dnes ni
|
|
Kontaktovať inzerenta e-mailom
Kontaktovať e-mailom môže iba overený užívateľ.
Overenie je zadarmo.
Vaše telefónne číslo *
Kontaktovať e-mailom môže iba overený užívateľ.
Overenie je zadarmo.
Vaše telefónne číslo *
Podobné inzeráty

Ponúkame na predaj 2 a pol izbový byt s BALKÓNOM a menšou LOGGIOU vo vynikajúcej lokalite v meste Banská Bystrica na ulici Trieda Hradca Králové, časť Fončorda. Nachádza sa na 2/8 poschodí zatepleného panelového bytového domu s celkovou rozlohou 61,21 m2 + balkón + menšia loggia.
STAV – byt je v ...
165 000 €
Banská Bystrica
974 01
974 01
172 x
Označiť zlý inzerát Chybnú kategóriu Ohodnotiť užívateľa Zmazať/Upraviť/Topovať

Ponúkame na predaj priestranný a slnečný dvojizbový byt, ktorý bol dispozične upravený na trojizbový, s loggiou na treťom podlaží bytového domu s výťahom na Tulskej ulici, sídlisko Fončorda v Banskej Bystrici. www.foncorda.sk
Byt má podlahovú plochu cca 65 m² (bez loggie) a v roku 2016 prešiel čias ...
164 450 €
Banská Bystrica
974 01
974 01
235 x
Označiť zlý inzerát Chybnú kategóriu Ohodnotiť užívateľa Zmazať/Upraviť/Topovať

Vymenim 3 izbovy zrekonstruovany byt typu velka NKS (70 m2)
v sasovej za mensi 1 alebo 2 izbovy v BB s vasim doplatkom.
Foto je ilustracne!
Viac info telefonicky na 0907 419 600
150 000 €
Banská Bystrica
974 01
974 01
263 x
Označiť zlý inzerát Chybnú kategóriu Ohodnotiť užívateľa Zmazať/Upraviť/Topovať

Predám 3 izbový byt s balkónom, nachádza sa na Mládežníckej ulici v lokalite Fončorda, Banská Bystrica na 1. poschodí (nie prízemie) z 10 v príjemnej a vyhľadávanej lokalite s kompletnou občianskou vybavenosťou.
Byt pozostáva zo samostatnej kuchyne, obývačky, detskej izby, spálne, samostatného WC ...
158 000 €
Banská Bystrica
974 01
974 01
264 x
Označiť zlý inzerát Chybnú kategóriu Ohodnotiť užívateľa Zmazať/Upraviť/Topovať

Ponúkame na predaj veľký 2 izbový byt 59,59m2 v obľúbenej lokalite Radvaň, ulica Poľná v Banskej Bystrici. Južne orientovaný byt s dvomi samostatnými izbami na 4/8 poschodí s krásnym výhľadom na Hôrku a Urpín v kompletne prerobenom bytovom dome s výborným parkovaním.
Dispozícia: vstupná chodba, kúp ...
159 900 €
Banská Bystrica
974 01
974 01
270 x
Označiť zlý inzerát Chybnú kategóriu Ohodnotiť užívateľa Zmazať/Upraviť/Topovať

Typ: 4-izbový byt
Ulica: ČSA
Mestská časť: Centrum
Obec: Banská Bystrica
Bosen Group Vám ponúka na predaj štýlový 4-izbový byt s krbom, loggiou a noblesou mestského bývania v centre Banskej Bystrice – ul. ČSA.
Hľadáte výnimočný priestor s atmosférou, ktorý kombinuje mestský komfort, súkr ...
479 000 €
Banská Bystrica
974 01
974 01
275 x
Označiť zlý inzerát Chybnú kategóriu Ohodnotiť užívateľa Zmazať/Upraviť/Topovať

AAA-real ponúka na predaj priestranný 3 izbový byt s balkónom v Banskej Bystrici - časť Fončorda, ktorý sa nachádza na 1/10 poschodí a jeho výmera je 65,35 m².
V byte bola realizovaná čiastočná rekonštrukcia: murované jadro so sklo keramickým svetlíkom pre denné svetlo do kúpeľne. Ďalej bola osaden ...
158 000 €
Banská Bystrica
974 01
974 01
300 x
Označiť zlý inzerát Chybnú kategóriu Ohodnotiť užívateľa Zmazať/Upraviť/Topovať

AstonReal ponúka na predaj slnečný 3-izbový byt s balkónom. Byt je kompletne zrekonštruovaný a čiastočne zariadený na ul. Bernolákovej, časť Radvaň v Banskej Bystrici. Byt rozlohou 71m2, sa nachádza na 8 poschodí a je ideálny pre tých, ktorí hľadajú pokojné bývanie s výbornou dostupnosťou a výhľadom ...
179 900 €
Banská Bystrica
974 01
974 01
246 x
Označiť zlý inzerát Chybnú kategóriu Ohodnotiť užívateľa Zmazať/Upraviť/Topovať

Astonreal ponúka na predaj 2 izbový byt o rozlohe 63 m2.
Byt sa nachádza v mestskej časti Sásová ul. Karpatská.
Nehnuteľnosť prešla rekonštrukciou jadra, kúpeľne,wc a kuchyne samozrejme že aj výmena elektrických rozvodov.
Byt je dostupný ihneď kúpou.
Vybavenie bytu po dohode.
Byt sa ...
144 500 €
Banská Bystrica
974 01
974 01
282 x
Označiť zlý inzerát Chybnú kategóriu Ohodnotiť užívateľa Zmazať/Upraviť/Topovať

AstonReal ponúka na predaj príjemný, slnečný, 3izbový byt, typ bauring, vo vyhľadávanej lokalite Banskej Bystrice - Stará Sásová, Ďumbierska ul. Byt sa nachádza v zateplenom bytovom dome s výťahom, na 5poschodí.
Výhody bytu:
- výborná poloha - v blízkosti je kompletná občianska vybavenosť( školy, ...
175 000 €
Banská Bystrica
974 01
974 01
248 x
Označiť zlý inzerát Chybnú kategóriu Ohodnotiť užívateľa Zmazať/Upraviť/Topovať