Priemyselný objekt na predaj - murovaná hala a administratív
- [29.9. 2025]Zmazať/ Upraviť/ Topovať











REALITY HOUSE Vám ponúka
so súhlasom majiteľov:
- Murovaný priemyselný objekt na predaj
- objekt bol skolaudovaný v roku 2008 , je aktuálne po kompletnej. rekonštrukcii s nadstavbou
novej administr. časti a prístavby novej haly.
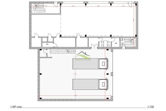
- objekt sa skladá z dvoch nezávislých častí. Každá z častí má halovú časť,
zázemie pre zamestnancov, kanceláriu technikov a administratívnu časť.
- plocha zastavaná je 530 m2, celková rozloha pozemkov je 2560 m2
- rozmery hál: 8x25 m a druhá časť 12x17 m so svetlou výškou 6 m.
- Vykurovanie hál je plynové teplovzdušné resp. infražiaričom, každá časť má vlastné kúrenie aj kotol
- kancelárie majú vlastné sociálne zariadenie, zasadaciu miestnosť,
kuchynku. Vykurovanie v administratíve je podlahové s možnosťou dokúrenia klimatizáciou.
- Vzduchotechnika v týchto priestoroch je riešená s rekuperáciou.
- Vo výrobnej hale sú rozvody internetu, zabezpečovacieho zariadenia a kamerové rozvody.
- V roku 2011 boli zrealizované nové spevnené plochy v okolí
- spevnené plochy pozostávajú z odvodnených asfaltových ciest, odstavných plôch a parkovísk
zo zámkovej dlažby a trávnika s automatickým zavlažovaním.
Tech. popis stavby:
Konštrukcie budovy sú zo siporexových panelov na betónovom skelete. V roku 2008 boli steny zateplené a boli vymenené okenné otvory.
Nová prístavba a nadstavba budovy bola zrealizovaná z tvárnic YTONG. Okenné otvory, presklené steny a vráta sú hliníkové, doplnené fasádnym systémom ALUCOBOND.
Stropy a strecha budovy je zrealizovaná zo železobetónových prefabrikátov. Podlahy sú betónové, v novej časti s pancierovou podlahou PAMBEX F2. V kancelárskej časti, sociálnych zariadeniach a šatniach sú podlahy z dlažby.
Budova má nezávislé siete elektrických a plynových rozvodov, rozvodov vody a kanalizácie. Vo vlastníctve je plynová prípojka DN 50 dĺžky 135 m skolaudovaná v roku 2004.
V roku 2011 bola skolaudovaná nová kiosková trafostanica 630 kVA a nové NN rozvody do budovy. Združená trafostanica sa nachádza na pozemku, ktorý patrí k výrobnej hale.
Cena: 459.000€
Kontakt:
Bc. Denisa Hanusičová
REALITY HOUSE
MICHALOVCE
Štefánikova 10
tel: 0915 377 087
Dodatok k cene: , možnosť HÚ
Obytná plocha: 2650m²
Celková rozloha: 2650m²
Úžitková plocha: 2650m²
Vlastníctvo: osobné
Stav: po rekonštrukcii
Plyn: áno
Kanalizácia: áno
Vykurovanie: vlastné
Pivnica: nie
Parkovanie: vlastné vyhradené
Inžinierske siete: áno
Postavené z: tehla
Zateplený objekt: áno
Energetický certifikát: nie
so súhlasom majiteľov:
- Murovaný priemyselný objekt na predaj
- objekt bol skolaudovaný v roku 2008 , je aktuálne po kompletnej. rekonštrukcii s nadstavbou
novej administr. časti a prístavby novej haly.
- objekt sa skladá z dvoch nezávislých častí. Každá z častí má halovú časť,
zázemie pre zamestnancov, kanceláriu technikov a administratívnu časť.
- plocha zastavaná je 530 m2, celková rozloha pozemkov je 2560 m2
- rozmery hál: 8x25 m a druhá časť 12x17 m so svetlou výškou 6 m.
- Vykurovanie hál je plynové teplovzdušné resp. infražiaričom, každá časť má vlastné kúrenie aj kotol
- kancelárie majú vlastné sociálne zariadenie, zasadaciu miestnosť,
kuchynku. Vykurovanie v administratíve je podlahové s možnosťou dokúrenia klimatizáciou.
- Vzduchotechnika v týchto priestoroch je riešená s rekuperáciou.
- Vo výrobnej hale sú rozvody internetu, zabezpečovacieho zariadenia a kamerové rozvody.
- V roku 2011 boli zrealizované nové spevnené plochy v okolí
- spevnené plochy pozostávajú z odvodnených asfaltových ciest, odstavných plôch a parkovísk
zo zámkovej dlažby a trávnika s automatickým zavlažovaním.
Tech. popis stavby:
Konštrukcie budovy sú zo siporexových panelov na betónovom skelete. V roku 2008 boli steny zateplené a boli vymenené okenné otvory.
Nová prístavba a nadstavba budovy bola zrealizovaná z tvárnic YTONG. Okenné otvory, presklené steny a vráta sú hliníkové, doplnené fasádnym systémom ALUCOBOND.
Stropy a strecha budovy je zrealizovaná zo železobetónových prefabrikátov. Podlahy sú betónové, v novej časti s pancierovou podlahou PAMBEX F2. V kancelárskej časti, sociálnych zariadeniach a šatniach sú podlahy z dlažby.
Budova má nezávislé siete elektrických a plynových rozvodov, rozvodov vody a kanalizácie. Vo vlastníctve je plynová prípojka DN 50 dĺžky 135 m skolaudovaná v roku 2004.
V roku 2011 bola skolaudovaná nová kiosková trafostanica 630 kVA a nové NN rozvody do budovy. Združená trafostanica sa nachádza na pozemku, ktorý patrí k výrobnej hale.
Cena: 459.000€
Kontakt:
Bc. Denisa Hanusičová
REALITY HOUSE
MICHALOVCE
Štefánikova 10
tel: 0915 377 087
Dodatok k cene: , možnosť HÚ
Obytná plocha: 2650m²
Celková rozloha: 2650m²
Úžitková plocha: 2650m²
Vlastníctvo: osobné
Stav: po rekonštrukcii
Plyn: áno
Kanalizácia: áno
Vykurovanie: vlastné
Pivnica: nie
Parkovanie: vlastné vyhradené
Inžinierske siete: áno
Postavené z: tehla
Zateplený objekt: áno
Energetický certifikát: nie
|
|
Kontaktovať inzerenta e-mailom
Kontaktovať e-mailom môže iba overený užívateľ.
Overenie je zadarmo.
Vaše telefónne číslo *
Kontaktovať e-mailom môže iba overený užívateľ.
Overenie je zadarmo.
Vaše telefónne číslo *