Predáme 4-izbový rodinný dom v štádiu holodom, Vráble - Hor
- [29.9. 2025]Zmazať/ Upraviť/ Topovať











VÝBORNÁ PONUKA!
Chcete bývať v modernej novostavbe, ale popri práci nemáte čas na riešenie všetkých potrebných podkladov k stavebnému povoleniu, k povoleniam a realizácii inžinierskych sietí alebo na samotnú realizáciu celej výstavby Vášho budúceho domova? Hľadáte murovanú novostavbu rodinného domu v novovznikajúcej lokalite v časti mesta Vráble - Horný Ohaj, nachádzajúcej sa v blízkosti krajského a okresného mesta Nitra a s rýchlym napojením na rýchlostnú cestu R1? Ak ÁNO, dávame Vám do pozornosti nasledujúcu výbornú ponuku.
Ide o predaj prízemného a nepodpivničeného 4-izbového rodinného domu so zastavanou plochou 177 m2 vrátane terasy. Úžitková plocha predstavuje 115 m2. Pozemok prislúchajúci k nehnuteľnosti je o výmere 468 m2, s možnosťou prikúpenia väčšej výmery.
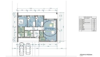
Ponúkaná nehnuteľnosť je podľa projektovej dokumentácie tvorená vstupnou halou, 2 samostatnými detskými izbami, rodičovskou spálňou s vlastnou kúpeľňou a šatníkom, ďalšou kúpeľnou, otvoreným priestorom obývacej izby jedálne a kuchyne, komorou a technickou miestnosťou opticky rozdelenou s hosťovskou toaletou. Neodmysliteľnou súčasťou je prestrešená terasa, na ktorú sa dostanete s obývacej izby, ale rovnako aj zo spálne a oboch detských izieb.
Pri výstavbe sú používané nasledovné materiály: stavba je založená na základovej doske s izoláciou, obvodová konštrukcia hr. 300 mm je z materiálu tehla, vnútorné priečky sú z materiálu porfix. Zateplenie fasádnym polystyrénom hr. 200 mm. Strešná konštrukcia je zo stropných nosníkov, vrátane tepelnej izolácie a hydroizolácie. Strešná krytina – pur panely, zvodový systém. Vchodové dvere a okná plastové s izolačným trojsklom.
Rodinný dom sa predáva v štádiu výstavby ‘HOLODOM‘ s pozemkom v cene 187.500 €. Samozrejmosťou je možnosť finalizácie rodinného domu do štádia ‘ŠTANDARD‘ alebo ‘NA KĽÚČ‘.
Z hľadiska IS bude nehnuteľnosť napojená na elektrickú energiu, vodu a kanalizáciu.
Energetický certifikát zatiaľ nie je vypracovaný.
Ak Vás táto ponuka zaujala a chcete si dohodnúť termín stretnutia alebo potrebujete zodpovedať doplňujúce otázky, neváhajte ma kontaktovať na tel. č. 0905 523 619 alebo prostredníctvom e-mailu info@micikovareality.sk.
Zastavaná plocha: 177m²
Obytná plocha: 115m²
Celková rozloha: 177m²
Rozloha pozemku: 468m²
Úžitková plocha: 115m²
Vlastníctvo: firemné
Stav: holopriestor
El. napätie: 230/400V
Plyn: nie
Kanalizácia: áno
Terasa: áno
Inžinierske siete: áno
Postavené z: tehla
Zateplený objekt: áno
Energetický certifikát: nie
Predzáhradka: neuvedené
Terén: rovina
Prístupová cesta: neupravená cesta
Chcete bývať v modernej novostavbe, ale popri práci nemáte čas na riešenie všetkých potrebných podkladov k stavebnému povoleniu, k povoleniam a realizácii inžinierskych sietí alebo na samotnú realizáciu celej výstavby Vášho budúceho domova? Hľadáte murovanú novostavbu rodinného domu v novovznikajúcej lokalite v časti mesta Vráble - Horný Ohaj, nachádzajúcej sa v blízkosti krajského a okresného mesta Nitra a s rýchlym napojením na rýchlostnú cestu R1? Ak ÁNO, dávame Vám do pozornosti nasledujúcu výbornú ponuku.
Ide o predaj prízemného a nepodpivničeného 4-izbového rodinného domu so zastavanou plochou 177 m2 vrátane terasy. Úžitková plocha predstavuje 115 m2. Pozemok prislúchajúci k nehnuteľnosti je o výmere 468 m2, s možnosťou prikúpenia väčšej výmery.
Ponúkaná nehnuteľnosť je podľa projektovej dokumentácie tvorená vstupnou halou, 2 samostatnými detskými izbami, rodičovskou spálňou s vlastnou kúpeľňou a šatníkom, ďalšou kúpeľnou, otvoreným priestorom obývacej izby jedálne a kuchyne, komorou a technickou miestnosťou opticky rozdelenou s hosťovskou toaletou. Neodmysliteľnou súčasťou je prestrešená terasa, na ktorú sa dostanete s obývacej izby, ale rovnako aj zo spálne a oboch detských izieb.
Pri výstavbe sú používané nasledovné materiály: stavba je založená na základovej doske s izoláciou, obvodová konštrukcia hr. 300 mm je z materiálu tehla, vnútorné priečky sú z materiálu porfix. Zateplenie fasádnym polystyrénom hr. 200 mm. Strešná konštrukcia je zo stropných nosníkov, vrátane tepelnej izolácie a hydroizolácie. Strešná krytina – pur panely, zvodový systém. Vchodové dvere a okná plastové s izolačným trojsklom.
Rodinný dom sa predáva v štádiu výstavby ‘HOLODOM‘ s pozemkom v cene 187.500 €. Samozrejmosťou je možnosť finalizácie rodinného domu do štádia ‘ŠTANDARD‘ alebo ‘NA KĽÚČ‘.
Z hľadiska IS bude nehnuteľnosť napojená na elektrickú energiu, vodu a kanalizáciu.
Energetický certifikát zatiaľ nie je vypracovaný.
Ak Vás táto ponuka zaujala a chcete si dohodnúť termín stretnutia alebo potrebujete zodpovedať doplňujúce otázky, neváhajte ma kontaktovať na tel. č. 0905 523 619 alebo prostredníctvom e-mailu info@micikovareality.sk.
Zastavaná plocha: 177m²
Obytná plocha: 115m²
Celková rozloha: 177m²
Rozloha pozemku: 468m²
Úžitková plocha: 115m²
Vlastníctvo: firemné
Stav: holopriestor
El. napätie: 230/400V
Plyn: nie
Kanalizácia: áno
Terasa: áno
Inžinierske siete: áno
Postavené z: tehla
Zateplený objekt: áno
Energetický certifikát: nie
Predzáhradka: neuvedené
Terén: rovina
Prístupová cesta: neupravená cesta
|
|
Kontaktovať inzerenta e-mailom
Kontaktovať e-mailom môže iba overený užívateľ.
Overenie je zadarmo.
Vaše telefónne číslo *
Kontaktovať e-mailom môže iba overený užívateľ.
Overenie je zadarmo.
Vaše telefónne číslo *