Predaj rodinný dom v meste Sládkvičovo EXKLUZÍVNE
- [28.9. 2025]Zmazať/ Upraviť/ Topovať











Exkluzívne iba u nás! Realitná kancelária RE/MAX Vám ponúka na predaj 5 - izbový viacúrovňový rodinný dom nachádzajúci sa na pozemku o rozlohe 673 m2, s možnosťou využitia aj ako viacgeneračný dom.
Dom sa nachádza v tichej lokalite 4 domov v slepej uličke obklopený rodinným lesoparkom.
Vzdialenosť do okresného mesta Galanta je 7 km, od krajského mesta Trnava 27 km, 35 minút od Bratislavy aj Nitry
Dispozícia a vybavenie domu:
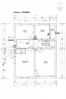
Prvé podlažie – zvýšené podlažie 100 m2: predsieň, kuchyňa, spálňa, obývačka kúpeľňa so sprchovacím kútom, toaleta, priestranná garáž.
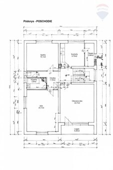
Druhé podlažie - 3x izba, kúpeľňa, samostatná toaleta, kuchyňa, špajza, tiež sa tu nachádza aj balkón 5 m2
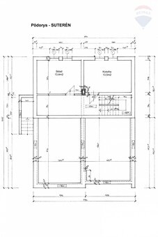
Suterén – 43 m2, v spodnej časti sa nachádza technická miestnosť (kotolňa), sklad, chodba a schodisko.
Inžinierske siete a technická riešenia:- dom je pripojený na obecnú vodu a kanalizáciu, na pozemku je aj žumpa a kopaná studňa, elektrina 230 V a 400V, kúrenie je ústredné kúrenie radiátormi, dome sa nachádza aj klimatizácia.
Na pozemku sa nachádza aj príručný sklad o rozmere 2,5 x 2,5 m.
Certifikát energetickej náročnosti budovy nie je k dispozícii.
Dom má železobetónové základy, stropy a schody, múry sú z pálenej tehly s vnútornou vápenato-cementovou omietkou, vonkajším brizolitom. Priečky sú z tehál 25 mm a 10 mm. Strecha izolovaná spádová s odkvapovými rínami. Vstupné dvere a garážové dvere sú plastové, interiérové dvere sú drevené na oceľových zárubniach. Okná sú plastové.
Občianska vybavenosť: základné a materské školy, pošta, potraviny, pohostinstvá, penzión, hotel, reštaurácie, športoviská, fitness centrum, záhradkárstvo, stavebniny, benzínka, auto umyváreň, a mnoho iného.
Uvedená cena je vrátane provízie realitnej kancelárie RE/MAX, kompletného právneho servisu, autorizovaných zmlúv a poplatkov spojených s prevodom vlastníckych práv.
Dom sa nachádza v tichej lokalite 4 domov v slepej uličke obklopený rodinným lesoparkom.
Vzdialenosť do okresného mesta Galanta je 7 km, od krajského mesta Trnava 27 km, 35 minút od Bratislavy aj Nitry
Dispozícia a vybavenie domu:
Prvé podlažie – zvýšené podlažie 100 m2: predsieň, kuchyňa, spálňa, obývačka kúpeľňa so sprchovacím kútom, toaleta, priestranná garáž.
Druhé podlažie - 3x izba, kúpeľňa, samostatná toaleta, kuchyňa, špajza, tiež sa tu nachádza aj balkón 5 m2
Suterén – 43 m2, v spodnej časti sa nachádza technická miestnosť (kotolňa), sklad, chodba a schodisko.
Inžinierske siete a technická riešenia:- dom je pripojený na obecnú vodu a kanalizáciu, na pozemku je aj žumpa a kopaná studňa, elektrina 230 V a 400V, kúrenie je ústredné kúrenie radiátormi, dome sa nachádza aj klimatizácia.
Na pozemku sa nachádza aj príručný sklad o rozmere 2,5 x 2,5 m.
Certifikát energetickej náročnosti budovy nie je k dispozícii.
Dom má železobetónové základy, stropy a schody, múry sú z pálenej tehly s vnútornou vápenato-cementovou omietkou, vonkajším brizolitom. Priečky sú z tehál 25 mm a 10 mm. Strecha izolovaná spádová s odkvapovými rínami. Vstupné dvere a garážové dvere sú plastové, interiérové dvere sú drevené na oceľových zárubniach. Okná sú plastové.
Občianska vybavenosť: základné a materské školy, pošta, potraviny, pohostinstvá, penzión, hotel, reštaurácie, športoviská, fitness centrum, záhradkárstvo, stavebniny, benzínka, auto umyváreň, a mnoho iného.
Uvedená cena je vrátane provízie realitnej kancelárie RE/MAX, kompletného právneho servisu, autorizovaných zmlúv a poplatkov spojených s prevodom vlastníckych práv.
|
|
Kontaktovať inzerenta e-mailom
Kontaktovať e-mailom môže iba overený užívateľ.
Overenie je zadarmo.
Vaše telefónne číslo *
Kontaktovať e-mailom môže iba overený užívateľ.
Overenie je zadarmo.
Vaše telefónne číslo *