Veľký objekt s administratívnou aj skladovou časťou - 895m2
- [28.9. 2025]Zmazať/ Upraviť/ Topovať











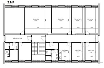
Ponúkame na predaj kancelársku budovu s čiastočnou rekonštrukciou, ktorá predstavuje výbornú investičnú príležitosť. Objekt disponuje dvomi nadzemnými podlažiami a pivničným priestorom, pričom celková plocha budovy je 895,72 m².
Dispozícia budovy:
• 2 nadzemné podlažia vhodné na administratívne využitie, každé podlažie ponúka flexibilné dispozičné riešenia pre rôzne typy podnikania.
• 1 podzemné podlažie (pivnica), ktoré je možné využívať ako skladové priestory, archív, alebo podľa potreby prispôsobiť inému účelu.
Technický stav a vybavenie:
Budova prešla čiastočnou rekonštrukciou, vrátane:
• výmeny všetkých okien za nové plastové,
• nových sociálnych zariadení na každom podlaží,
• nových radiátorov a kúrenia,
• nových vodovodných rozvodov,
• kompletnej obnovy strechy, čo zabezpečuje bezstarostné užívanie na dlhé roky.
Ďalšie výhody:
• Takmer plná obsadenosť nájomcami – možnosť okamžitého plynulého výnosu z prenájmu,
• Flexibilita využitia priestorov podľa potrieb budúceho vlastníka,
• Dobrá dopravná dostupnosť a strategická poloha,
• Výška stropov nadzemných podlaží je ~3m, čo umožňuje flexibilné využitie,
• Budova je vhodná na administratívu, služby, sídlo firmy, alebo kombináciu prenájmov a vlastného využívania.
Táto budova je ideálnou voľbou pre investorov hľadajúcich stabilný príjem, ale aj pre spoločnosti, ktoré potrebujú priestory s možnosťou ďalšieho rozvoja. Uvedená cena je bez DPH (sme plátci DPH).
Pre viac informácií alebo dohodnutie si obhliadky ma neváhajte kontaktovať.
Dispozícia budovy:
• 2 nadzemné podlažia vhodné na administratívne využitie, každé podlažie ponúka flexibilné dispozičné riešenia pre rôzne typy podnikania.
• 1 podzemné podlažie (pivnica), ktoré je možné využívať ako skladové priestory, archív, alebo podľa potreby prispôsobiť inému účelu.
Technický stav a vybavenie:
Budova prešla čiastočnou rekonštrukciou, vrátane:
• výmeny všetkých okien za nové plastové,
• nových sociálnych zariadení na každom podlaží,
• nových radiátorov a kúrenia,
• nových vodovodných rozvodov,
• kompletnej obnovy strechy, čo zabezpečuje bezstarostné užívanie na dlhé roky.
Ďalšie výhody:
• Takmer plná obsadenosť nájomcami – možnosť okamžitého plynulého výnosu z prenájmu,
• Flexibilita využitia priestorov podľa potrieb budúceho vlastníka,
• Dobrá dopravná dostupnosť a strategická poloha,
• Výška stropov nadzemných podlaží je ~3m, čo umožňuje flexibilné využitie,
• Budova je vhodná na administratívu, služby, sídlo firmy, alebo kombináciu prenájmov a vlastného využívania.
Táto budova je ideálnou voľbou pre investorov hľadajúcich stabilný príjem, ale aj pre spoločnosti, ktoré potrebujú priestory s možnosťou ďalšieho rozvoja. Uvedená cena je bez DPH (sme plátci DPH).
Pre viac informácií alebo dohodnutie si obhliadky ma neváhajte kontaktovať.
|
|
Kontaktovať inzerenta e-mailom
Kontaktovať e-mailom môže iba overený užívateľ.
Overenie je zadarmo.
Vaše telefónne číslo *
Kontaktovať e-mailom môže iba overený užívateľ.
Overenie je zadarmo.
Vaše telefónne číslo *
Podobné inzeráty

Exkluzívne ponúkame na predaj obchodný priestor v obchodnom centre GALAXIA na Hlavnej ulici v Galante. Priestor sa nachádza v centre mesta je dobre viditeľný z Hlavnej ulice v polyfunkčnom objekte GALAXIA z roku 2008. Priestor je určený na rôzne využitie ako obchodná prevádzka (predajňa, priestory p ...
239 990 €
Galanta
924 01
924 01
532 x
Označiť zlý inzerát Chybnú kategóriu Ohodnotiť užívateľa Zmazať/Upraviť/Topovať

REZERVOVANÉ ! EXKLUZÍVNE IBA U NÁS! Realitná kancelária RE/MAX vám ponúka na predaj atraktívnu komerčnú budovu s obchodnými priestormi a administratívnym zázemím, situovanú v bezprostrednej blízkosti centra mesta Galanta.
Na tejto nehnuteľnosti je možný odpočet DPH, prípadne prenesenie daňovej pov ...
369 000 €
Galanta
924 01
924 01
297 x
Označiť zlý inzerát Chybnú kategóriu Ohodnotiť užívateľa Zmazať/Upraviť/Topovať

Typ: Obchodné priestory
Ulica: Bratislavská
Obec: Galanta
Ponukame Vám na predaj polyfunkčnú budovu v meste Galanta. Budova A má rozlohu cca 800 m2, Budova B 150 m2. Objekt je vykurovaný plynom, na pozemku sa nachádza meststká voda, elektina 230/400V, kanalizácia. Budova je vhodná na podnikateľ ...
300 000 €
Galanta
924 01
924 01
707 x
Označiť zlý inzerát Chybnú kategóriu Ohodnotiť užívateľa Zmazať/Upraviť/Topovať

Realitná kancelária TOP REALITY KIČKOVÁ ǀ BALUCHOVÁ 17 rokov na trhu ponúka Exkluzívne na predaj
Stavebný pozemok 637 m2 na ktorom sa nachádza Obchodný priestor o výmere 200 m2 v meste Galanta (sídlisko SNP), ostatok je zatrávnený a parkovisko.
K dispozícií je vyjadrenie UPI z MÚ ohľadne možnos ...
215 000 €
Galanta
924 01
924 01
747 x
Označiť zlý inzerát Chybnú kategóriu Ohodnotiť užívateľa Zmazať/Upraviť/Topovať

Rozhodli ste sa podnikať a hľadáte vhodnú príležitosť ? Tak táto ponuka je ako stvorená pre Vás.
Exkluzívne ponúkame Vám na predaj podnikateľské priestory v centre mesta Galanta. Podnikateľský priestor s úžitkovou plochou 100 m2 sa nachádza v suteréne administratívnej budovy.
Pozrite si naš ...
209 000 €
Galanta
924 01
924 01
314 x
Označiť zlý inzerát Chybnú kategóriu Ohodnotiť užívateľa Zmazať/Upraviť/Topovať