Komerčný priestor na PRENÁJOM - Švermova, BB
- [27.9. 2025]Zmazať/ Upraviť/ Topovať











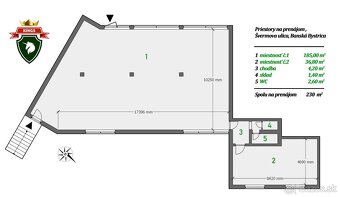
KINGS ponúka na prenájom krásne veľký nebytový priestor určený na komečné využitie pre RETAIL prevádzku, drogéria, supermartket alebo aj tanečné štúdio.
Tiež vhodné na cvičenie Joga alebo podobné aktivity. Hlavná časť je veľká 18x10m, pričom celá časť do ulice je celo presklená stena.
Veľká exponovanosť na rušnú ulicu a zastávku autobusu rovno pred budovou. Súčasťou priestoru je aj kancelária o výmere 36m2 a wc s menším skladom. K dispozícii sú aj 3 parkovacie miesta priamo pred zadným vstupom. V prípade potreby vačšieho počtu státí, sú k dispozícií do vzdialenosti 100m.
Tiež vhodné na cvičenie Joga alebo podobné aktivity. Hlavná časť je veľká 18x10m, pričom celá časť do ulice je celo presklená stena.
Veľká exponovanosť na rušnú ulicu a zastávku autobusu rovno pred budovou. Súčasťou priestoru je aj kancelária o výmere 36m2 a wc s menším skladom. K dispozícii sú aj 3 parkovacie miesta priamo pred zadným vstupom. V prípade potreby vačšieho počtu státí, sú k dispozícií do vzdialenosti 100m.
|
|
Kontaktovať inzerenta e-mailom
Kontaktovať e-mailom môže iba overený užívateľ.
Overenie je zadarmo.
Vaše telefónne číslo *
Kontaktovať e-mailom môže iba overený užívateľ.
Overenie je zadarmo.
Vaše telefónne číslo *