STAVIAME PRE VÁS 4 izbový RD - bungalov v N. Meste nad Váhom
- [27.9. 2025]Zmazať/ Upraviť/ Topovať











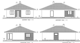
COMACCreality s.r.o. Pokiaľ máte pozemok táto ponuka je exkluzívne pre vás. Ponúkame vám výstavbu modernej murovanej novostavby 4 izbového domu typu bungalov. Dom sa predáva v stave holodom. Dom je samostatne stojaci, jednopodlažný s valbovou strechou. Pozostáva z predsiene,WC ,šatníka, technickej miestnosti, 4 samostatných izieb .V obývacej izbe sa nachádza príprava na krb SCHIEDEL. Obývacia izba je spojená s kuchyňou a jedálňou. Z obývacej izby sa vychádza na priestrannú terasu .
Rodinný dom je postavený z tehly, strecha Bramac - čierna - väzníkový krov, plastové okná - izolačné troj-sklo s vonkajšou povrchovou úpravou, zateplenie a fasádnou farbou, izolácie, žumpa, prípojka elektriky a vody, príprava na alarm a kamerový systém, elektrické podlahové vykurovanie značky Hevolta - inteligentný dom, možnosť ovládania cez mobilnú aplikáciu hlasom + rekuperácia, https://hevolta.sk/, elektrický bojler na ohrev vody, sadrové omietky - sieťky na všetkých stenách, vypínače a zásuvky, úprava terénu s trativodmi. Zastavaná plocha je 140 m2. Úžitková plocha 120 m2. Plocha terasy je 15 m2. Možnosť ukážky postaveného vzorového domu.
Energetická certifikácia podľa zákona č. 555/2005 Z.z. o energetickej hospodárnosti budov bude vykonaná v zmysle zákona , pri predaji nehnuteľnosti a je predpoklad, že daná nehnuteľnosť bude zaradená do energetickej triedy A0.
Kontaktujte nás a my Vám radi pomôžeme. Poradenstvo, obhliadky a inzercia je zdarma. Naša predajná cena je vždy konečná vrátane provízie. Pri kúpe Vám zabezpečíme kompletný servis od obhliadok až po spracovanie zmlúv a prevod nehnuteľností.V prípade,že Vám tento projekt nevyhovuje,je tu možnosť iného projektu,alebo aj podľa vlastného projektu. Pre podrobné
Rodinný dom je postavený z tehly, strecha Bramac - čierna - väzníkový krov, plastové okná - izolačné troj-sklo s vonkajšou povrchovou úpravou, zateplenie a fasádnou farbou, izolácie, žumpa, prípojka elektriky a vody, príprava na alarm a kamerový systém, elektrické podlahové vykurovanie značky Hevolta - inteligentný dom, možnosť ovládania cez mobilnú aplikáciu hlasom + rekuperácia, https://hevolta.sk/, elektrický bojler na ohrev vody, sadrové omietky - sieťky na všetkých stenách, vypínače a zásuvky, úprava terénu s trativodmi. Zastavaná plocha je 140 m2. Úžitková plocha 120 m2. Plocha terasy je 15 m2. Možnosť ukážky postaveného vzorového domu.
Energetická certifikácia podľa zákona č. 555/2005 Z.z. o energetickej hospodárnosti budov bude vykonaná v zmysle zákona , pri predaji nehnuteľnosti a je predpoklad, že daná nehnuteľnosť bude zaradená do energetickej triedy A0.
Kontaktujte nás a my Vám radi pomôžeme. Poradenstvo, obhliadky a inzercia je zdarma. Naša predajná cena je vždy konečná vrátane provízie. Pri kúpe Vám zabezpečíme kompletný servis od obhliadok až po spracovanie zmlúv a prevod nehnuteľností.V prípade,že Vám tento projekt nevyhovuje,je tu možnosť iného projektu,alebo aj podľa vlastného projektu. Pre podrobné
| 
 | 
 | |||||||||||||||||||||||||||||||
Kontaktovať inzerenta e-mailom
Kontaktovať e-mailom môže iba overený užívateľ.
Overenie je zadarmo.
Vaše telefónne číslo *
Kontaktovať e-mailom môže iba overený užívateľ.
Overenie je zadarmo.
Vaše telefónne číslo *





