Novostavba 4i rodinného domu “Alpha” na pol-samote v Cíferi
- [27.9. 2025]Zmazať/ Upraviť/ Topovať











ASGARD home reality exkluzívne ponúka na predaj novostavbu 4-izbového rodinného domu "Alpha" na pol-samote v lokalite Háj v obci Cífer, 8min od Trnavy na menšom, ale stále dostatočne veľkom pozemku o veľkosti 466m². Lokalita poskytuje vynikajúce miesto pre rodinu, ktorá si dopraje pokoj a ničím nerušený čas pre seba obklopený prírodou, minimom susedov a dostupnosť centra obce do 5min. Okolie ocení človek po celodennom dni strávenom v práci v hluku veľkomesta. Obec poskytuje kompletné občianske vybavenie, autobusové zastávky, vlakovú stanicu, detské ihriská, kúpalisko aj bohatý obecný program počas celého roka.
Príjazdová cesta k pozemkom sa aktuálne dokončuje. V cene je zahrnuté: dom v štádiu štandard (podlahy, podlahové kúrenie v celom dome, zárubne s dverami, kúpeľne a toalety, príprava na kuchyňu a elektrické žalúzie), 3x parkovacie miesta pred domom a chodník okolo domu, terasa, voda v podobe studne (zatiaľ obec neschválila pripojenie obecného vodovodu do časti Háj), odpad v podobe žumpy, oplotenie okolo celého domu. Obec má údajne v záujme celú lokalitu časom napojiť aj na vodovod aj na kanalizáciu.
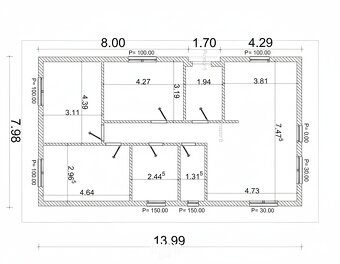
Podlahové vykurovanie je riešené systémovou izolačnou doskou IVAR typ TH 30 P a viacvrstvovými rúrkami ALPEX-TURATEC. Dispozícia je: vstup do rodinného domu je orientovaný na severovýchod. Rodinný dom, typu bungalov. Na prízemí sa nachádza: závetrie, zádverie, chodba, kuchyňa s jedálňou, obývacia izba s východom na terasu, samostatné WC, technická miestnosť, dve detské izby, kúpeľňa s WC, spálňa so šatníkom a vlastnou sprchou. Povalový priestor je prístupný zo zádveria povalovými sklápacími schodmi. Obytná plocha 59,20 m² (11,4-23,0+12,4-12,4). Podlahová plocha 94,60 m² (15,8-7,2+1.4+11.4+3.5+2.0+23,0-7,4-4,4+12,4-124-37). Úžitková plocha 113,60 m² (5.5+5,8-7,2-1,4-11,4+3,5-2.0+23,0-7,4+44+12,4-12,4+3,7-13,5). Zastavaná plocha 140,00 m².
Poskytujeme kompletný finančno-poradenský servis a pri kúpe/predaji alebo prenájmu nehnuteľnosti z našej ponuky.
Uverejnená fotodokumentácia, pôdorysy, popisný text nehnuteľnosti sú majetkom realitnej kancelárie a nie je možné ich kopírovať bez písomného súhlasu poverenej osoby.
__________________________________________
ASGARD home reality
Kozmáli Adam
reality.asgardhome.sk
kozmali@asgardhome.sk
+421 907 079 335
Príjazdová cesta k pozemkom sa aktuálne dokončuje. V cene je zahrnuté: dom v štádiu štandard (podlahy, podlahové kúrenie v celom dome, zárubne s dverami, kúpeľne a toalety, príprava na kuchyňu a elektrické žalúzie), 3x parkovacie miesta pred domom a chodník okolo domu, terasa, voda v podobe studne (zatiaľ obec neschválila pripojenie obecného vodovodu do časti Háj), odpad v podobe žumpy, oplotenie okolo celého domu. Obec má údajne v záujme celú lokalitu časom napojiť aj na vodovod aj na kanalizáciu.
Podlahové vykurovanie je riešené systémovou izolačnou doskou IVAR typ TH 30 P a viacvrstvovými rúrkami ALPEX-TURATEC. Dispozícia je: vstup do rodinného domu je orientovaný na severovýchod. Rodinný dom, typu bungalov. Na prízemí sa nachádza: závetrie, zádverie, chodba, kuchyňa s jedálňou, obývacia izba s východom na terasu, samostatné WC, technická miestnosť, dve detské izby, kúpeľňa s WC, spálňa so šatníkom a vlastnou sprchou. Povalový priestor je prístupný zo zádveria povalovými sklápacími schodmi. Obytná plocha 59,20 m² (11,4-23,0+12,4-12,4). Podlahová plocha 94,60 m² (15,8-7,2+1.4+11.4+3.5+2.0+23,0-7,4-4,4+12,4-124-37). Úžitková plocha 113,60 m² (5.5+5,8-7,2-1,4-11,4+3,5-2.0+23,0-7,4+44+12,4-12,4+3,7-13,5). Zastavaná plocha 140,00 m².
Poskytujeme kompletný finančno-poradenský servis a pri kúpe/predaji alebo prenájmu nehnuteľnosti z našej ponuky.
Uverejnená fotodokumentácia, pôdorysy, popisný text nehnuteľnosti sú majetkom realitnej kancelárie a nie je možné ich kopírovať bez písomného súhlasu poverenej osoby.
__________________________________________
ASGARD home reality
Kozmáli Adam
reality.asgardhome.sk
kozmali@asgardhome.sk
+421 907 079 335
|
|
Kontaktovať inzerenta e-mailom
Kontaktovať e-mailom môže iba overený užívateľ.
Overenie je zadarmo.
Vaše telefónne číslo *
Kontaktovať e-mailom môže iba overený užívateľ.
Overenie je zadarmo.
Vaše telefónne číslo *