Romantický RD po kompletnej rekonštrukcii v Dolných Salibách
- [26.9. 2025]Zmazať/ Upraviť/ Topovať






























Romantika, útulnosť, dobrá energia, vkusnosť, zmyselnosť, detaily dotiahnuté do poslednej bodky, príjemná vidiecka atmosféra a krása ktorá oko poteší a dušu pohladí.
Áno toto všetko a ešte viac Vám idem predstaviť v jednom jedinom rodinnom dome a BONUS k tomu.
Mgr. Helena Štrebová – má pre Vás v ponuke rodinný, ktorý sa nachádza na krásnom slnečnom rozľahlom pozemku o veľkosti 806 m2, kde obytná plocha je 130m2, zastavaná plocha 165 m2. Dom prešiel kompletnou rekonštrukciou pre 10 rokmi včetne strechy. Je napojený na všetky IS.
Kvalitu a prekrásne doladenie všetkých detailov si viete pozrieť na nasledujúcich linkoch.
Poďte sa po dome poprechádzať - vďaka Matterportu sa to „virtuálne dá “ :
https://my.matterport.com/show/?m=UW5yahg5Vui
Prehliadku s MENU nájdete na tomto linku :
https://my.vpromo.sk/tour/gfq8enbtpe
BENEFITY :
Kompletná rekonštrukcia – bez nutnosti ďalšej investície
Pripravený na okamžité bývanie
Očarí vás svojou atmosférou
Komplet zariadený
Dom je bezbariérový
Nová garáž
BONUS :
Altánok + ďalšie sedenie
Bazén
Veľký sklad na náradie nachádzajúci sa vzadu za domom
povala na sezónne veci
Parkovanie až pre 4 autá
Pozemok rozdelený na úžitkovú a okrasnú časť – plný kvetov a zelene
Závlahy na celom pozemku – automatický systém
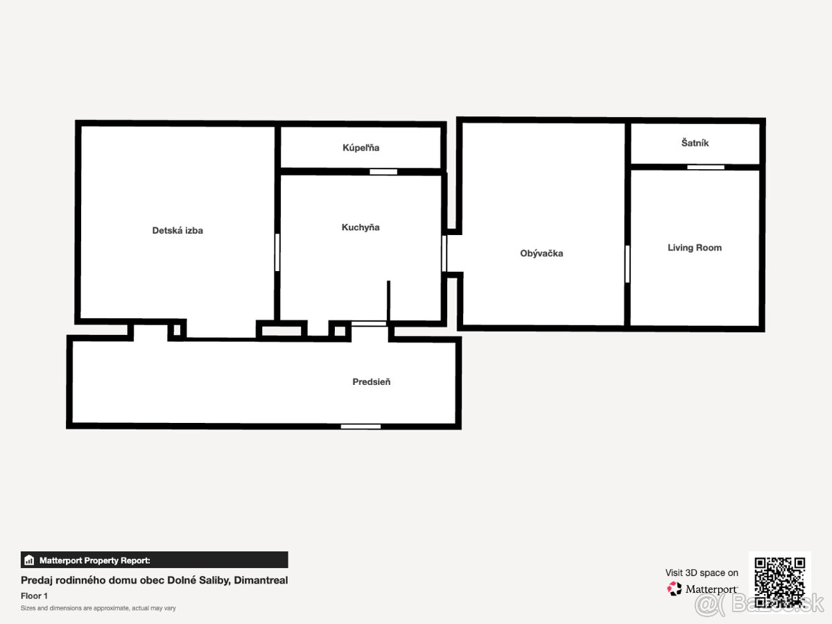
DISPOZIČNÉ RIEŠENIE :
Vstupná veľká chodba využívaná ako ďalšia izba
Kuchyňa – kuchynská linka stavaná na mieru
3 izby
Kúpeľňa s WC so sprchovacím kútom
Špajza
Obec Dolné Saliby má kompletnú občiansku vybavenosť: potraviny, MŠ a ZŠ, lekáreň, autobusové spojenie, pošta, reštaurácie, stavebniny a termálne kúpalisko Diakovce vzdialené len 4 km.
Neváhajte , volajte hneď.
Kontakt : 0903 063 460 - som tu pre VÁS.
Mgr. Helena Štrebová
Áno toto všetko a ešte viac Vám idem predstaviť v jednom jedinom rodinnom dome a BONUS k tomu.
Mgr. Helena Štrebová – má pre Vás v ponuke rodinný, ktorý sa nachádza na krásnom slnečnom rozľahlom pozemku o veľkosti 806 m2, kde obytná plocha je 130m2, zastavaná plocha 165 m2. Dom prešiel kompletnou rekonštrukciou pre 10 rokmi včetne strechy. Je napojený na všetky IS.
Kvalitu a prekrásne doladenie všetkých detailov si viete pozrieť na nasledujúcich linkoch.
Poďte sa po dome poprechádzať - vďaka Matterportu sa to „virtuálne dá “ :
https://my.matterport.com/show/?m=UW5yahg5Vui
Prehliadku s MENU nájdete na tomto linku :
https://my.vpromo.sk/tour/gfq8enbtpe
BENEFITY :
Kompletná rekonštrukcia – bez nutnosti ďalšej investície
Pripravený na okamžité bývanie
Očarí vás svojou atmosférou
Komplet zariadený
Dom je bezbariérový
Nová garáž
BONUS :
Altánok + ďalšie sedenie
Bazén
Veľký sklad na náradie nachádzajúci sa vzadu za domom
povala na sezónne veci
Parkovanie až pre 4 autá
Pozemok rozdelený na úžitkovú a okrasnú časť – plný kvetov a zelene
Závlahy na celom pozemku – automatický systém
DISPOZIČNÉ RIEŠENIE :
Vstupná veľká chodba využívaná ako ďalšia izba
Kuchyňa – kuchynská linka stavaná na mieru
3 izby
Kúpeľňa s WC so sprchovacím kútom
Špajza
Obec Dolné Saliby má kompletnú občiansku vybavenosť: potraviny, MŠ a ZŠ, lekáreň, autobusové spojenie, pošta, reštaurácie, stavebniny a termálne kúpalisko Diakovce vzdialené len 4 km.
Neváhajte , volajte hneď.
Kontakt : 0903 063 460 - som tu pre VÁS.
Mgr. Helena Štrebová
|
| |||||||||||||||||||||||||||||||
Kontaktovať inzerenta e-mailom
Kontaktovať e-mailom môže iba overený užívateľ.
Overenie je zadarmo.
Vaše telefónne číslo *
Kontaktovať e-mailom môže iba overený užívateľ.
Overenie je zadarmo.
Vaše telefónne číslo *
Podobné inzeráty
4-izbový rodinný dom v pôvodnom stave - Dolné Saliby - [10.11. 2025]Ponúkame na predaj samostatne stojací, 4-izbový rodinný dom v pôvodnom stave v Dolných Salibách.
Nachádza sa na priestrannom, oplotenom pozemku s celkovou rozlohou 1057 m2 (21 x 52 m). Dom bol dostavaný v r. 1965, je obývaný, udržiavaný v dobrom, pôvodnom stave. Na pozemku sa nachádzajú ešte hosp ...
Dohodou
Galanta
925 02
925 02
165 x
Označiť zlý inzerát Chybnú kategóriu Ohodnotiť užívateľa Zmazať/Upraviť/Topovať
BOSEN | 4 izbový rodinný dom, Dolné Saliby okres Galanta - [6.11. 2025]Typ: Rodinný dom
Obec: Dolné Saliby
BOSEN Group Vám exkluzívne ponúka na predaj 4-izbový rodinný dom v centre obci Dolné Saliby – jedinečný skvost s historickou pecou z roku 1940.
Rodinný dom o výmere 156m2 v pôvodnom, ale veľmi zachovalom stave s čiastočnou rekonštrukciou ihneď obýva ...
109 000 €
Galanta
925 02
925 02
424 x
Označiť zlý inzerát Chybnú kategóriu Ohodnotiť užívateľa Zmazať/Upraviť/Topovať
ALL INCLUSIVE | NA PREDAJ 4-IZBOVÝ RD NA 23-ÁR. POZEMKU, DOL - [27.10. 2025]Realitná kancelária ALL INCLUSIVE REAL Vám exkluzívne ponúka na predaj 4-izbový rodinný dom s veľkorysým pozemkom a výbornou dostupnosťou, ktorý sa nachádza v pokojnej časti obce Dolné Saliby.
Táto nehnuteľnosť je skvelou voľbou pre tých, ktorí túžia po pokojnom vidieckom bývaní v blízkosti miest ...
209 000 €
Galanta
925 02
925 02
954 x
Označiť zlý inzerát Chybnú kategóriu Ohodnotiť užívateľa Zmazať/Upraviť/Topovať
Rodinný dom v Dolných Salibách na predaj - [23.10. 2025]Realitná kancelária RE/MAX Vám exkluzívne ponúka na predaj rozostavaný rodinný dom v obci Dolné Saliby, v tichej a pokojnej časti obce, v zastavanej lokalite rodinných domov.
Dom sa nachádza v štádiu hrubej stavby, čo dáva novému majiteľovi možnosť dokončiť interiér podľa vlastných predstáv.
Z ...
149 900 €
Galanta
925 02
925 02
1040 x
Označiť zlý inzerát Chybnú kategóriu Ohodnotiť užívateľa Zmazať/Upraviť/Topovať
RODINNÝ DOM V OBCI DOLNÉ SALIBY NA PREDAJ - [22.10. 2025]Typ: Rodinný dom
Obec: Dolné Saliby
Táto nehnuteľnosť je ideálna pre rodiny hľadajúce komfortné bývanie v príjemnom prostredí.
Realitná kancelária Xpert Reality ponúka na predaj starší rodinný dom v pokojnej obci Dolné Saliby.
Dom je vo výbornej kondícii, stojí na pevných základoch. Je ...
129 500 €
Galanta
925 02
925 02
875 x
Označiť zlý inzerát Chybnú kategóriu Ohodnotiť užívateľa Zmazať/Upraviť/Topovať
Pustite sa do vysnívanej rekonštrukcie Vášho nového domova - [7.10. 2025]
Spoločnosť Allrisk Slovakia Vám so súhlasom majiteľa ponúka na predaj priestranný 3 izbový prízemný rodinný dom s prístavbou v obci Dolné Saliby len pár minút od Galanty.
Zastavaná plocha domu je veľkorysých 180 m2 a podlahová 140 m2. Veľkosť pozemku je 1130 m2. Všetky inžinierske siete sú príto ...
135 000 €
Galanta
925 02
925 02
893 x
Označiť zlý inzerát Chybnú kategóriu Ohodnotiť užívateľa Zmazať/Upraviť/Topovať
Moderná 4 izbová novostavba s tepelným čerpadlom, kľ… - TOP - [23.10. 2025]Moderná 4 izbová novostavba s tepelným čerpadlom, kľudná lokalita.
Popis: Pozor mladí hľadači nového bývania!
Vitajte v tej najlepšej ponuke na trhu - moderný 4 izbový bungalov v tichej časti Dolných Salíb! Táto novostavba je ako sen mladých ľudí - s tepelným čerpadlom a úžasnou kľudnou lokali ...
169 999 €
Galanta
925 02
925 02
2290 x
Označiť zlý inzerát Chybnú kategóriu Ohodnotiť užívateľa Zmazať/Upraviť/Topovať
ALL INCLUSIVE l NA PREDAJ 4 IZBOVÝ ROD. DOM - NOVOSTAVBA, DO - [17.9. 2025]Realitná kancelária ALL INCLUSIVE REAL Vám ponúka na predaj 4 izbovú novostavbu rodinného domu s garážou v tichej ulici obce Dolné Saliby, ideálnu pre modernú rodinu.
VLASTNOSTI NEHNUTEĽNOSTI
•POČET IZIEB
Rodinný dom ponúka 3 spálne a priestrannú obývačku spojenú s kuchyňou, čo poskytuje dos ...
275 000 €
Galanta
925 02
925 02
1035 x
Označiť zlý inzerát Chybnú kategóriu Ohodnotiť užívateľa Zmazať/Upraviť/Topovať









