Výborná lokalita Moderný 4 izbový bungalov, garáž, tepelné
- [25.9. 2025]Zmazať/ Upraviť/ Topovať



Typ: Rodinný dom
Obec: Vinosady
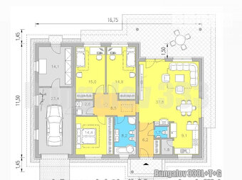
Predpredaj!!! SaleA reality váš partner v realitách ponúka na predaj novostavbu rodinného domu ktorý sa stavia na na pozemku o rozlohe 600m2 vo Vinosadoch časť Malé Tŕnie- rodinný dom sa nachádza iba 4 km od okresného mesta Pezinok, v krásnej lokalite v obci VINOSADY pod lesom a vinicami, na konci obce po ľavej strane v smere na Modru. Dôkladne premyslená dispozícia domu s prísnym oddelením dennej a nočnej časti bez vzájomného rušenia. Dom dispozične pozostáva zo vstupnej chodby, technickej miestnosti, obývačky spojenej s kuchyňou, 3 izieb, kúpeľne a WC . K domu prináleží garáž. Zastavaná plocha je 165m2, úžitková plocha 120,8m2.
Na výstavbu domu budú použité použité štandardné materiály – obvodové a nosné múry brúsená Pezinská tehla 30 300mm, strešná krytina BRAMAC– čierna, strešná izolácia minerálna vata 300 mm + izolácia 80mm • zateplenie fasády – polystyrén 150 mm. Fasádna farba – omietka. V dome budú plastové okná a vchodové dvere – 3 sklo z vonku laminované vo farbe antracit SALAMANDER, kompletné rozvody elektriny, vypínače a zásuvky biele, dátové rozvody podľa projektu, príprava na možnosť pripojenia ďalších dátových sietí. V dome bude kompletné podlahové kúrenie, zásobník na teplú vodu, kompletné rozvody vody, predpríprava na krb. Dom bude napojený na inžinierske siete –tepelné čerpadlo, voda, elektrina, kanalizácia....
Obec má štandardnú občiansku vybavenosť- Mestský úrad, pošta, obchody, škôlka, základná škola, lekár, lekáreň, reštaurácie, v obci sa nachádza futbalový štadión, Pálffyho kaštieľ. Nákupné centrá a kompletná občianska vybavenosť je v Pezinku-4km..... V blízkosti sú veľmi obľúbené miesta na rekreáciu a šport ako vínne pivničky, vodné plochy – rybník Kejda, grinavské jazero, rozhľadňa, Zochova chata, areál Rozálka..... Lokalita poskytuje veľké možnosti na rôznorodú športovú a rekreačnú aktivitu ale aj pracovné možnosti.
Dom bude dokončený do štádia holodom do 12/2025.
Ak vás moja ponuka zaujala volajte na 0918 602 817, mail lukacovicova@salea.sk
Status: aktívne
Stav: nedokončený
Úžitková plocha: 120.8 m2
Plocha pozemku: 596 m2
Zastavaná plocha: 165 m2
Počet podlaží: 1
Balkón: nie
Energetický certifikát: A
El. napätie: 230V
Kanalizácia: áno
Zateplený objekt: nie
Terasa: nie
Obec: Vinosady
Predpredaj!!! SaleA reality váš partner v realitách ponúka na predaj novostavbu rodinného domu ktorý sa stavia na na pozemku o rozlohe 600m2 vo Vinosadoch časť Malé Tŕnie- rodinný dom sa nachádza iba 4 km od okresného mesta Pezinok, v krásnej lokalite v obci VINOSADY pod lesom a vinicami, na konci obce po ľavej strane v smere na Modru. Dôkladne premyslená dispozícia domu s prísnym oddelením dennej a nočnej časti bez vzájomného rušenia. Dom dispozične pozostáva zo vstupnej chodby, technickej miestnosti, obývačky spojenej s kuchyňou, 3 izieb, kúpeľne a WC . K domu prináleží garáž. Zastavaná plocha je 165m2, úžitková plocha 120,8m2.
Na výstavbu domu budú použité použité štandardné materiály – obvodové a nosné múry brúsená Pezinská tehla 30 300mm, strešná krytina BRAMAC– čierna, strešná izolácia minerálna vata 300 mm + izolácia 80mm • zateplenie fasády – polystyrén 150 mm. Fasádna farba – omietka. V dome budú plastové okná a vchodové dvere – 3 sklo z vonku laminované vo farbe antracit SALAMANDER, kompletné rozvody elektriny, vypínače a zásuvky biele, dátové rozvody podľa projektu, príprava na možnosť pripojenia ďalších dátových sietí. V dome bude kompletné podlahové kúrenie, zásobník na teplú vodu, kompletné rozvody vody, predpríprava na krb. Dom bude napojený na inžinierske siete –tepelné čerpadlo, voda, elektrina, kanalizácia....
Obec má štandardnú občiansku vybavenosť- Mestský úrad, pošta, obchody, škôlka, základná škola, lekár, lekáreň, reštaurácie, v obci sa nachádza futbalový štadión, Pálffyho kaštieľ. Nákupné centrá a kompletná občianska vybavenosť je v Pezinku-4km..... V blízkosti sú veľmi obľúbené miesta na rekreáciu a šport ako vínne pivničky, vodné plochy – rybník Kejda, grinavské jazero, rozhľadňa, Zochova chata, areál Rozálka..... Lokalita poskytuje veľké možnosti na rôznorodú športovú a rekreačnú aktivitu ale aj pracovné možnosti.
Dom bude dokončený do štádia holodom do 12/2025.
Ak vás moja ponuka zaujala volajte na 0918 602 817, mail lukacovicova@salea.sk
Status: aktívne
Stav: nedokončený
Úžitková plocha: 120.8 m2
Plocha pozemku: 596 m2
Zastavaná plocha: 165 m2
Počet podlaží: 1
Balkón: nie
Energetický certifikát: A
El. napätie: 230V
Kanalizácia: áno
Zateplený objekt: nie
Terasa: nie
|
|
Kontaktovať inzerenta e-mailom
Kontaktovať e-mailom môže iba overený užívateľ.
Overenie je zadarmo.
Vaše telefónne číslo *
Kontaktovať e-mailom môže iba overený užívateľ.
Overenie je zadarmo.
Vaše telefónne číslo *