Dobré reality-na prenájom dobre viditeľný priestor na prízem
- [25.9. 2025]Zmazať/ Upraviť/ Topovať


















Výborná strategická poloha na podnikanie, frekventovaná cesta na prízemí, nachádza sa v dvojpodlažnej budove, zámková dlažba pred vstupom:
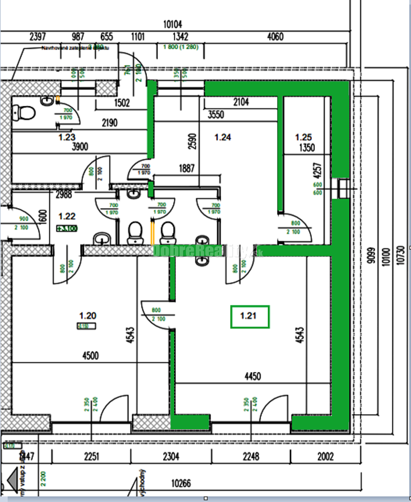
PRIESTOR č. 1.21: s výkladom do ulice, celková úžitková plocha: 42,30 m2
- vstup 21,5 m2, zadná miestnosť 15 m2 s vytvorenou sociálkou zo sadrokartónu: 1x wc + umývadlo, bočný sklad 5,77m2 s prípojka mi na kuchynku, práčku...
Možnosť pripojiť na bývanie: ateliérový byt s vchodom z nádvoria.
Celý priestor prešiel rekonštrukciou:
- plastové okná/výklad, dvere, plávajúce podlahy, drevené obložky + dvere,
- štýlové reliéfne steny/tehla
- sadrokartónový strop so zapustenými svetlami,
- vykurovanie panelovými radiátormi, budova má ústrednú plynovú kotolňu s predprípravou pre alternatívne vykurovanie.
- zabezpečovacie zariadenie, internet
Pred budovou je exponovaný priestor pre produktový marketing, resp. miesto pre vykládku a nakládku tovaru. PARKOVANIE je voľné, verejné, neplatené v neobmedzenom počte je 60m od objektu.
Depozit 2x 450€ mesačný nájom vrátane plynu, vody, kúrenie. Elektrina sa bude účtovať podľa skutočnej spotreby + k nájmu.
PRIESTOR č. 1.21: s výkladom do ulice, celková úžitková plocha: 42,30 m2
- vstup 21,5 m2, zadná miestnosť 15 m2 s vytvorenou sociálkou zo sadrokartónu: 1x wc + umývadlo, bočný sklad 5,77m2 s prípojka mi na kuchynku, práčku...
Možnosť pripojiť na bývanie: ateliérový byt s vchodom z nádvoria.
Celý priestor prešiel rekonštrukciou:
- plastové okná/výklad, dvere, plávajúce podlahy, drevené obložky + dvere,
- štýlové reliéfne steny/tehla
- sadrokartónový strop so zapustenými svetlami,
- vykurovanie panelovými radiátormi, budova má ústrednú plynovú kotolňu s predprípravou pre alternatívne vykurovanie.
- zabezpečovacie zariadenie, internet
Pred budovou je exponovaný priestor pre produktový marketing, resp. miesto pre vykládku a nakládku tovaru. PARKOVANIE je voľné, verejné, neplatené v neobmedzenom počte je 60m od objektu.
Depozit 2x 450€ mesačný nájom vrátane plynu, vody, kúrenie. Elektrina sa bude účtovať podľa skutočnej spotreby + k nájmu.
|
| |||||||||||||||||||||||||||||||
Kontaktovať inzerenta e-mailom
Kontaktovať e-mailom môže iba overený užívateľ.
Overenie je zadarmo.
Vaše telefónne číslo *
Kontaktovať e-mailom môže iba overený užívateľ.
Overenie je zadarmo.
Vaše telefónne číslo *