Španielsko, Finca Cortesin Golf , Golfside, Vila 10
- [24.9. 2025]Zmazať/ Upraviť/ Topovať











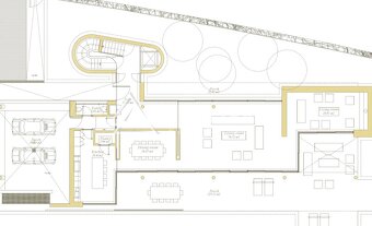
Táto výnimočná vila, ktorá vyžaruje bohatstvo a rafinovanosť, nanovo definuje samotný pojem luxusného bývania v golfovom rezorte. Nachádza sa na vyvýšenom pozemku a ponúka úchvatný panoramatický výhľad na golfové ihrisko a Stredozemné more, zatiaľ čo jej rozsiahle vonkajšie priestory zahŕňajú starostlivo udržiavané záhrady a nádherný bazén. Táto rezidencia, obklopená bujnými palmami a bohatou flórou, poskytuje nádherné vonkajšie útočisko na celoročné užívanie. Prízemie, ktoré je zaliate prirodzeným svetlom vďaka množstvu sklenených dverí od podlahy až po strop, plynulo nadväzuje na záhradu, čím podporuje harmonické prepojenie interiéru a exteriéru. Nehnuteľnosť je rozložená na 3 podlažiach, pričom v suteréne sa nachádza práčovňa, technická miestnosť a na mieru vyrobená vínna pivnica. Prístup do suterénu bol dômyselne integrovaný do nehnuteľnosti prostredníctvom skrytých cylindrických dverí. Interiérové priestory sú elegantne navrhnuté, nachádzajú sa na úrovni prízemia - vyznačujú sa neutrálnymi jemnými tónmi a jedinečnými materiálmi, ktoré domu vdychujú jedinečný zmysel pre individualitu. Kuchyňa vybavená špičkovými spotrebičmi Gaggenau sa pýši na mieru vyrobenými skrinkami a štýlovým kuchynským ostrovom, zatiaľ čo svetlá drevená podlaha v celom dome navodzuje pokojnú a pokojnú atmosféru. Pestovaná krajina, starostlivo upravená v rámci hraníc pozemku, vytvára podmanivú kulisu viditeľnú z prízemia. Horné poschodie je vyhradené spálňam, z ktorých každá má vlastnú terasu a je oddelená úžasnými bielymi priečkami. Architektonické majstrovstvo spoločnosti Vicens & Ramos je zrejmé z každého uhla pohľadu, pričom pôsobivý vstup do nehnuteľnosti zanechá trvalý dojem na všetkých, ktorí sem prídu. Toto majstrovské dielo s privilegovanou polohou v prvej línii golfového ihriska, obdivuhodným výhľadom a neochvejnou snahou o dokonalosť je skutočne neporovnateľnou rezidenciou v rámci exkluzívneho rezortu Finca Cortesin.
Dodatok k cene: + 10 % IVA, vrátane provízie, možnosť HÚ
Obytná plocha: 752m²
Celková rozloha: 1105m²
Rozloha pozemku: 2145m²
Úžitková plocha: 752m²
Vlastníctvo: firemné
Odvoz odpadu: áno - separovaný
Voda: verejný vodovod
El. napätie: 230/400V
Kúpeľňa: áno
Vykurovanie: áno
Terasa: áno
Garáž: áno - 2 autá
Parkovanie: áno
Inžinierske siete: áno
Zariadenie: čiastočne
Zateplený objekt: áno
Bazén: exteriérový
Klimatizácia: áno
Energetický certifikát: áno
Predzáhradka: neuvedené
Prístupová cesta: asfaltová cesta
Dodatok k cene: + 10 % IVA, vrátane provízie, možnosť HÚ
Obytná plocha: 752m²
Celková rozloha: 1105m²
Rozloha pozemku: 2145m²
Úžitková plocha: 752m²
Vlastníctvo: firemné
Odvoz odpadu: áno - separovaný
Voda: verejný vodovod
El. napätie: 230/400V
Kúpeľňa: áno
Vykurovanie: áno
Terasa: áno
Garáž: áno - 2 autá
Parkovanie: áno
Inžinierske siete: áno
Zariadenie: čiastočne
Zateplený objekt: áno
Bazén: exteriérový
Klimatizácia: áno
Energetický certifikát: áno
Predzáhradka: neuvedené
Prístupová cesta: asfaltová cesta
|
|
Kontaktovať inzerenta e-mailom
Kontaktovať e-mailom môže iba overený užívateľ.
Overenie je zadarmo.
Vaše telefónne číslo *
Kontaktovať e-mailom môže iba overený užívateľ.
Overenie je zadarmo.
Vaše telefónne číslo *
Podobné inzeráty

Ponúkame na predaj priestranný dvojpodlažný rodinný dom v centre mesta Mosonmagyaróvár na pozemku 850 m². Na poschodí sa nachádza 2-izbový byt s kuchyňou, kúpeľňou a terasou. Kompletná rekonštrukcia, úžitková plocha 262 m², 6 parkovacích miest, dve veľké terasy a bezbariérový dvor. Tiché a priateľsk ...
355 000 €
Zahraničie
123 45
123 45
14 x
Označiť zlý inzerát Chybnú kategóriu Ohodnotiť užívateľa Zmazať/Upraviť/Topovať

Typ: Rodinný dom
Ulica: Táncsics Mihály 10
Obec: Kovácsvágás
Ponúkame na predaj útulný rodinný dom s úžitkovou plochou 80 m², ktorý sa nachádza v malebnej obci Kovácsvágás. Táto nehnuteľnosť je výnimočná nielen svojou polohou, ale aj rozľahlým pozemkom o výmere 6 500 m², ktorý je tvorený krásny ...
79 890 €
Zahraničie
123 45
123 45
21 x
Označiť zlý inzerát Chybnú kategóriu Ohodnotiť užívateľa Zmazať/Upraviť/Topovať

Exkluzívna ponuka.
ZNÍŽENÁ CENA ! / 79 900 - 69 900 /
Obec Hejce je vzdialená iba 45 km z Košíc. Hraničný prechod Milhosť.
Ponúkame Vám na predaj 4 izbový rodinný dom po rekonštrukci, ktorý sa nachádza v tichej dedine. Je ohraničená krásnou prírodou a lesmi.
Podlahová plocha domu je 140 m2 ...
69 900 €
Zahraničie
123 45
123 45
47 x
Označiť zlý inzerát Chybnú kategóriu Ohodnotiť užívateľa Zmazať/Upraviť/Topovať

Španělsko, Orihuela Costa-Los Altos
CENA: 339.900eur
Rádi vám představíme k prodeji velmi pěkný a vkusně zařízený dvoupodlažní samostatně stojící dům 3kk o rozloze 105 m² s pozemkem 199 m², dvěma koupelnami a velkou střešní relaxační terasou.
Nemovitost se nachází v krásně udržovaném rezide ...
339 900 €
Zahraničie
123 45
123 45
21 x
Označiť zlý inzerát Chybnú kategóriu Ohodnotiť užívateľa Zmazať/Upraviť/Topovať

Exkluzívne ponúkame dom na predaj, ktorý ponúka všetko, čo si môžete priať pre luxusný život v krásnom rakúskom meste Hainburg an der Donau. Tento slnečný 5-izbový nízkoenergetický dom bol skolaudovaný v roku 2020. Pozemok má veľkosť 176 m², z toho zastavaná plocha domu je 760 m².
DISPOZIČNÉ RIE ...
750 000 €
Zahraničie
123 45
123 45
36 x
Označiť zlý inzerát Chybnú kategóriu Ohodnotiť užívateľa Zmazať/Upraviť/Topovať

Typ: Rodinný dom
Obec: Gönc
Realitná kancelária Leaders & Partners - L&P reality s.r.o. pobočka Prešov
Ponúka o súhlasom majiteľa na predaj, starý židovský rodinný dom. S obrovským potenciálom na prestavbu alebo novú výstavbu, nachádzajúci sa len kúsok od Košíc za hranicami v& ...
19 990 €
Zahraničie
123 45
123 45
65 x
Označiť zlý inzerát Chybnú kategóriu Ohodnotiť užívateľa Zmazať/Upraviť/Topovať

Ponúkame Vám na predaj rodinný dom v Szendrő - Maďarsko
V prípade záujmu viem poslať video.
ZÁKLADNÉ ÚDAJE:
Lokalita: Szendrő - Maďarsko
Predmet: rodinný dom
Počet izieb: 2
Stav: pôvodný stav
Zastavaná plocha domu: 75 m2
Úžitková plocha domu: 61 m2
Veľkosť pozemku: 1736 m2
Inžiniersk ...
19 000 €
Zahraničie
123 45
123 45
109 x
Označiť zlý inzerát Chybnú kategóriu Ohodnotiť užívateľa Zmazať/Upraviť/Topovať

Ponúkame na predaj rodinný dom v obci Hollóháza - Maďarsko
ZÁKLADNÉ ÚDAJE:
Lokalita: Holloháza - Maďarsko
Predmet: rodinný dom
Počet izieb: 5
Stav: kompletná rekonštrukcia
Zastavaná plocha domu: 110 m2
Úžitková plocha domu: 180 m2
Veľkosť pozemku: 1000 m2
Inžinierske siete ...
256 000 €
Zahraničie
123 45
123 45
111 x
Označiť zlý inzerát Chybnú kategóriu Ohodnotiť užívateľa Zmazať/Upraviť/Topovať

Home 4 Life s. r. o. Vám ponúka na predaj elegantý a luxusný dvojgeneračný dom v obľúbenej obytnej zóne mesta Mosonmagyaróvár.
Nehnuteľnosť s úžitkovou plochou 206 m2 sa nachádza na rohovom pozemku 696 m2.
Na prízemí sa nachádza predsieň, obývačka spojená s kuchyňou a jedálňou, zimná záhrad ...
458 000 €
Zahraničie
123 45
123 45
31 x
Označiť zlý inzerát Chybnú kategóriu Ohodnotiť užívateľa Zmazať/Upraviť/Topovať

Typ: Rodinný dom
Ulica: Hegyeshalom
Obec: Hegyeshalom
V pohraničnej obci Hegyeshalom Vám ponúkam tento murovaný rodinný dom postavený v 60. rokoch.
Domček v typicky vidieckom štýle s verandou má príjemnú pokojnú atmosféru. Nachádza sa na pozemku s rozlohou 498 m2.
Podlahová plocha d ...
120 000 €
Zahraničie
123 45
123 45
233 x
Označiť zlý inzerát Chybnú kategóriu Ohodnotiť užívateľa Zmazať/Upraviť/Topovať