VIR – moderné novostavby apartmánov 50m od pláže
- [24.9. 2025]Zmazať/ Upraviť/ Topovať
























Ponúkame na predaj celkom 3 apartmány v modernej novostavbe na ostrove Vir.
Nachádza sa na skvelom mieste, len 50 metrov od mestskej pláže.
Každá izba v apartmánoch je klimatizovaná (s možnosťou ovládania cez WI-FI). V kúpeľniach je nainštalované elektrické podlahové kúrenie. Vstavané elektrické rolety. Každý apartmán má dve parkovacie miesta. Podrobnosti o kvalite konštrukcie a použitých materiáloch:
– dlažba výbornej kvality rozmery 60X120 cm
– strešné terasy s prípojkami vody, odpadu a elektriny pre vírivku, letnú kuchyňu prípadne vonkajšej sprchy
– elektricky ovládané hliníkové rolety
– antracitové okná, siete proti komárom
– bezpečnostné dvere
– strešné terasy a skladovacie priestory pre byty na 1. poschodí
– prípojky vody a elektriny na záhradách a vonkajšie skladovacie priestory pre byty
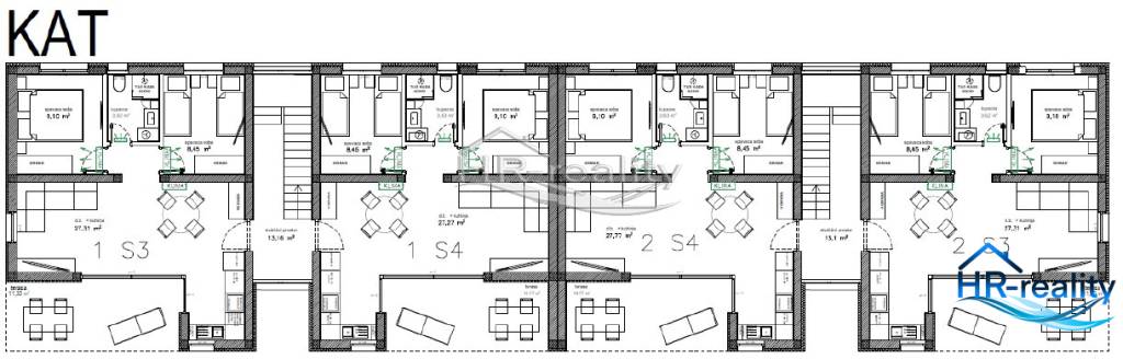
Dostupnosť apartmánov:
S1 – 3.izbový, 69m2, prízemie, cena 270.000 €
S2 – 3.izbový, 69m2, prízemie, cena 270.000 €
S3 – PREDANÝ!!!
S4 – 3.izbový, 79m2, 1. poschodie, cena 315.000 €
Pripravené na nasťahovanie od 01.06.2025. rok.
Strešná terasa ponúka pekný výhľad na more.
V cene sprostredkovateľskej provízie, 3% z ceny nehnuteľnosti, sú zahrnuté:
– kompletné náklady na obhliadky nehnuteľností,
– tlmočnícke služby certifikovaným tlmočníkom v prípade potreby,
– vyhotovenie overených dvojjazyčných zmlúv,
– pomoc s prepismi energií, internetu a pod.,
– spolupráca s overenými interiérovými ako aj záhradnými architektmi
– poradenská služba a pomoc pri zriaďovaní podmienok na podnikanie v Chorvátsku, v prípade záujmu o kúpu nehnuteľnosti na podnikateľské účely
Obytná plocha: 69m²
Úžitková plocha: 69m²
Vlastníctvo: osobné
Internet: lokálny poskytovateľ
Kúpeľňa: áno
Parkovanie: vlastné vyhradené
Zariadenie: nezariadený
Klimatizácia: áno
Energetický certifikát: áno
Nachádza sa na skvelom mieste, len 50 metrov od mestskej pláže.
Každá izba v apartmánoch je klimatizovaná (s možnosťou ovládania cez WI-FI). V kúpeľniach je nainštalované elektrické podlahové kúrenie. Vstavané elektrické rolety. Každý apartmán má dve parkovacie miesta. Podrobnosti o kvalite konštrukcie a použitých materiáloch:
– dlažba výbornej kvality rozmery 60X120 cm
– strešné terasy s prípojkami vody, odpadu a elektriny pre vírivku, letnú kuchyňu prípadne vonkajšej sprchy
– elektricky ovládané hliníkové rolety
– antracitové okná, siete proti komárom
– bezpečnostné dvere
– strešné terasy a skladovacie priestory pre byty na 1. poschodí
– prípojky vody a elektriny na záhradách a vonkajšie skladovacie priestory pre byty
Dostupnosť apartmánov:
S1 – 3.izbový, 69m2, prízemie, cena 270.000 €
S2 – 3.izbový, 69m2, prízemie, cena 270.000 €
S3 – PREDANÝ!!!
S4 – 3.izbový, 79m2, 1. poschodie, cena 315.000 €
Pripravené na nasťahovanie od 01.06.2025. rok.
Strešná terasa ponúka pekný výhľad na more.
V cene sprostredkovateľskej provízie, 3% z ceny nehnuteľnosti, sú zahrnuté:
– kompletné náklady na obhliadky nehnuteľností,
– tlmočnícke služby certifikovaným tlmočníkom v prípade potreby,
– vyhotovenie overených dvojjazyčných zmlúv,
– pomoc s prepismi energií, internetu a pod.,
– spolupráca s overenými interiérovými ako aj záhradnými architektmi
– poradenská služba a pomoc pri zriaďovaní podmienok na podnikanie v Chorvátsku, v prípade záujmu o kúpu nehnuteľnosti na podnikateľské účely
Obytná plocha: 69m²
Úžitková plocha: 69m²
Vlastníctvo: osobné
Internet: lokálny poskytovateľ
Kúpeľňa: áno
Parkovanie: vlastné vyhradené
Zariadenie: nezariadený
Klimatizácia: áno
Energetický certifikát: áno
|
| |||||||||||||||||||||||||||||||
Kontaktovať inzerenta e-mailom
Kontaktovať e-mailom môže iba overený užívateľ.
Overenie je zadarmo.
Vaše telefónne číslo *
Kontaktovať e-mailom môže iba overený užívateľ.
Overenie je zadarmo.
Vaše telefónne číslo *



