Pag, Novalja – apartmány vo výstavbe s výhľadom na more
- [24.9. 2025]Zmazať/ Upraviť/ Topovať








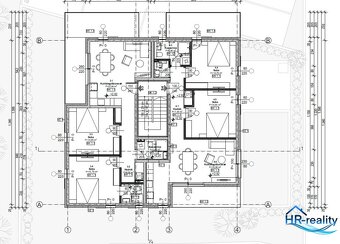
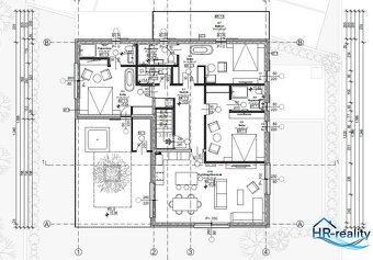
Na ostrove Pag, presnejšie v Novalji, je vo výstavbe táto moderná novostavba s celkom 5 apartmánmi. Bytový dom pozostáva z 5 bytových jednotiek, vonkajších parkovacích miest, terás a spoločného bazéna. Väčšina apartmánov má výhľad na more.
Kvalitná konštrukcia v blízkosti krásnej pláže a čistého mora (cca 500 metrov) a súkromného bazéna robia tieto apartmány perfektnou investíciou a dovolenkovým miestom.
Dostupné apartmány:
S1 – o celkovej veľkosti 78,22 m2 sa nachádza na prízemí budovy a pozostáva z bytovej časti o výmere 72,22 m2 (chodba, dve izby, kúpeľňa 1, kúpeľňa 2, obývačka, kuchyňa a jedáleň izba), a vonkajšej časti s dvomi parkovacími miestami – 25m2 a záhradou cca 10m2.
Cena: 242.482€
S2 – o celkovej veľkosti 69,80 m2 sa nachádza na prízemí budovy a pozostáva z bytovej časti o výmere 63,80 m2 (chodba, dve izby, kúpeľňa 1, kúpeľňa 2, obývačka, kuchyňa a jedáleň izba), a vonkajšej časti s dvomi parkovacími miestami – 25m2 a záhradou cca 10m2.
Cena: 216.380€
S3 – o celkovej veľkosti 84,60 m2 sa nachádza na 1. poschodí budovy a pozostáva z bytovej časti o výmere 68,78 m2 (chodba, dve izby, kúpeľňa 1, kúpeľňa 2, obývačka, kuchyňa a jedáleň izba), a vonkajšej časti s dvomi parkovacími státiami – 25m2 a terasou 21,61m2.
Cena: 262.260€
S4 – o celkovej veľkosti 84,39 m2 sa nachádza na 1. poschodí budovy a pozostáva z bytovej časti o výmere 68,45 m2 (chodba, dve izby, kúpeľňa 1, WC, obývačka, kuchyňa a jedáleň ), a vonkajšej časti s dvomi parkovacími státiami – 25m2 a dvoma balkónmi 9,45m2 a 12,42m2.
Cena: 261.609€
S5- Penthouse o celkovej veľkosti 165,54 m2 sa nachádza na 2. poschodí budovy a pozostáva z bytovej časti o výmere 126,81 m2 (chodba, štyri spálne, štyri kúpeľne, obývačka, kuchyňa a jedáleň a SAUNA), a vonkajšej časti s dvomi parkovacími státiami – 25m2, terasa 40,97m2 a balkón 17,65m2.
Cena: 562.836€
Predpokladaný termín dokončenia stavby je jún 2025.
Energetický certifikát triedy A.
Kupujúci neplatí daň z predaja nehnuteľnosti!
Provízia realitnej kancelárie je 3% z dohodnutej kúpnej ceny.
Pre viac informácií alebo dohodnutie obhliadky nás neváhajte kontaktovať.
Celková rozloha: 70m²
Vlastníctvo: osobné
Zateplený objekt: plánuje sa
Klimatizácia: áno
Energetický certifikát: A
Kvalitná konštrukcia v blízkosti krásnej pláže a čistého mora (cca 500 metrov) a súkromného bazéna robia tieto apartmány perfektnou investíciou a dovolenkovým miestom.
Dostupné apartmány:
S1 – o celkovej veľkosti 78,22 m2 sa nachádza na prízemí budovy a pozostáva z bytovej časti o výmere 72,22 m2 (chodba, dve izby, kúpeľňa 1, kúpeľňa 2, obývačka, kuchyňa a jedáleň izba), a vonkajšej časti s dvomi parkovacími miestami – 25m2 a záhradou cca 10m2.
Cena: 242.482€
S2 – o celkovej veľkosti 69,80 m2 sa nachádza na prízemí budovy a pozostáva z bytovej časti o výmere 63,80 m2 (chodba, dve izby, kúpeľňa 1, kúpeľňa 2, obývačka, kuchyňa a jedáleň izba), a vonkajšej časti s dvomi parkovacími miestami – 25m2 a záhradou cca 10m2.
Cena: 216.380€
S3 – o celkovej veľkosti 84,60 m2 sa nachádza na 1. poschodí budovy a pozostáva z bytovej časti o výmere 68,78 m2 (chodba, dve izby, kúpeľňa 1, kúpeľňa 2, obývačka, kuchyňa a jedáleň izba), a vonkajšej časti s dvomi parkovacími státiami – 25m2 a terasou 21,61m2.
Cena: 262.260€
S4 – o celkovej veľkosti 84,39 m2 sa nachádza na 1. poschodí budovy a pozostáva z bytovej časti o výmere 68,45 m2 (chodba, dve izby, kúpeľňa 1, WC, obývačka, kuchyňa a jedáleň ), a vonkajšej časti s dvomi parkovacími státiami – 25m2 a dvoma balkónmi 9,45m2 a 12,42m2.
Cena: 261.609€
S5- Penthouse o celkovej veľkosti 165,54 m2 sa nachádza na 2. poschodí budovy a pozostáva z bytovej časti o výmere 126,81 m2 (chodba, štyri spálne, štyri kúpeľne, obývačka, kuchyňa a jedáleň a SAUNA), a vonkajšej časti s dvomi parkovacími státiami – 25m2, terasa 40,97m2 a balkón 17,65m2.
Cena: 562.836€
Predpokladaný termín dokončenia stavby je jún 2025.
Energetický certifikát triedy A.
Kupujúci neplatí daň z predaja nehnuteľnosti!
Provízia realitnej kancelárie je 3% z dohodnutej kúpnej ceny.
Pre viac informácií alebo dohodnutie obhliadky nás neváhajte kontaktovať.
Celková rozloha: 70m²
Vlastníctvo: osobné
Zateplený objekt: plánuje sa
Klimatizácia: áno
Energetický certifikát: A
|
|
Kontaktovať inzerenta e-mailom
Kontaktovať e-mailom môže iba overený užívateľ.
Overenie je zadarmo.
Vaše telefónne číslo *
Kontaktovať e-mailom môže iba overený užívateľ.
Overenie je zadarmo.
Vaše telefónne číslo *
Podobné inzeráty

NIN - jednoizbový byt - byt pozostáva zo vstupnej chodby, obývačky a jedálne, kuchyne, loggie, kúpeľne a jednej spálne. Celková pôdorysná plocha bytu je 44,05 m2.
Celková rozloha: 44.05m²
160 000 €
Zahraničie
123 45
123 45
37 x
Označiť zlý inzerát Chybnú kategóriu Ohodnotiť užívateľa Zmazať/Upraviť/Topovať

PRIVLAKA - ponúkame na predaj dvojizbový apartmán 130 m od mora.
Byt sa nachádza na 1. poschodí bytového domu, pozostáva z kuchyne, jedálne, obývacej izby, kúpeľne, terasy a komory.
Obytná plocha: 44m²
Úžitková plocha: 44m²
168 000 €
Zahraničie
123 45
123 45
133 x
Označiť zlý inzerát Chybnú kategóriu Ohodnotiť užívateľa Zmazať/Upraviť/Topovať

Realitná kancelária HR – reality ponúka na predaj luxusný 4-izbový apartmán s dvoma terasami a výhľadom na more, dvorom s vírivkou.
Pozostáva zo:
PRVÉ POSCHODIE: chodba, kúpeľňa s WC, WC, obývačka, kuchyňa, tri spálne a schodisko, ktoré je prístupné do bytu z prízemia, všetko spolu s celkovou úžit ...
250 000 €
Zahraničie
123 45
123 45
293 x
Označiť zlý inzerát Chybnú kategóriu Ohodnotiť užívateľa Zmazať/Upraviť/Topovať

Realitná kancelária HR – reality ponúka na predaj štýlovo zariadený apartmán s rozlohou 67 m2. Nachádza sa na 1. poschodí novostavby vo vyhľadávanej časti Novalje.
Apartmán má 2 spálne (jedna s prístupom na terasu), 2 kúpeľne, kuchyňu, jedáleň, obývaciu izbu, chodbu a terasu s rozlohou 10,72 m2. Je ...
267 000 €
Zahraničie
123 45
123 45
302 x
Označiť zlý inzerát Chybnú kategóriu Ohodnotiť užívateľa Zmazať/Upraviť/Topovať

Realitná kancelária HR – reality ponúka na predaj dvojspálňový apartmán, ktorý sa nachádza na prvom poschodí bytového domu v Privlake.
Apartmán pozostáva z dvoch spální, dvoch kúpeľní (z ktorých jedna patrí k hlavnej spálni), obývacej izby s kuchyňou a jedálňou a terasy s rozlohou 11 m².
terasa: 9 ...
255 000 €
Zahraničie
123 45
123 45
261 x
Označiť zlý inzerát Chybnú kategóriu Ohodnotiť užívateľa Zmazať/Upraviť/Topovať

Realitná kancelária HR – reality ponúka na predaj zariadený apartmán s garážovým státím v lokalite ZADAR – VIDIKOVAC / BELAFUŽA.
Apartmán má rozlohu 64,01 m² a nachádza sa v malom bytovom dome v tichej lokalite v Zadare. Umiestnený je na 3. poschodí (vysoké podkrovie) a vďaka svojej južnej a juhový ...
265 000 €
Zahraničie
123 45
123 45
175 x
Označiť zlý inzerát Chybnú kategóriu Ohodnotiť užívateľa Zmazať/Upraviť/Topovať

POVLJANA - Dvojizbový apartmán - 1. rad k moru.
Apartmán sa nachádza na prvom poschodí malej bytovej budovy s krásnym výhľadom na otvorené more. Apartmán má celkovú úžitkovú plochu 73,98 m2 a pozostáva z dvoch spální, dvoch kúpeľní, obývačky, kuchyne a terasy. K apartmánu patrí jedno parkovacie m ...
210 000 €
Zahraničie
123 45
123 45
249 x
Označiť zlý inzerát Chybnú kategóriu Ohodnotiť užívateľa Zmazať/Upraviť/Topovať

Realitná kancelária HR - reality ponúka na predaj zariadený dvojspálňový apartmán 57,02 m², nachádzajúci sa na 1. poschodí novostavby bytového domu, orientovaný na juhovýchod. Apartmán pozostáva z kuchyne prepojenej s jedálňou a obývacou izbou s prístupom na krytú terasu o výmere 8,21 m2 s výhľadom ...
219 000 €
Zahraničie
123 45
123 45
354 x
Označiť zlý inzerát Chybnú kategóriu Ohodnotiť užívateľa Zmazať/Upraviť/Topovať

Ponúkame na predaj krásne zariadený 2 spálňový apartmán s výhľadom na more v Albánskom letovisku Sarandë, len 50m od peknej pláže v jednej z najkrajších častí mesta. Apartmán má celkovú rozlohu 106m2. Pozostáva zo: vstupnej chodby, 2 spální, spoločného priestoru obývačky, kuchyne a jedálne s výstupo ...
275 000 €
Zahraničie
123 45
123 45
352 x
Označiť zlý inzerát Chybnú kategóriu Ohodnotiť užívateľa Zmazať/Upraviť/Topovať

Ponúkame na predaj zariadený apartmán s otvoreným výhľadom na more v Albánskom letovisku Sarandë. Apartmán má celkovú rozlohu 110m2 a čistá úžitková plocha apartmánu je 85m2. Pozostáva zo: vstupnej chodby, 2 spální, spoločného priestoru obývačky, kuchyne a jedálne s výstupom na balkón, 2 kupeľní a w ...
270 000 €
Zahraničie
123 45
123 45
342 x
Označiť zlý inzerát Chybnú kategóriu Ohodnotiť užívateľa Zmazať/Upraviť/Topovať