✅ PREDAJ: DOM S TERASOU, 43 m2, celá SR
- [23.9. 2025]Zmazať/ Upraviť/ Topovať



Realitná kancelária PRIMA REAL ponúka na predaj dom s terasou o zastavanej ploche 43,2 m2.
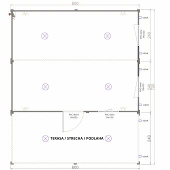
Dom s terasou: 6,00 x 7,20 x 2,70 m (DxŠxV)
Cena je vrátane montáže !!!
Prípojky na inžinierske a elektrické siete nie sú súčasťou ponuky.
Konštrukcia:
Zvárané celooceľové profily, rozmery 120x40, hrúbka steny rúry 3 mm, s podperami zo celooceľových profilov 60x40, hrúbka steny 3 mm, lakovaná 3 x ochranná a 3 x finálny náter v RAL 7016. Tmel v spodnej zóne na styku podlahového profilu a panelu.
Steny:
Tepelnoizolačné sendvičové panely výplň PUR výplň hrúbka 40 mm hrúbka plechu 0,4/0,5 RAL drevo/9002.
Podlaha:
Vyrobené z 3 mm hrubej oceľovej konštrukcie s nosnou mriežkou pokrytou hrubým dreveným obložením 25 mm. Potiahnuté ochranným náterom a recyklovanými PVC - OSB doskami s priepustnosťou vlhkosti s fóliou, dokončovacím laminátom, pričom v sanitárnej oblasti je to PVC.
Strecha:
Obloženie stropu sendvičovým panelom, výplň PUR, hrúbka 40 mm, hrúbka plechu 0,4/0,5, RAL 9002/9002. Tesnenie hmotou v streche a v spodnej zóne na styku podlahového profilu a panelu Zwaluw Hybriseal
Dvere:
- 1 ks. PVC dvere, rozmery 0,99 x 2,00 m RAL 7016/7016
*vonkajšie rozmery rámu
Okná:
- 2 ks. Okno PVC s presklením IZO, otváranie O/Z, rozmery 0,99 x 1,20 m RAL 7016/7016
- 1 ks. PVC Pultové okno s presklením IZO, otváranie O/Z, rozmery 0,99 x 1,20 m RAL 7016/7016
*vonkajšie rozmery rámu
Elektroinštalácie:
Štandard na kontajner, na vrchu s PVC potrubím:
- 6 ks. LED osvetlenie 1x24 W s vypínačom
- 5 ks. Dvojitá zásuvka OG.
- 1 ks. Bežná zásuvka OG (pre klimatizáciu)
- Rozvádzač s automatickými poistkami a spínačom FID.
- Zavedenie elektriny cez priemyselnú zásuvku UKO TUE.
Cena bez DPH: 17 400,00 €
Stavbu je možné realizovať kdekoľvek na Slovensku, kde je prístup pre auto s hydraulickou rukou až na pozemok.
☎️KONTAKT:
- 0907 966 145
- bujnak@primareal.sk
Dom s terasou: 6,00 x 7,20 x 2,70 m (DxŠxV)
Cena je vrátane montáže !!!
Prípojky na inžinierske a elektrické siete nie sú súčasťou ponuky.
Konštrukcia:
Zvárané celooceľové profily, rozmery 120x40, hrúbka steny rúry 3 mm, s podperami zo celooceľových profilov 60x40, hrúbka steny 3 mm, lakovaná 3 x ochranná a 3 x finálny náter v RAL 7016. Tmel v spodnej zóne na styku podlahového profilu a panelu.
Steny:
Tepelnoizolačné sendvičové panely výplň PUR výplň hrúbka 40 mm hrúbka plechu 0,4/0,5 RAL drevo/9002.
Podlaha:
Vyrobené z 3 mm hrubej oceľovej konštrukcie s nosnou mriežkou pokrytou hrubým dreveným obložením 25 mm. Potiahnuté ochranným náterom a recyklovanými PVC - OSB doskami s priepustnosťou vlhkosti s fóliou, dokončovacím laminátom, pričom v sanitárnej oblasti je to PVC.
Strecha:
Obloženie stropu sendvičovým panelom, výplň PUR, hrúbka 40 mm, hrúbka plechu 0,4/0,5, RAL 9002/9002. Tesnenie hmotou v streche a v spodnej zóne na styku podlahového profilu a panelu Zwaluw Hybriseal
Dvere:
- 1 ks. PVC dvere, rozmery 0,99 x 2,00 m RAL 7016/7016
*vonkajšie rozmery rámu
Okná:
- 2 ks. Okno PVC s presklením IZO, otváranie O/Z, rozmery 0,99 x 1,20 m RAL 7016/7016
- 1 ks. PVC Pultové okno s presklením IZO, otváranie O/Z, rozmery 0,99 x 1,20 m RAL 7016/7016
*vonkajšie rozmery rámu
Elektroinštalácie:
Štandard na kontajner, na vrchu s PVC potrubím:
- 6 ks. LED osvetlenie 1x24 W s vypínačom
- 5 ks. Dvojitá zásuvka OG.
- 1 ks. Bežná zásuvka OG (pre klimatizáciu)
- Rozvádzač s automatickými poistkami a spínačom FID.
- Zavedenie elektriny cez priemyselnú zásuvku UKO TUE.
Cena bez DPH: 17 400,00 €
Stavbu je možné realizovať kdekoľvek na Slovensku, kde je prístup pre auto s hydraulickou rukou až na pozemok.
☎️KONTAKT:
- 0907 966 145
- bujnak@primareal.sk
|
|
Kontaktovať inzerenta e-mailom
Kontaktovať e-mailom môže iba overený užívateľ.
Overenie je zadarmo.
Vaše telefónne číslo *
Kontaktovať e-mailom môže iba overený užívateľ.
Overenie je zadarmo.
Vaše telefónne číslo *