Jednoizbový byt na predaj, Zlaté Moravce
- [22.9. 2025]Zmazať/ Upraviť/ Topovať











ByDoS Reality Vám ponúkajú jednoizbový byt na predaj:
Jednoizbový byt:
• Lokalita: Zlaté Moravce, ulica Mládeže
• Plocha bytu: 34,55 m2
• Podlažie: 2/3
• Pivnica: 9,74 m2
• Stav: zrekonštruované (okná, podlahy, omietky, obklady, jadro, sanita)
• Konštrukcia: panel
• Kúrenie: ústredné + merač
• Optický internet
• Inžinierske siete: elektrina, voda, plyn, kanalizácia
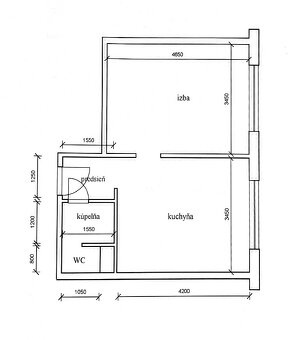
Dispozícia bytu:
• Spálňa, kuchyňa s obývacou miestnosťou, kúpeľňa s WC, predsieň
Zariadenie bytu obsahuje:
• Kuchyňa s obývacou miestnosťou: kuchynská linka, plynový sporák, rúra, práčka, chladnička, komoda, TV, pohovka, stolík,
• Spálňa: manželská posteľ, nočné stolíky, skriňa, písací stôl
• Chodba: botník
• Kúpeľňa: sprchový kút, WC
• Cena za inzerovanú nehnuteľnosť: 79.500,-€ (prípadná dohoda je možná)
• Mesačné náklady 130,-€ mesačne (záleží od spotreby a počtu osôb)
• Tip: Tento zrekonštruovaný byt v tichej lokalite Zlatých Moraviec je ideálny pre jednotlivcov alebo páry, prípadne ako investičná nehnuteľnosť. Jedná sa o menšie, no funkčné riešené bytu bez ďalších investícií. Vďaka nízkym mesačným nákladom a výbornej dostupnosti všetkých inžinierskych sietí predstavuje výhodnú kúpu aj ako štartovací byt. Navyše priestranná pivnica poskytuje nadštandardný úložný priestor.
V prípade záujmu o nehnuteľnosť kontaktujte nás telefonicky Po-Pi 9:00-17:00
• kancelária: Levická 598, Vráble
• tel. č.: 0903 345 644
• ivan.simonek@bydos.firm.sk
Zaoberáme sa bývaním:
• Zabezpečíme sprostredkovanie financovania na kúpu nehnuteľnosti
• Spolupráca s developermi
• Poradenstvo pri kúpe predaji nehnuteľností
• Sprostredkovanie predaja/kúpy nehnuteľností
• Prezentácie nehnuteľností
• Oceňovanie nehnuteľností pre dedičské konania, súdne spory, vysporiadanie vlastníctva, Rezervačné zmluvy, Zmluvy o budúcich zmluvách, Kúpne zmluvy pripravené advokátom
* fotografie sú vyhotovené širokouhlým objektívom, môžu skresľovať skutočný stav.
Jednoizbový byt:
• Lokalita: Zlaté Moravce, ulica Mládeže
• Plocha bytu: 34,55 m2
• Podlažie: 2/3
• Pivnica: 9,74 m2
• Stav: zrekonštruované (okná, podlahy, omietky, obklady, jadro, sanita)
• Konštrukcia: panel
• Kúrenie: ústredné + merač
• Optický internet
• Inžinierske siete: elektrina, voda, plyn, kanalizácia
Dispozícia bytu:
• Spálňa, kuchyňa s obývacou miestnosťou, kúpeľňa s WC, predsieň
Zariadenie bytu obsahuje:
• Kuchyňa s obývacou miestnosťou: kuchynská linka, plynový sporák, rúra, práčka, chladnička, komoda, TV, pohovka, stolík,
• Spálňa: manželská posteľ, nočné stolíky, skriňa, písací stôl
• Chodba: botník
• Kúpeľňa: sprchový kút, WC
• Cena za inzerovanú nehnuteľnosť: 79.500,-€ (prípadná dohoda je možná)
• Mesačné náklady 130,-€ mesačne (záleží od spotreby a počtu osôb)
• Tip: Tento zrekonštruovaný byt v tichej lokalite Zlatých Moraviec je ideálny pre jednotlivcov alebo páry, prípadne ako investičná nehnuteľnosť. Jedná sa o menšie, no funkčné riešené bytu bez ďalších investícií. Vďaka nízkym mesačným nákladom a výbornej dostupnosti všetkých inžinierskych sietí predstavuje výhodnú kúpu aj ako štartovací byt. Navyše priestranná pivnica poskytuje nadštandardný úložný priestor.
V prípade záujmu o nehnuteľnosť kontaktujte nás telefonicky Po-Pi 9:00-17:00
• kancelária: Levická 598, Vráble
• tel. č.: 0903 345 644
• ivan.simonek@bydos.firm.sk
Zaoberáme sa bývaním:
• Zabezpečíme sprostredkovanie financovania na kúpu nehnuteľnosti
• Spolupráca s developermi
• Poradenstvo pri kúpe predaji nehnuteľností
• Sprostredkovanie predaja/kúpy nehnuteľností
• Prezentácie nehnuteľností
• Oceňovanie nehnuteľností pre dedičské konania, súdne spory, vysporiadanie vlastníctva, Rezervačné zmluvy, Zmluvy o budúcich zmluvách, Kúpne zmluvy pripravené advokátom
* fotografie sú vyhotovené širokouhlým objektívom, môžu skresľovať skutočný stav.
|
|
Kontaktovať inzerenta e-mailom
Kontaktovať e-mailom môže iba overený užívateľ.
Overenie je zadarmo.
Vaše telefónne číslo *
Kontaktovať e-mailom môže iba overený užívateľ.
Overenie je zadarmo.
Vaše telefónne číslo *