2- izbový byt 56 m2, PIVNICA, KLIMATIZÁCIA, ŽALÚZIE, REKUPER
- [22.9. 2025]Zmazať/ Upraviť/ Topovať























PREDAJ STUSTENÝ!
NAVYŠE bude mať tento byt v základnej cene: KLIMATIZÁCIU, EXTERIÉROVÉ HLINÍKOVÉ ŽALÚZIE NA VŠETKÝCH OKNÁCH, REKUPERÁCIU + PIVNICU.
RK Domy pre ľudí ponúka exkluzívne na predaj 2 izbový byt (B2) v bytovom dome, ktorý je aktuálne vo výstavbe v lokalite Malý raj, Slovenský Grob, na Dúhovej ulici.
Celú ponuku bytov nájdete na byvajtevraji.sk
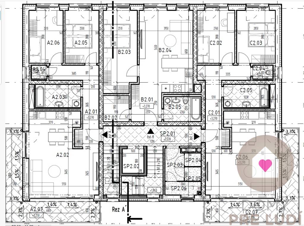
Byt (B2) sa nachádza na 1. poschodí bytového domu (2NP). Disponuje úžitkovou plochou 55,8 m2 a dispozične pozostáva zo vstupnej chodby (6,41 m2), kúpeľne s vaňou (5,55 m2), komory/šatníka (3,69 m2), obývačky prepojenej s kuchyňou (23,64 m2) a spálne (15,28 m2). K bytu prináleží pivničná kobka o výmere 1,24 m2, ktorá sa nachádza pri byte. Orientácia bytu je JV.
Byt sa predáva v štádiu „holobyt“, s bezpečnostnými protipožiarnymi vchodovými dvermi, vymaľovaný na bielo, s osadeným zásuvkami a vypínačmi, na podlahách ukončené poterom pripraveným na položenie nášľapných vrstiev. Kúrenie v byte bude podlahové elektrické s individuálnou reguláciou v každej miestnosti. V základnej cene sú aj exteriérové hliníkové žalúzie, klimatizačná jednotka a rekuperácia vzduchu.
Ponúkame taktiež možnosť dokončiť byt do štádia „štandard“ podľa individuálnych požiadaviek klienta. Cena dohodou. Fotky použité v inzeráte sú z 1. etapy.
VŠEOBECNÝ POPIS BYTOVÉHO DOMU:
Bytový dom ponúka celkovo bývanie v 9tich bytoch na 3 podlažiach. K bytom na prízemí budú prislúchať vlastné záhradky, 3 izbové byty na poschodiach majú priestranné 17,55 m2 balkóny, 2 izbové byty sú bez balkónov. Ku každému bytu prislúcha pivničná kobka.
POUŽITÉ MATERIÁLY:
• obvodová stena – 30 cm tehla
• medzibytové priečky – 30 cm akustická tehla
• vnútorné nenosné priečky- 13 cm
• strecha – betónová platňa + Fatrafol fólia so štrkovým lôžkom
• zateplenie – 18 cm minerálna vlna
• fasádna farba – podľa vizualizácie
• okná plastové, 6 komorové 3sklá
• výťah pre 6 osôb
• spoločné priestory budú vydláždené keramickou dlažbou
• vstupná brána do bytového domu - hliníková
Výstavba bytového domu začala v 4.Q/24, dokončenie je naplánované v 4.Q/25, kolaudácia a odovzdanie bytov v 1.Q/26.
Rezervačný poplatok je 10.000 €, zvyšok sa dopláca po kolaudácii bytového domu a podpise KZ.
1 parkovacie miesto pred bytovým domom o výmere 12 m2 je za príplatok 8.000 €.
Bytový dom sa nachádza v dynamicky sa rozvíjajúcej obci Slovenský Grob –Šúr (Malý raj), ktorá je preslávená svojimi husacími a kačacími hodmi, ktoré každoročne do obce prilákajú tisíce návštevníkov.
V lokalite sa nachádza obecná škola a škôlka. Nájdete tu niekoľko detských ihrísk, jazero s oddychovou zónou, fitpark, kaviareň, cukráreň, dentálnu hygienu, výdajné miesto Packety, veterinárnu ambulanciu a kaderníctvo. Zastávka autobusu je 50 metrov od bytového domu. Najbližšie potraviny (Tesco) sa nachádzajú 1 km od bytového domu v lokalite Chorvátsky Grob- miestna časť Čierna Voda, kde
NAVYŠE bude mať tento byt v základnej cene: KLIMATIZÁCIU, EXTERIÉROVÉ HLINÍKOVÉ ŽALÚZIE NA VŠETKÝCH OKNÁCH, REKUPERÁCIU + PIVNICU.
RK Domy pre ľudí ponúka exkluzívne na predaj 2 izbový byt (B2) v bytovom dome, ktorý je aktuálne vo výstavbe v lokalite Malý raj, Slovenský Grob, na Dúhovej ulici.
Celú ponuku bytov nájdete na byvajtevraji.sk
Byt (B2) sa nachádza na 1. poschodí bytového domu (2NP). Disponuje úžitkovou plochou 55,8 m2 a dispozične pozostáva zo vstupnej chodby (6,41 m2), kúpeľne s vaňou (5,55 m2), komory/šatníka (3,69 m2), obývačky prepojenej s kuchyňou (23,64 m2) a spálne (15,28 m2). K bytu prináleží pivničná kobka o výmere 1,24 m2, ktorá sa nachádza pri byte. Orientácia bytu je JV.
Byt sa predáva v štádiu „holobyt“, s bezpečnostnými protipožiarnymi vchodovými dvermi, vymaľovaný na bielo, s osadeným zásuvkami a vypínačmi, na podlahách ukončené poterom pripraveným na položenie nášľapných vrstiev. Kúrenie v byte bude podlahové elektrické s individuálnou reguláciou v každej miestnosti. V základnej cene sú aj exteriérové hliníkové žalúzie, klimatizačná jednotka a rekuperácia vzduchu.
Ponúkame taktiež možnosť dokončiť byt do štádia „štandard“ podľa individuálnych požiadaviek klienta. Cena dohodou. Fotky použité v inzeráte sú z 1. etapy.
VŠEOBECNÝ POPIS BYTOVÉHO DOMU:
Bytový dom ponúka celkovo bývanie v 9tich bytoch na 3 podlažiach. K bytom na prízemí budú prislúchať vlastné záhradky, 3 izbové byty na poschodiach majú priestranné 17,55 m2 balkóny, 2 izbové byty sú bez balkónov. Ku každému bytu prislúcha pivničná kobka.
POUŽITÉ MATERIÁLY:
• obvodová stena – 30 cm tehla
• medzibytové priečky – 30 cm akustická tehla
• vnútorné nenosné priečky- 13 cm
• strecha – betónová platňa + Fatrafol fólia so štrkovým lôžkom
• zateplenie – 18 cm minerálna vlna
• fasádna farba – podľa vizualizácie
• okná plastové, 6 komorové 3sklá
• výťah pre 6 osôb
• spoločné priestory budú vydláždené keramickou dlažbou
• vstupná brána do bytového domu - hliníková
Výstavba bytového domu začala v 4.Q/24, dokončenie je naplánované v 4.Q/25, kolaudácia a odovzdanie bytov v 1.Q/26.
Rezervačný poplatok je 10.000 €, zvyšok sa dopláca po kolaudácii bytového domu a podpise KZ.
1 parkovacie miesto pred bytovým domom o výmere 12 m2 je za príplatok 8.000 €.
Bytový dom sa nachádza v dynamicky sa rozvíjajúcej obci Slovenský Grob –Šúr (Malý raj), ktorá je preslávená svojimi husacími a kačacími hodmi, ktoré každoročne do obce prilákajú tisíce návštevníkov.
V lokalite sa nachádza obecná škola a škôlka. Nájdete tu niekoľko detských ihrísk, jazero s oddychovou zónou, fitpark, kaviareň, cukráreň, dentálnu hygienu, výdajné miesto Packety, veterinárnu ambulanciu a kaderníctvo. Zastávka autobusu je 50 metrov od bytového domu. Najbližšie potraviny (Tesco) sa nachádzajú 1 km od bytového domu v lokalite Chorvátsky Grob- miestna časť Čierna Voda, kde
|
| |||||||||||||||||||||||||||||||
Kontaktovať inzerenta e-mailom
Kontaktovať e-mailom môže iba overený užívateľ.
Overenie je zadarmo.
Vaše telefónne číslo *
Kontaktovať e-mailom môže iba overený užívateľ.
Overenie je zadarmo.
Vaše telefónne číslo *
Podobné inzeráty
3i. BYT - 74 m2 + 17,5 m2 balkón, TEP. ČERPADLO, KLIMATIZÁCI - [13.11. 2025]PREDAJ STUSTENÝ!
Tento byt bude mať v základnej cene: VLASTNÉ TEPELNÉ ČERPADLO (čo znanemná nízke mesačné náklady pre budúceho vlastníka), KLIMATIZÁCIU, EXTERIÉROVÉ HLINÍKOVÉ ŽALÚZIE NA VŠETKÝCH OKNÁCH.
Celú ponuku bytov nájdete na byvajtevraji.sk
RK Domy pre ľudí ponúka exkluzívne na pre ...
223 900 €
Pezinok
900 26
900 26
167 x
Označiť zlý inzerát Chybnú kategóriu Ohodnotiť užívateľa Zmazať/Upraviť/Topovať
Slnečný 3-izbový byt s výhľadom na Karpaty v Slovenskom Grob - [13.11. 2025]Typ: 3-izbový byt
Obec: Slovenský Grob
Realitná kancelária Wealthgroup ponúka exkluzívne na predaj priestranný a svetlý 3-izbový byt s podlahovou plochou 79,10 m² a balkónom (4,81 m²), ktorý sa nachádza na 3. poschodí moderného bytového tehlového domu skolaudovaného v roku 2019.
Byt sa ...
253 000 €
Pezinok
900 26
900 26
129 x
Označiť zlý inzerát Chybnú kategóriu Ohodnotiť užívateľa Zmazať/Upraviť/Topovať
BOSEN | Moderný 3-izbový byt s priestorom pre rodinu, veľkou - [6.11. 2025]Typ: 3-izbový byt
Obec: Slovenský Grob
BOSEN GROUP Vám ponúka na predaj veľmi vkusne zariadený 3-izbový byt situovaný v samostatnom rodinnom dome. K bytu patria 2 parkovacie miesta priamo pred domom, terasa a krásna, upravená veľká záhrada. Byt sa nachádza v tichej ulici v obci Slovesk ...
Dohodou
Pezinok
900 26
900 26
3838 x
Označiť zlý inzerát Chybnú kategóriu Ohodnotiť užívateľa Zmazať/Upraviť/Topovať
HALO reality - Predaj, trojizbový byt Slovenský Grob, Malý R - [6.11. 2025]EXKLUZÍVNE ponúkame na predaj moderný trojizbový byt s terasou, záhradkou a dvomi parkovacími státiami pred domom v Slovenskom Grobe v obľúbenej lokalite Malý Raj. Celková plocha bytu je 75,84 m2, rozloha terasy je cca 18 m2, záhrada má plochu 140 m2. Byt sa nachádza na prízemí rodinného domu so šty ...
269 990 €
Pezinok
900 26
900 26
4048 x
Označiť zlý inzerát Chybnú kategóriu Ohodnotiť užívateľa Zmazať/Upraviť/Topovať
3i. BYT SO ZÁHRADOU +TEP. ČERPADLO, KLIMATIZÁCIA A ŽALÚZIE V - [30.10. 2025]PREDAJ SPUSTENÝ!
Tento byt bude mať v základnej cene: VLASTNÉ TEPELNÉ ČERPADLO (čo predstavuje pre budúceho majiteľa nízke mesačné náklady), KLIMATIZÁCIU, EXTERIÉROVÉ HLINÍKOVÉ ŽALÚZIE NA VŠETKÝCH OKNÁCH A VLASTNÚ OPLOTENÚ 107 m2 veľkú záhradu vrátane terasy zo zámkovej dlažby.
Videoobhliadku ...
236 000 €
Pezinok
900 26
900 26
1139 x
Označiť zlý inzerát Chybnú kategóriu Ohodnotiť užívateľa Zmazať/Upraviť/Topovať
Úplne nový luxusný dizajnový byt s garážou - [20.10. 2025]Táto ponuka je určená pre klienta, ktorý hľadá kvalitu, dizajn a hotové prémiové riešenie – nie pre tých, ktorí hľadajú najlacnejší štandard.
Byt je úplne nový, neobývaný, pripravený na okamžité bývanie alebo výnosný prenájom.
Každý detail bol navrhnutý interiérovým dizajnérom a vyhotovený na mi ...
209 990 €
Pezinok
900 26
900 26
150 x
Označiť zlý inzerát Chybnú kategóriu Ohodnotiť užívateľa Zmazať/Upraviť/Topovať
REZERVOVANÉ - VÝHĽAD NA KARPATY V 3IZBOVOM BYTE V SLOVENSKOM - [4.10. 2025]B10 Vám ponúka na predaj výnimočný 3izbový byt s úžasnou atmosférou a terasou na Mojmírovej ulici v Slovenskom Grobe.Táto nehnuteľnosť disponuje užitkovou plochou 72,16m2 a terasou o výmere 15,70m2.Byt sa nachádza na 2 poschodí stavby z roku 2015.Dispozícia je navrhnutá vstupnou chodbou s úložným pr ...
219 900 €
Pezinok
900 26
900 26
1351 x
Označiť zlý inzerát Chybnú kategóriu Ohodnotiť užívateľa Zmazať/Upraviť/Topovať


