Halový objekt v Novej Dubnici po kompletnej rekonštrukcii
- [19.9. 2025]Zmazať/ Upraviť/ Topovať










Typ: Skladovacie priestory
Ulica: SNP 1
Obec: Nová Dubnica
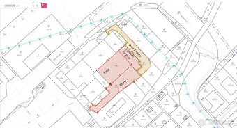
Na predaj rozsiahla železobetónová stavba zložená z haly o rozlohe 768 m2 a administratívnej prístavby o rozlohe 216 m2. Hala aj časť administratívneho priestoru má veľkorysú kopulovitú strechu v halovej časti objektu o výške 8,8 m2.
V prípade patričnych úprav a presklenia menšej poschodovej časti objektu vzniká priestor, kde je pod kontrolu celá hala a všetky aktivity v nej, čo spolu s ľahkým prístupom k objektu predurčuje tento priestor na rôzne zaujímavé aktivity ako kluby, herne, kasína resp. uskladnenie a starostlivosť o autá najvyššej kategórie ( uskladnenie aj 50 áut v prípade nadstavbového riešenia)
Pred halou je dvor o rozlohe 498 m2 plus k objektu prislúchajú zokruhované prístupové cesty o rozlohe 643 m2.
Objekt je po kompletnej rekonštrukcii ( nová liata podlaha pancierobetón o hrúbke 15 cm, nové plastové okná trosklo, nová strešná krytina, nová fasáda)
Nehnuteľnosť je veľmi ľahko prístupná z diaľnice , cca 3 km. Nachádza sa na začiatku mesta Nová Dubnica v jeho priemyselnej časti a 11 km od mesta Trenčín. Neďaleko cez cestu vzniká nové osídlenie rodinných domov a polyfunkčných objektov.
V blízkosti je čerpacia stanica a nákupné centrá ako Lidl a Billa.
Voda, kanál- v objekte
Elektrika- dostupná
Plyn- dostupný
Cena - dohodou
V cene je zahrnutý kompletný právny a finančný servis až po zrealizovanie kúpy.
kontakt : RNDr. Iveta Repaská, tel : 00421 948 393 909
email : iveta.repaska@gmail.com
Status: aktívne
Vlastníctvo: osobné
Úžitková plocha: 984 m2
Zastavaná plocha: 984 m2
Podlahová plocha: 984 m2
Stav: čiastočne prerobený
Typ budovy: iné
Pozícia: Prízemie
Celková plocha: 984 m2
Ulica: SNP 1
Obec: Nová Dubnica
Na predaj rozsiahla železobetónová stavba zložená z haly o rozlohe 768 m2 a administratívnej prístavby o rozlohe 216 m2. Hala aj časť administratívneho priestoru má veľkorysú kopulovitú strechu v halovej časti objektu o výške 8,8 m2.
V prípade patričnych úprav a presklenia menšej poschodovej časti objektu vzniká priestor, kde je pod kontrolu celá hala a všetky aktivity v nej, čo spolu s ľahkým prístupom k objektu predurčuje tento priestor na rôzne zaujímavé aktivity ako kluby, herne, kasína resp. uskladnenie a starostlivosť o autá najvyššej kategórie ( uskladnenie aj 50 áut v prípade nadstavbového riešenia)
Pred halou je dvor o rozlohe 498 m2 plus k objektu prislúchajú zokruhované prístupové cesty o rozlohe 643 m2.
Objekt je po kompletnej rekonštrukcii ( nová liata podlaha pancierobetón o hrúbke 15 cm, nové plastové okná trosklo, nová strešná krytina, nová fasáda)
Nehnuteľnosť je veľmi ľahko prístupná z diaľnice , cca 3 km. Nachádza sa na začiatku mesta Nová Dubnica v jeho priemyselnej časti a 11 km od mesta Trenčín. Neďaleko cez cestu vzniká nové osídlenie rodinných domov a polyfunkčných objektov.
V blízkosti je čerpacia stanica a nákupné centrá ako Lidl a Billa.
Voda, kanál- v objekte
Elektrika- dostupná
Plyn- dostupný
Cena - dohodou
V cene je zahrnutý kompletný právny a finančný servis až po zrealizovanie kúpy.
kontakt : RNDr. Iveta Repaská, tel : 00421 948 393 909
email : iveta.repaska@gmail.com
Status: aktívne
Vlastníctvo: osobné
Úžitková plocha: 984 m2
Zastavaná plocha: 984 m2
Podlahová plocha: 984 m2
Stav: čiastočne prerobený
Typ budovy: iné
Pozícia: Prízemie
Celková plocha: 984 m2
|
|
Kontaktovať inzerenta e-mailom
Kontaktovať e-mailom môže iba overený užívateľ.
Overenie je zadarmo.
Vaše telefónne číslo *
Kontaktovať e-mailom môže iba overený užívateľ.
Overenie je zadarmo.
Vaše telefónne číslo *