NA PREDAJ stavebný pozemok v ČERVENOM KLÁŠTORE
- [18.9. 2025]Zmazať/ Upraviť/ Topovať








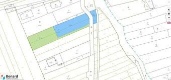
Ponúkame na predaj krásny, slnečný stavebný pozemok o výmere 721 m2 a 108 m2, vhodný na výstavbu rodinného domu v lokalite Červený Kláštor.
- prípojky: elektrina a kanalizácia priamo pri pozemku
- voda a plyn nie sú zavedené
- rovinatý a dobre dostupný pozemok
- tiché a príjemné prostredie s nádherným výhľadom
Výborná voľba pre tých, ktorí hľadajú pokojné bývanie v blízkosti prírody Pienin a zároveň chcú mať dobrú občiansku vybavenosť v dosahu.
Rozloha pozemku: 829m²
El. napätie: 230V
Plyn: nie
Kanalizácia: áno
Terén: rovina
Pripravené na výstavbu: schválené v územnom pláne
- prípojky: elektrina a kanalizácia priamo pri pozemku
- voda a plyn nie sú zavedené
- rovinatý a dobre dostupný pozemok
- tiché a príjemné prostredie s nádherným výhľadom
Výborná voľba pre tých, ktorí hľadajú pokojné bývanie v blízkosti prírody Pienin a zároveň chcú mať dobrú občiansku vybavenosť v dosahu.
Rozloha pozemku: 829m²
El. napätie: 230V
Plyn: nie
Kanalizácia: áno
Terén: rovina
Pripravené na výstavbu: schválené v územnom pláne
|
| |||||||||||||||||||||||||||||||
Kontaktovať inzerenta e-mailom
Kontaktovať e-mailom môže iba overený užívateľ.
Overenie je zadarmo.
Vaše telefónne číslo *
Kontaktovať e-mailom môže iba overený užívateľ.
Overenie je zadarmo.
Vaše telefónne číslo *