Novostavba RD Šemša 16km od Košíc
- TOP - [24.9. 2025]Zmazať/ Upraviť/ Topovať




















Ponúkame na predaj priestranný a svetlý rodinný dom, ktorý spája pohodlie s praktickým riešením bývania. Nehnuteľnosť sa nachádza v pokojnej lokalite, ktorá poskytuje dostatok súkromia, no zároveň výbornú dostupnosť k občianskej vybavenosti. Dom je ideálny pre rodiny hľadajúce príjemné a kvalitné bývanie.
Úžitková plocha rodinného domu je 184,26 m2 + plocha dvoch terás cca 55 m2. Pozemok má celkovú výmeru 550 m2.
DISPOZÍCIA:
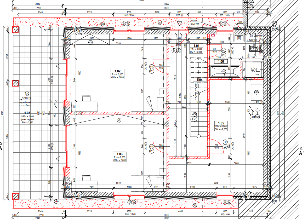
Na poschodí (2.NP) sa nachádza vstupná chodba s priestorom na vstavanú skriňu, samostatná toaleta, spálňa, šatník(vylez na pôjd s ďalším odkladacím priestorom), kúpeľňa(so sprchou), schodisko, kuchyňa a priestranná obývačka s východom na terasu a nádherným výhľadom.
Na prízemí (1.NP) na nachádzajú 3 nepriechodné izby, kúpeľňa(vaňa a sprcha) s toaletou, technická miestnosť a obrovská chodba so schodiskom s priestorom na vstavané skrine.
Pôdorys nájdete vo fotogalérii, vo formáte pdf. Vám ho viem poslať na požiadanie emailom.
2.NP RD je postavený z ytong 30 cm,1.NP RD je postavený z DT, nenosné priečky sú 15 cm, zateplenie 15 cm polystyrén, okná sú plastové 3 sklá, vstupné dvere hliníkové, a francuzské okno hlinikové strop je železobetónový nad 1NP, nad 2 NP je sadrokartón, na streche, ktorá je zateplená 20 cm izoláciou je betónová škridla značky LEIER.
RD sa predáva v štádiu „HOLODOM“, vymaľovaný na bielo, s osadenými zásuvkami a vypínačmi, s teplovodným podlahovým kúrením vrátane tepelného čerpadla so vstavaným zásobníkom na TUV, s prípravou na alarm vonkajšie kamery, prípravou na exteriérové žalúzie (podomietkové kastlíky), s dokončenou fasádou.
Dom je napojený na IS: voda, elektrina, kanalizácia.
Za príplatok ponúkame možnosť dokončiť dom do štádia „štandard“ podľa individuálnych požiadaviek kupujúceho (cena dohodou).
Dom vieme dokončiť podľa vašich predstáv.
V okolí na nachádza kompletná občianska vybavenosť. Lokalita sa vyznačuje výbornou dostupnosťou do Košíc.
V prípade doplňujúcich otázok, alebo záujmu o obhliadku ma neváhajte kontaktovať na 0950 431 456, alebo na p4.beres@gmail.com Ďakujem
Zastavaná plocha: 232,16m²
Obytná plocha: 184,26m²
Rozloha pozemku: 550m²
Vlastníctvo: osobné
Stav: holopriestor
Odvoz odpadu: áno
Voda: verejný vodovod
Studňa hlboká 20 metrov (možnosť napojiť dom na studňu)
El. napätie: 230/400V
Plyn: nie
Kanalizácia: áno
Internet: optika
Kúpeľňa: áno
Vykurovanie: áno
Terasa: áno
Parkovanie: áno
Postavené z: ytong a dt
Zariadenie: nezariadený
Zateplený objekt: áno
Energetický certifikát: A
Predzáhradka: neuvedené
Okná: plastové , vchodové dvere hliník a veľké okno na terase hliník
Prístupová cesta: asfaltová cesta
Úžitková plocha rodinného domu je 184,26 m2 + plocha dvoch terás cca 55 m2. Pozemok má celkovú výmeru 550 m2.
DISPOZÍCIA:
Na poschodí (2.NP) sa nachádza vstupná chodba s priestorom na vstavanú skriňu, samostatná toaleta, spálňa, šatník(vylez na pôjd s ďalším odkladacím priestorom), kúpeľňa(so sprchou), schodisko, kuchyňa a priestranná obývačka s východom na terasu a nádherným výhľadom.
Na prízemí (1.NP) na nachádzajú 3 nepriechodné izby, kúpeľňa(vaňa a sprcha) s toaletou, technická miestnosť a obrovská chodba so schodiskom s priestorom na vstavané skrine.
Pôdorys nájdete vo fotogalérii, vo formáte pdf. Vám ho viem poslať na požiadanie emailom.
2.NP RD je postavený z ytong 30 cm,1.NP RD je postavený z DT, nenosné priečky sú 15 cm, zateplenie 15 cm polystyrén, okná sú plastové 3 sklá, vstupné dvere hliníkové, a francuzské okno hlinikové strop je železobetónový nad 1NP, nad 2 NP je sadrokartón, na streche, ktorá je zateplená 20 cm izoláciou je betónová škridla značky LEIER.
RD sa predáva v štádiu „HOLODOM“, vymaľovaný na bielo, s osadenými zásuvkami a vypínačmi, s teplovodným podlahovým kúrením vrátane tepelného čerpadla so vstavaným zásobníkom na TUV, s prípravou na alarm vonkajšie kamery, prípravou na exteriérové žalúzie (podomietkové kastlíky), s dokončenou fasádou.
Dom je napojený na IS: voda, elektrina, kanalizácia.
Za príplatok ponúkame možnosť dokončiť dom do štádia „štandard“ podľa individuálnych požiadaviek kupujúceho (cena dohodou).
Dom vieme dokončiť podľa vašich predstáv.
V okolí na nachádza kompletná občianska vybavenosť. Lokalita sa vyznačuje výbornou dostupnosťou do Košíc.
V prípade doplňujúcich otázok, alebo záujmu o obhliadku ma neváhajte kontaktovať na 0950 431 456, alebo na p4.beres@gmail.com Ďakujem
Zastavaná plocha: 232,16m²
Obytná plocha: 184,26m²
Rozloha pozemku: 550m²
Vlastníctvo: osobné
Stav: holopriestor
Odvoz odpadu: áno
Voda: verejný vodovod
Studňa hlboká 20 metrov (možnosť napojiť dom na studňu)
El. napätie: 230/400V
Plyn: nie
Kanalizácia: áno
Internet: optika
Kúpeľňa: áno
Vykurovanie: áno
Terasa: áno
Parkovanie: áno
Postavené z: ytong a dt
Zariadenie: nezariadený
Zateplený objekt: áno
Energetický certifikát: A
Predzáhradka: neuvedené
Okná: plastové , vchodové dvere hliník a veľké okno na terase hliník
Prístupová cesta: asfaltová cesta
|
| |||||||||||||||||||||||||||||||
Kontaktovať inzerenta e-mailom
Kontaktovať e-mailom môže iba overený užívateľ.
Overenie je zadarmo.
Vaše telefónne číslo *
Kontaktovať e-mailom môže iba overený užívateľ.
Overenie je zadarmo.
Vaše telefónne číslo *