ZNÍŽENÁ CENA Rodinný dom - holodom - Šurany (Argentína)
- TOP - [8.11. 2025]Zmazať/ Upraviť/ Topovať



























Ponúkam na predaj novostavbu 4 izbového rodinného domu na Novozámockej ulici v Šuranoch. Som MAJITEĽ. REALITKY NEVOLAŤ!!!
VHODNÉ AJ AKO INVESTÍCIA, MOŽNOSŤ DAŤ DOM DO PRENÁJMU, 3 SAMOSTATNÉ IZBY.
NA ÚPLNÉ DOKONČENIE PODĽA SVOJEJ POTREBY POTREBUJETE LEN 50tis EURO.
DOM SA PREDÁVA V STAVE AKO HO VIDÍTE NA FOTKÁCH.
Dispozícia RD: 3 samostatné izby, obývacia izba s jedálnou, kuchyňa, zádverie, technická miestnosť, 1x samostatné WC, 1x kúpeľňa, 1x kúpeľňa s WC, špajza, chodba, terasa prístupná z obývacej izby, kuchyne a detskej izby
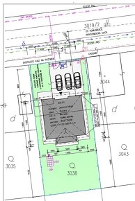
Plocha pozemku: 674m2
Zastavaná plocha: 144m2
Podlahová plocha: 121m2
Prípojky: elektrika (230/400V), voda, kanalizácia
Steny: Leierplan 30cm (obvodové), Leierplan 25cm (vnútorné nosné steny), Leierplan 11,5cm (priečky)
Okná a vstupné dvere: Slovaktual Pasiv HL (antracit/biela) 6-komorový plastový profil, zasklenie 3sklo, HST portál + vnútorné plastové parapety
Komín: Schiedel priemer 200mm – príprava na krb
Stropná konštrukcia: drevené hranoly, pochôdzna povala, strop zateplený minerálnou vatou hrúbky 40cm, zo strany interiéru je podhľad celoplošne zaklopená OSB doskami, zrealizovaná reflexná AL parozábrana
Strešná konštrukcia: klasický krov s drevenou viazanou konštrukciou, strešná krytina Danubia Inova antracit
Odkvapový systém: (žľaby, zvody) Bramac, dažďová voda je zvedená do zrealizovanej vsakovacej galérie s objemom 10m3
Vodorovná a zvislá hydroizolácia proti zemnej vlhkosti. Bleskozvod.
Oplotenie: nový betónový panelový plot výšky 2m (pravá a zadná strana), pôvodný plot (predná strana), pletivo (ľavá strana).
DOM SA PREDÁVA V STAVE AKO HO VIDÍTE NA FOTKÁCH.
Možnosť upraviť si kuchynskú linku, zásuvky, polohu WC, vane atď podľa seba. Odhadovaná cena na dokončenie do štandardu je 60tis euro.
CENA HOLODOMU: 150000 €
VHODNÉ AJ AKO INVESTÍCIA, MOŽNOSŤ DAŤ DOM DO PRENÁJMU, 3 SAMOSTATNÉ IZBY.
NA ÚPLNÉ DOKONČENIE PODĽA SVOJEJ POTREBY POTREBUJETE LEN 50tis EURO.
DOM SA PREDÁVA V STAVE AKO HO VIDÍTE NA FOTKÁCH.
Dispozícia RD: 3 samostatné izby, obývacia izba s jedálnou, kuchyňa, zádverie, technická miestnosť, 1x samostatné WC, 1x kúpeľňa, 1x kúpeľňa s WC, špajza, chodba, terasa prístupná z obývacej izby, kuchyne a detskej izby
Plocha pozemku: 674m2
Zastavaná plocha: 144m2
Podlahová plocha: 121m2
Prípojky: elektrika (230/400V), voda, kanalizácia
Steny: Leierplan 30cm (obvodové), Leierplan 25cm (vnútorné nosné steny), Leierplan 11,5cm (priečky)
Okná a vstupné dvere: Slovaktual Pasiv HL (antracit/biela) 6-komorový plastový profil, zasklenie 3sklo, HST portál + vnútorné plastové parapety
Komín: Schiedel priemer 200mm – príprava na krb
Stropná konštrukcia: drevené hranoly, pochôdzna povala, strop zateplený minerálnou vatou hrúbky 40cm, zo strany interiéru je podhľad celoplošne zaklopená OSB doskami, zrealizovaná reflexná AL parozábrana
Strešná konštrukcia: klasický krov s drevenou viazanou konštrukciou, strešná krytina Danubia Inova antracit
Odkvapový systém: (žľaby, zvody) Bramac, dažďová voda je zvedená do zrealizovanej vsakovacej galérie s objemom 10m3
Vodorovná a zvislá hydroizolácia proti zemnej vlhkosti. Bleskozvod.
Oplotenie: nový betónový panelový plot výšky 2m (pravá a zadná strana), pôvodný plot (predná strana), pletivo (ľavá strana).
DOM SA PREDÁVA V STAVE AKO HO VIDÍTE NA FOTKÁCH.
Možnosť upraviť si kuchynskú linku, zásuvky, polohu WC, vane atď podľa seba. Odhadovaná cena na dokončenie do štandardu je 60tis euro.
CENA HOLODOMU: 150000 €
|
| |||||||||||||||||||||||||||||||
Kontaktovať inzerenta e-mailom
Kontaktovať e-mailom môže iba overený užívateľ.
Overenie je zadarmo.
Vaše telefónne číslo *
Kontaktovať e-mailom môže iba overený užívateľ.
Overenie je zadarmo.
Vaše telefónne číslo *






