Na predaj: Stavebný pozemok s výhľadom na Nízke Tatry – Doln
- [14.9. 2025]Zmazať/ Upraviť/ Topovať











RE/MAX ponúka na predaj slnečný a rovinatý pozemok s výmerou 2.499 m2, situovaný v tichej časti obce Dolná Lehota (okres Brezno).
Pozemok sa nachádza v existujúcej zástavbe rodinných domov a ponúka nádherné výhľady na panorámu Nízkych Tatier.
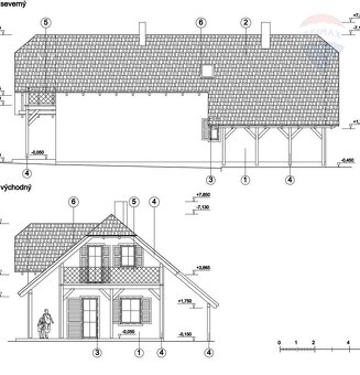
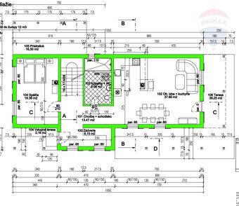
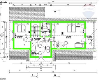
✅ Stavebné povolenie a projektová dokumentácia na rekreačný dom sú súčasťou predaja
✅ Prípojka elektriny (SSE) je zrealizovaná
✅ Verejná prístupová cesta betónová, posledných cca 100 m vedie po nespevnenej makadamovej ceste
✅ Rozmery pozemku cca 27 m × 92,5 m
✅ Bez tiarch, pripravený na výstavbu
Možnosť výstavby rodinného domu
Vzhľadom na charakter zástavby v susedstve (existujúce objekty sú vedené ako rodinné domy) je pravdepodobné, že aj na tomto pozemku bude možné postaviť rodinný dom namiesto rekreačného, v prípade vážneho záujmu Vám túto možnosť overím so stavebným úradom.
IS a prípojky
Elektrická prípojka je vybudovaná. Voda bude riešená formou vlastnej studne, odpad formou žumpy alebo domovej ČOV.
Projekt a stavebné povolenie
K pozemku je vydané stavebné povolenie z roku 2009, spolu s kompletnou projektovou dokumentáciou na výstavbu rekreačného domu. Rada vám pomôžem preveriť všetky náležitosti so stavebným úradom, vrátane možnosti výstavby rodinného domu.
Lokalita s výborným rekreačným aj obytným potenciálom
Dolná Lehota leží v regióne Horehronie, obklopená prírodou a blízko známych stredísk ako Tále, Krpáčovo, Mýto pod Ďumbierom či Chopok.
V obci nájdete obecný úrad, základnú školu, potraviny, hostince, reštauráciu, kostol, kaplnku, ihrisko aj autobusové zastávky.
Okolie ponúka bohaté možnosti aktívneho oddychu – lyžovanie, golf, turistiku, cykloturistiku, hubárčenie či výlety napríklad k vodopádom Vajskovského potoka, do Bystrianskej jaskyne alebo na Čiernohronskú železničku.
Tento pozemok je ideálny pre tých, ktorí hľadajú:
✔ pokojné miesto na výstavbu rekreačnej nehnuteľnosti
✔ alebo možnosť trvalého bývania na vidieku, v krásnej prírode
Všetko podstatné je pripravené: projekt, povolenie, elektrina, prístup. Stačí sa rozhodnúť, kedy začnete stavať.
Ozvite sa mi, rada vám poskytnem viac informácií a dohodneme si obhliadku.
Pozemok, ktorý si vás získa výhľadom aj umiestnením, je pripravený.
Pozemok sa nachádza v existujúcej zástavbe rodinných domov a ponúka nádherné výhľady na panorámu Nízkych Tatier.
✅ Stavebné povolenie a projektová dokumentácia na rekreačný dom sú súčasťou predaja
✅ Prípojka elektriny (SSE) je zrealizovaná
✅ Verejná prístupová cesta betónová, posledných cca 100 m vedie po nespevnenej makadamovej ceste
✅ Rozmery pozemku cca 27 m × 92,5 m
✅ Bez tiarch, pripravený na výstavbu
Možnosť výstavby rodinného domu
Vzhľadom na charakter zástavby v susedstve (existujúce objekty sú vedené ako rodinné domy) je pravdepodobné, že aj na tomto pozemku bude možné postaviť rodinný dom namiesto rekreačného, v prípade vážneho záujmu Vám túto možnosť overím so stavebným úradom.
IS a prípojky
Elektrická prípojka je vybudovaná. Voda bude riešená formou vlastnej studne, odpad formou žumpy alebo domovej ČOV.
Projekt a stavebné povolenie
K pozemku je vydané stavebné povolenie z roku 2009, spolu s kompletnou projektovou dokumentáciou na výstavbu rekreačného domu. Rada vám pomôžem preveriť všetky náležitosti so stavebným úradom, vrátane možnosti výstavby rodinného domu.
Lokalita s výborným rekreačným aj obytným potenciálom
Dolná Lehota leží v regióne Horehronie, obklopená prírodou a blízko známych stredísk ako Tále, Krpáčovo, Mýto pod Ďumbierom či Chopok.
V obci nájdete obecný úrad, základnú školu, potraviny, hostince, reštauráciu, kostol, kaplnku, ihrisko aj autobusové zastávky.
Okolie ponúka bohaté možnosti aktívneho oddychu – lyžovanie, golf, turistiku, cykloturistiku, hubárčenie či výlety napríklad k vodopádom Vajskovského potoka, do Bystrianskej jaskyne alebo na Čiernohronskú železničku.
Tento pozemok je ideálny pre tých, ktorí hľadajú:
✔ pokojné miesto na výstavbu rekreačnej nehnuteľnosti
✔ alebo možnosť trvalého bývania na vidieku, v krásnej prírode
Všetko podstatné je pripravené: projekt, povolenie, elektrina, prístup. Stačí sa rozhodnúť, kedy začnete stavať.
Ozvite sa mi, rada vám poskytnem viac informácií a dohodneme si obhliadku.
Pozemok, ktorý si vás získa výhľadom aj umiestnením, je pripravený.
|
|
Kontaktovať inzerenta e-mailom
Kontaktovať e-mailom môže iba overený užívateľ.
Overenie je zadarmo.
Vaše telefónne číslo *
Kontaktovať e-mailom môže iba overený užívateľ.
Overenie je zadarmo.
Vaše telefónne číslo *