Na predaj investičný pozemok v Senci, 1 032 m2
- [14.9. 2025]Zmazať/ Upraviť/ Topovať



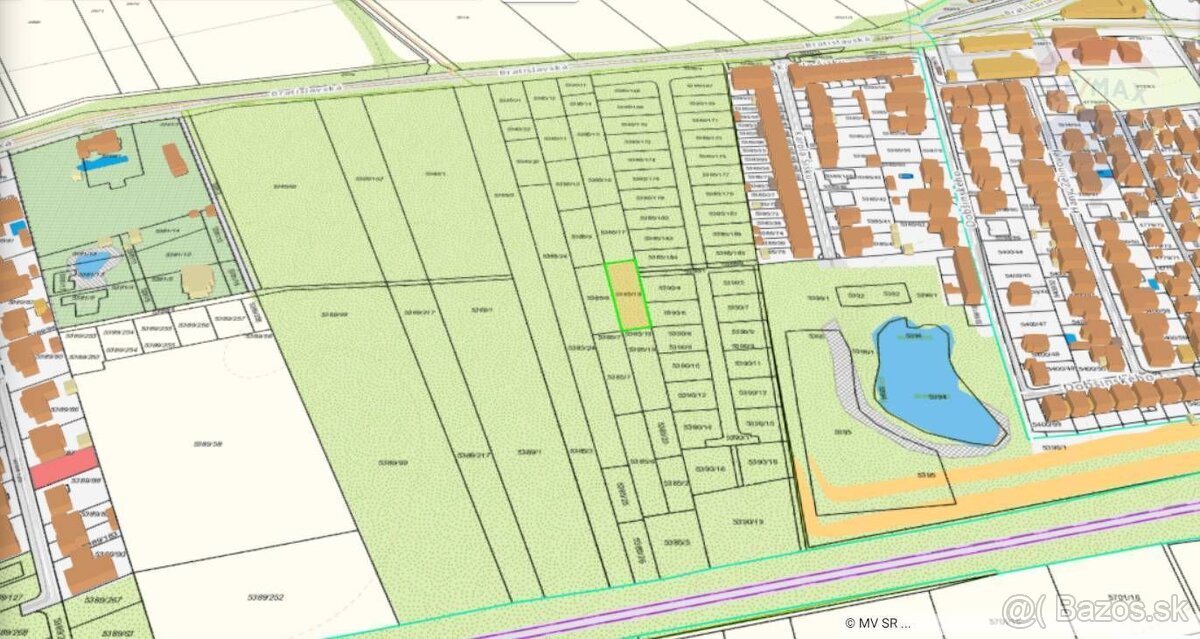
Realitná kancelária RE/MAX ponúka exkluzívne na predaj investičný pozemok v obci Senec, v blízkosti Zeleného jazera. Pozemok je rovinatý.
Rozloha pozemku celkom: 1032 m2
Druh pozemku: Záhrada
Funkčné využitie pozemku podľa ÚPI: bývanie, služby a drobné prevádzky
Šírka pozemku: 18m
Dĺžka pozemku: 57m
Územno-plánovacia informácia k dispozícii.
Max. index zastavanej plochy je 25 % stavebnými objektami, 10 % miestn. komunikáciami a max. počet podlaží je 2 nadzemné podlažia a podkrovie.
CENA: 90 000 Eur vrátane poplatkov za kompletný servis realitnej kancelárie RE/MAX s garanciou kvality ISO 17024. Bezplatne Vám vybavíme hypotekárny úver s čo najnižším úrokom.
© Text a fotografie sú autorským dielom a majetkom realitnej kancelárie RE/MAX.
Rozloha pozemku celkom: 1032 m2
Druh pozemku: Záhrada
Funkčné využitie pozemku podľa ÚPI: bývanie, služby a drobné prevádzky
Šírka pozemku: 18m
Dĺžka pozemku: 57m
Územno-plánovacia informácia k dispozícii.
Max. index zastavanej plochy je 25 % stavebnými objektami, 10 % miestn. komunikáciami a max. počet podlaží je 2 nadzemné podlažia a podkrovie.
CENA: 90 000 Eur vrátane poplatkov za kompletný servis realitnej kancelárie RE/MAX s garanciou kvality ISO 17024. Bezplatne Vám vybavíme hypotekárny úver s čo najnižším úrokom.
© Text a fotografie sú autorským dielom a majetkom realitnej kancelárie RE/MAX.
|
|
Kontaktovať inzerenta e-mailom
Kontaktovať e-mailom môže iba overený užívateľ.
Overenie je zadarmo.
Vaše telefónne číslo *
Kontaktovať e-mailom môže iba overený užívateľ.
Overenie je zadarmo.
Vaše telefónne číslo *
Podobné inzeráty

INVESTIČNÁ PRÍLEŽITOSŤ V SRDCI SENCA!
Ponúkame na predaj atraktívny pozemok s výmerou 840 m² priamo v centre Senca – ideálna voľba pre developerov, investorov alebo tých, ktorí snívajú o vlastnom bývaní v TOP lokalite.
✅ Rovinatý a slnečný pozemok
✅ Vhodný na výstavbu rodinného domu alebo m ...
100 000 €
Senec
903 01
903 01
20 x
Označiť zlý inzerát Chybnú kategóriu Ohodnotiť užívateľa Zmazať/Upraviť/Topovať

Predám/odstúpim spoluvlastnícky podiel zo stavebného pozemku v obci Tureň, katastrálne územie Zonc. Výmera je 1079m2, cena 100.000eur, bližšie info na 0948 000 738
100 000 €
Senec
903 01
903 01
244 x
Označiť zlý inzerát Chybnú kategóriu Ohodnotiť užívateľa Zmazať/Upraviť/Topovať

Predaj pozemku v katastrálnom území Senec.
Výmera 600 - 825 m2 + podiel na prístupovej ceste 161 m2.
Pozemok je v novom Územnom pláne určený na výstavbu RD.
Vhodné zatiaľ aj ako investícia, alebo dočasná záhrada.
Výhodná cena - od 58 000 Eur.
58 000 €
Senec
903 01
903 01
260 x
Označiť zlý inzerát Chybnú kategóriu Ohodnotiť užívateľa Zmazať/Upraviť/Topovať

B10 Vám exkluzívne ponúka na predaj rovinatý pozemok o rozlohe 906 m² v obci Tureň (okres Senec).Pozemok so šírkou cca 20 metrov a dĺžku približne 40 metrov, čo umožňuje širokú variabilitu pri plánovaní výstavby. Je situovaný v intraviláne obce, aktuálne ...
159 999 €
Senec
903 01
903 01
170 x
Označiť zlý inzerát Chybnú kategóriu Ohodnotiť užívateľa Zmazať/Upraviť/Topovať

Predáme v k.ú. Senec, tichá kľudná časť Svätý Martin veľký stavebný pozemok o výmere 742m2. K pozemku vedie súkromná kamenistá prístupová cesta o šírke 3m, celková výmera cesty je 628m2, pričom podiel na predaj je 1/4 (157m2). V prístupovej ceste je už položený kábel na elektrinu a potrubie na vodu ...
55 000 €
Senec
903 01
903 01
184 x
Označiť zlý inzerát Chybnú kategóriu Ohodnotiť užívateľa Zmazať/Upraviť/Topovať

!!!Vhodná investičná príležitosť!!!
JOYEL REALITY Vám Ponúka na predaj ornú pôdu (parcely registra,,C,,) s rozlohou 30.000 m2.
Tento pozemok je možné odpredať samostatne len ako čast pozemku o rozlohe 10.000m2 alebo časť pozemku o rozlohe 20.000 m2 - (pozemky sú parcelovo rozdelené).
Tieto po ...
V texte
Senec
903 01
903 01
371 x
Označiť zlý inzerát Chybnú kategóriu Ohodnotiť užívateľa Zmazať/Upraviť/Topovať

Spoločnosť LEXXUS a.s ponúka EXKLUZÍVNE na predaj väčší perspektívny stavebný pozemok určený na výstavbu rodinných domov v obľúbenej obci RECA, okres Senec.
Celková výmera pozemku, ktorý sa predáva ako celok je 6547 m2, ROZMERY : ŠÍRKA od prístupovej cesty 47m, zadnej časti 40 m, DĹŽKA 152 m respe ...
Dohodou
Senec
903 01
903 01
61 x
Označiť zlý inzerát Chybnú kategóriu Ohodnotiť užívateľa Zmazať/Upraviť/Topovať
Ponúknite
Senec
903 01
903 01
306 x
Označiť zlý inzerát Chybnú kategóriu Ohodnotiť užívateľa Zmazať/Upraviť/Topovať

Predám stavebný pozemok v Senci na striebornom jazere výmera 300m2.
85 000 €
Senec
903 01
903 01
783 x
Označiť zlý inzerát Chybnú kategóriu Ohodnotiť užívateľa Zmazať/Upraviť/Topovať

Realitná kancelária RE/MAX ponúka exkluzívne na predaj investičný pozemok v obci Senec, lokalita " Pri Bratislavskej ceste IV" v blízkosti Zeleného jazera. Pozemok je rovinatý.
Rozloha pozemku celkom: 699 m2
Druh pozemku: Ovocný sad
Funkčné využitie pozemku podľa ÚPI: bývanie, služby a drob ...
109 990 €
Senec
903 01
903 01
401 x
Označiť zlý inzerát Chybnú kategóriu Ohodnotiť užívateľa Zmazať/Upraviť/Topovať