Lokalita, priestor, pokoj - 2-izbový byt s možnosťou...
- TOP - [7.11. 2025]Zmazať/ Upraviť/ Topovať






























Hľadáte bývanie, ktoré spája veľkorysý priestor, dostatok svetla a výnimočnú polohu v širšom centre Bratislavy? Tento veľkometrážny 2-izbový byt s možnosťou úpravy na 3-izbový ponúka ideálnu kombináciu komfortu, pokoja a praktickej dostupnosti. Nachádza sa na Bazovej ulici, len pár minút chôdze od autobusovej stanice Mlynské nivy a historického centra mesta, pričom v okolí nájdete všetko, čo k pohodlnému životu potrebujete.
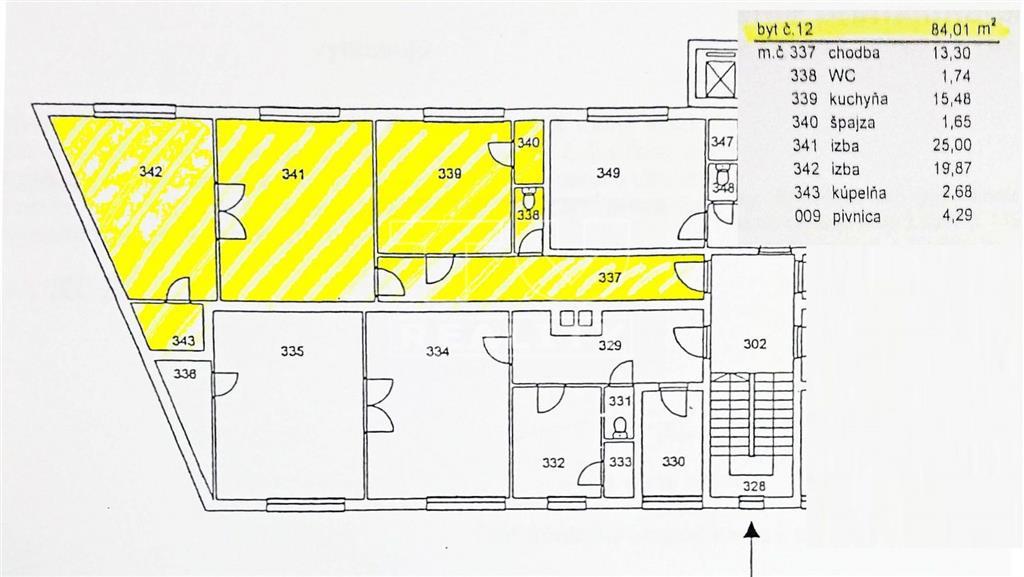
Byt s celkovou výmerou 84 m2 vrátane pivnice (4 m2) sa nachádza na 2. poschodí z troch v tehlovom dome bez výťahu a balkóna. Je orientovaný na juh, vďaka čomu je krásne presvetlený počas celého dňa. Všetky okná smerujú do tichého spoločného dvora, čo zabezpečuje súkromie a pokoj. Dispozične ponúka dlhú vstupnú chodbu, samostatné WC, kuchyňu so špajzou, obývačku a ďalšiu izbu, z ktorej sa vchádza do kúpeľne. V kuchyni sa nachádzajú vstavané spotrebiče značiek Electrolux a Gorenje, kúpeľňa je vybavená práčkou Whirlpool. Komfort bývania zvyšuje klimatizácia v každej miestnosti, elektrické konvektory a dva bojlery na ohrev vody. Bezpečnostné dvere ADLO chránia vstup do bytu, ku ktorému patrí aj pivnica a spoločná miestnosť na bicykle či kočíky. V byte boli vymenené rozvody elektriny aj plynu a doplnené vlastné merače vody. Nehnuteľnosť je v osobnom vlastníctve, bez tiarch a okamžite k dispozícii.
Bytový dom bol postavený v rokoch 1947 – 1949 a v roku 2007 prešiel obnovou – zateplením a výmenou okien. Má tehlové steny (tzv. voština), výbornú tepelnú izoláciu a stabilnú konštrukciu. Byt nie je napojený na centrálne kúrenie, čo umožňuje plnú kontrolu nad spotrebou a výdavkami. Parkovanie je možné v uzatvorenom dvore.
Lokalita patrí medzi najatraktívnejšie v Bratislave. V pešej dostupnosti máte MHD, školy, škôlky, obchody, nákupné centrá, kaviarne a služby. Vďaka blízkosti centra aj nového downtownu ide o miesto, ktoré má výnimočný charakter a zároveň ponúka pokojné bývanie.
Dispozíciu bytu je možné upraviť na trojizbovú variantu, ako znázorňuje priložená vizualizácia. Okrem navrhovanej úpravy na vizualizácii je možné byt dispozične upraviť aj iným spôsobom – vytvorením rohového kuchynského kúta v obývacej izbe a vybudovaním dvoch samostatných spální, z ktorých jedna by sa nachádzala v súčasnej kuchyni. Obe izby majú potenciál na zriadenie vlastnej kúpeľne alebo sprchového kúta.
K bytu je vypracovaná štúdia vizualizácie možnej rekonštrukcie..
Mesačné náklady sú veľmi nízke – elektrina cca 62 €, správa bytu vrátane vody a všetkých...
Byt s celkovou výmerou 84 m2 vrátane pivnice (4 m2) sa nachádza na 2. poschodí z troch v tehlovom dome bez výťahu a balkóna. Je orientovaný na juh, vďaka čomu je krásne presvetlený počas celého dňa. Všetky okná smerujú do tichého spoločného dvora, čo zabezpečuje súkromie a pokoj. Dispozične ponúka dlhú vstupnú chodbu, samostatné WC, kuchyňu so špajzou, obývačku a ďalšiu izbu, z ktorej sa vchádza do kúpeľne. V kuchyni sa nachádzajú vstavané spotrebiče značiek Electrolux a Gorenje, kúpeľňa je vybavená práčkou Whirlpool. Komfort bývania zvyšuje klimatizácia v každej miestnosti, elektrické konvektory a dva bojlery na ohrev vody. Bezpečnostné dvere ADLO chránia vstup do bytu, ku ktorému patrí aj pivnica a spoločná miestnosť na bicykle či kočíky. V byte boli vymenené rozvody elektriny aj plynu a doplnené vlastné merače vody. Nehnuteľnosť je v osobnom vlastníctve, bez tiarch a okamžite k dispozícii.
Bytový dom bol postavený v rokoch 1947 – 1949 a v roku 2007 prešiel obnovou – zateplením a výmenou okien. Má tehlové steny (tzv. voština), výbornú tepelnú izoláciu a stabilnú konštrukciu. Byt nie je napojený na centrálne kúrenie, čo umožňuje plnú kontrolu nad spotrebou a výdavkami. Parkovanie je možné v uzatvorenom dvore.
Lokalita patrí medzi najatraktívnejšie v Bratislave. V pešej dostupnosti máte MHD, školy, škôlky, obchody, nákupné centrá, kaviarne a služby. Vďaka blízkosti centra aj nového downtownu ide o miesto, ktoré má výnimočný charakter a zároveň ponúka pokojné bývanie.
Dispozíciu bytu je možné upraviť na trojizbovú variantu, ako znázorňuje priložená vizualizácia. Okrem navrhovanej úpravy na vizualizácii je možné byt dispozične upraviť aj iným spôsobom – vytvorením rohového kuchynského kúta v obývacej izbe a vybudovaním dvoch samostatných spální, z ktorých jedna by sa nachádzala v súčasnej kuchyni. Obe izby majú potenciál na zriadenie vlastnej kúpeľne alebo sprchového kúta.
K bytu je vypracovaná štúdia vizualizácie možnej rekonštrukcie..
Mesačné náklady sú veľmi nízke – elektrina cca 62 €, správa bytu vrátane vody a všetkých...
|
| |||||||||||||||||||||||||||||||
Kontaktovať inzerenta e-mailom
Kontaktovať e-mailom môže iba overený užívateľ.
Overenie je zadarmo.
Vaše telefónne číslo *
Kontaktovať e-mailom môže iba overený užívateľ.
Overenie je zadarmo.
Vaše telefónne číslo *
Podobné inzeráty
Treef ponúka 2 i byt na Hlinách v Trnave. - [6.11. 2025]Realitná kancelária Treef ponúka 2 i byt na Hlinách v Trnave .
VÝHODY NEHNUTEĽNOSTI:
• kompletne zrekonštruovaný v roku 2025 • ihneď voľný • nízke mesačné náklady • 4. poschodie – príjemná výška, dobré svetlo • bezpečnostné dvere pre maximálne pohodlie a pocit bezpečia • kuchynská linka na mieru s ...
150 900 €
Bratislava
811 01
811 01
162 x
Označiť zlý inzerát Chybnú kategóriu Ohodnotiť užívateľa Zmazať/Upraviť/Topovať
MODERNÝ 2i byt, REKONŠTRUKCIA, KLÍMA, MOZARTOVA ulica, Horsk - [6.11. 2025]Realitná kancelária PrimeReality ponúka na prenájom pekný, slnečný kompletne moderne zariadený 2i byt, po kompletnej rekonštrukcii, s klimatizáciou a pivničnou kobkou na Mozartovej ulici v Bratislave vo vyhľadávanej a tichej lokalite Horského Parku v mestskej časti Staré Mesto.
Podlahová plocha b ...
259 900 €
Bratislava
811 01
811 01
170 x
Označiť zlý inzerát Chybnú kategóriu Ohodnotiť užívateľa Zmazať/Upraviť/Topovať
AXIS REAL | 2-izbový byt, METROPOLIS, DOWN TOWN, Bottova uli - [6.11. 2025]360° VIRTUÁLNU PREHLIADKU A 3D PÔDORYS NEHNUTEĽNOSTI NÁJDETE NA: https://info.axisreal.sk/YK
POPIS BYTU:
Realitná kancelária AXIS REAL ponúka na predaj nadštandardný 2-izbový byt v ikonickom projekte METROPOLIS – výnimočnej novostavbe navrhnutej renomovaným ateliérom City Work Architects. Projek ...
324 000 €
Bratislava
811 01
811 01
37 x
Označiť zlý inzerát Chybnú kategóriu Ohodnotiť užívateľa Zmazať/Upraviť/Topovať
Realitný kancelária REALADR s.r.o. - [6.11. 2025]Na predaj 3-izbový byt s balkónom, pivnicou a samostatnou garážou
Lovinského ulica, Bratislava I – Staré Mesto
Cena: 298 000 € + garáž (cena na vyžiadanie)
Ideálne bývanie v srdci Bratislavy – pokoj, zeleň a výborná dostupnosť
Hľadáte tiché, zelené a bezpečné miesto pre život v jednej z na ...
298 000 €
Bratislava
811 01
811 01
39 x
Označiť zlý inzerát Chybnú kategóriu Ohodnotiť užívateľa Zmazať/Upraviť/Topovať
Štýlový 2-izbový byt v srdci Starého Mesta Bratislavy - [6.11. 2025]Na predaj: Štýlový 2-izbový byt v srdci Starého Mesta Bratislavy, len pár krokov od Dómu sv. Martina
Ponúkame na predaj atraktívny 2-izbový byt s rozlohou 45 m², situovaný na prestížnej adrese – na Panskej ulici priamo v historickom centre Bratislavy. Byt sa nachádza na vyvýšenom prízemí päťposch ...
269 900 €
Bratislava
811 01
811 01
43 x
Označiť zlý inzerát Chybnú kategóriu Ohodnotiť užívateľa Zmazať/Upraviť/Topovať
Na predaj: Priestranný 3,5-izbový byt - Palisády, Bratislava - [6.11. 2025]🏡 Na predaj: Priestranný 3,5-izbový byt – Palisády, Bratislava – Staré Mesto
Ponúkame na predaj krásny a priestranný 3,5-izbový byt v centre Bratislavy na vyhľadávanej adrese – Štetinova ulica, Palisády.
Byt sa nachádza v historickej budove zapísanej ako národná kultúrna pamiatka, čo mu dodáva j ...
509 000 €
Bratislava
811 01
811 01
233 x
Označiť zlý inzerát Chybnú kategóriu Ohodnotiť užívateľa Zmazať/Upraviť/Topovať
Priestranný 2 izbový byt v tichej lokalike Staré mesto 65 m2 - [5.11. 2025]TUreality ponúka na predaj priestranný 2-izbový byt s veľkou lodžiou a nádherným výhľadom v obľúbenej lokalite Horský park. Pokojné prostredie a jedinečná atmosféra tejto nehnuteľnosti vytvárajú ideálne miesto pre komfortné mestské bývanie s dušou.
Popis nehnuteľnosti
Tento priestranný 2-izbový ...
299 000 €
Bratislava
811 01
811 01
362 x
Označiť zlý inzerát Chybnú kategóriu Ohodnotiť užívateľa Zmazať/Upraviť/Topovať
Predaj 4 izbového bytu na Gunduličovej ulici - [5.11. 2025]Ponúkame na predaj 4 izbový byt na prestížnej adrese , uprostred bratislavskej histórie. Palisády, najatraktívnejšia štvrť s množstvom historických stavieb, kvalitných obchodov, reštaurácií aj útulných kaviarní a tiež s radom jedinečných kultúrnych pamiatok. Byt o rozlohe 102m2 sa nachádza na prvom ...
455 000 €
Bratislava
811 01
811 01
335 x
Označiť zlý inzerát Chybnú kategóriu Ohodnotiť užívateľa Zmazať/Upraviť/Topovať
Veľký 4 i , 2x lódzia , 2x kúpeľňa, pivnica 15m2 . - TOP - [7.11. 2025]Keď som vstúpila do tohto mimoriadneho bytu ohromil ma svojou veľkosťou ale aj zachovaním starých stavebných prvkov.
Mám síce veľmi blízko k starým veciam ale tento byt je perlou.
Veľkoplošný 4- i byt na ulici 29.augusta bude zaujímavý pre klienta, ktorý ocení bývanie v centre a je ochotný rek ...
426 000 €
Bratislava
811 01
811 01
104 x
Označiť zlý inzerát Chybnú kategóriu Ohodnotiť užívateľa Zmazať/Upraviť/Topovať
Predaj priestranného 3-izbového bytu po rekonštrukcii v... - [4.11. 2025]TUreality ponúka na predaj priestranný 3-izbový byt po 5 ročnej rekonštrukcii v lokalite Bratislava-Staré mesto. Bytový dom sa nachádza na tichej ulici v blízkosti centra mesta na Sokolskej ulici.
Ak túžite po bývaní v srdci mesta, no zároveň nechcete prísť o pokoj, zeleň a príjemnú atmosféru, t ...
359 000 €
Bratislava
811 01
811 01
330 x
Označiť zlý inzerát Chybnú kategóriu Ohodnotiť užívateľa Zmazať/Upraviť/Topovať









