Lukratívne stavebné pozemky s IS v meste Prešov
- [11.9. 2025]Zmazať/ Upraviť/ Topovať







Typ: Pozemok pre rodinné domy
Ulica: Tarjányiho
Mestská časť: Rúrky
Obec: Prešov
Hľadáte stavebný pozemok, kde nemusíte chodiť po kamenistých cestách a čakať roky na inžinierske siete?
Máme pre vás riešenie!
Ponúkame stavebné pozemky s istotou – v lokalite, kde skúsený developer zabezpečí betónovú prístupovú cestu a kompletné inžinierske siete.
Realitná kancelária Vaše nehnuteľnosti vám ponúka na predaj lukratívne pozemky v novej lokalite rezidencie Rúrky v Prešove. Pozemky sú pokračovaním developérskeho projektu rezidencie Rúrky (výstavba bytových domov) s možnosťou výstavby rodinných domov podľa vlastných predstáv. Za projektom stojí developer, ktorý aktuálne úspešne buduje rezidenciu Rúrky, a tieto pozemky sú priamym pokračovaním obľúbenej lokality – určené výhradne pre výstavbu rodinných domov
A čo je najlepšie?
Teraz platíte len 20 % zálohu, zvyšok až po kolaudácii ciest a sietí – bez rizika
INFORMÁCIE
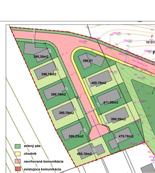
k dispozícii 11 pozemkov
rozloha pozemkov od 390 po 480 m2
betónová prístupová cesta
chodníky, verejné osvetlenie
inžinierske siete - verejná kanalizácia, vodovod, elektrika
LOKALITA
Najlepšie miesto na život v Prešove, na Sídlisku 3. Kompletné občianske zázemie v pešej päťminútovej dostupnosti na najzelenšom sídlisku. Rúrky sú v objatí zelene, ktorá zabezpečí svojim obyvateľom zdravý vzduch a nespočetné množstvo príležitostí na oddych.
na skok od najzelenšieho sídliska v Prešove
MHD zástavka priamo v rezidencii Rúrky
12 základných a materských škôlok v dosahu 5 minút autom
blízke napojenie na D1 Prešov - Košice, Prešov - Poprad
blízke napojenie na cyklistycký chodník
FINANCOVANIE
vyberte si pozemok
podpis zmluvy o budúcej kúpnej zmluve
úhrada 20% z kúpnej ceny ako záloha
zvyšná časť kúpnej ceny až po skolaudovaní prístupovej cesta a inžinierskych sieti
Kvalitná infraštruktúra, istota a rozumné financovanie – to je ponuka, ktorá sa neodmieta.
Kontaktujte nás a rezervujte si svoj pozemok ešte dnes!
Status: aktívne
Vlastníctvo: firemné
Plocha pozemku: 389.23 m2
Typ zeme: mierne svahovitá
Teritórium: Extravilán
Šírka pozemku: 18 m
Dĺžka pozemku: 21,6 m
Celková plocha: 389 m2
Orientácia: juhovýchod
Inžinierske siete: áno
Voda: áno
Elektrika: áno
Kanalizácia: áno
Voda - na pozemku: áno
Elektrika - na pozemku: áno
Kanalizácia - na pozemku - kanalizácia: áno
Optická sieť: áno
Ulica: Tarjányiho
Mestská časť: Rúrky
Obec: Prešov
Hľadáte stavebný pozemok, kde nemusíte chodiť po kamenistých cestách a čakať roky na inžinierske siete?
Máme pre vás riešenie!
Ponúkame stavebné pozemky s istotou – v lokalite, kde skúsený developer zabezpečí betónovú prístupovú cestu a kompletné inžinierske siete.
Realitná kancelária Vaše nehnuteľnosti vám ponúka na predaj lukratívne pozemky v novej lokalite rezidencie Rúrky v Prešove. Pozemky sú pokračovaním developérskeho projektu rezidencie Rúrky (výstavba bytových domov) s možnosťou výstavby rodinných domov podľa vlastných predstáv. Za projektom stojí developer, ktorý aktuálne úspešne buduje rezidenciu Rúrky, a tieto pozemky sú priamym pokračovaním obľúbenej lokality – určené výhradne pre výstavbu rodinných domov
A čo je najlepšie?
Teraz platíte len 20 % zálohu, zvyšok až po kolaudácii ciest a sietí – bez rizika
INFORMÁCIE
k dispozícii 11 pozemkov
rozloha pozemkov od 390 po 480 m2
betónová prístupová cesta
chodníky, verejné osvetlenie
inžinierske siete - verejná kanalizácia, vodovod, elektrika
LOKALITA
Najlepšie miesto na život v Prešove, na Sídlisku 3. Kompletné občianske zázemie v pešej päťminútovej dostupnosti na najzelenšom sídlisku. Rúrky sú v objatí zelene, ktorá zabezpečí svojim obyvateľom zdravý vzduch a nespočetné množstvo príležitostí na oddych.
na skok od najzelenšieho sídliska v Prešove
MHD zástavka priamo v rezidencii Rúrky
12 základných a materských škôlok v dosahu 5 minút autom
blízke napojenie na D1 Prešov - Košice, Prešov - Poprad
blízke napojenie na cyklistycký chodník
FINANCOVANIE
vyberte si pozemok
podpis zmluvy o budúcej kúpnej zmluve
úhrada 20% z kúpnej ceny ako záloha
zvyšná časť kúpnej ceny až po skolaudovaní prístupovej cesta a inžinierskych sieti
Kvalitná infraštruktúra, istota a rozumné financovanie – to je ponuka, ktorá sa neodmieta.
Kontaktujte nás a rezervujte si svoj pozemok ešte dnes!
Status: aktívne
Vlastníctvo: firemné
Plocha pozemku: 389.23 m2
Typ zeme: mierne svahovitá
Teritórium: Extravilán
Šírka pozemku: 18 m
Dĺžka pozemku: 21,6 m
Celková plocha: 389 m2
Orientácia: juhovýchod
Inžinierske siete: áno
Voda: áno
Elektrika: áno
Kanalizácia: áno
Voda - na pozemku: áno
Elektrika - na pozemku: áno
Kanalizácia - na pozemku - kanalizácia: áno
Optická sieť: áno
|
|
Kontaktovať inzerenta e-mailom
Kontaktovať e-mailom môže iba overený užívateľ.
Overenie je zadarmo.
Vaše telefónne číslo *
Kontaktovať e-mailom môže iba overený užívateľ.
Overenie je zadarmo.
Vaše telefónne číslo *