Stavebný pozemok v Leviciach s projektom pre rodinný dom
- [7.9. 2025]Zmazať/ Upraviť/ Topovať












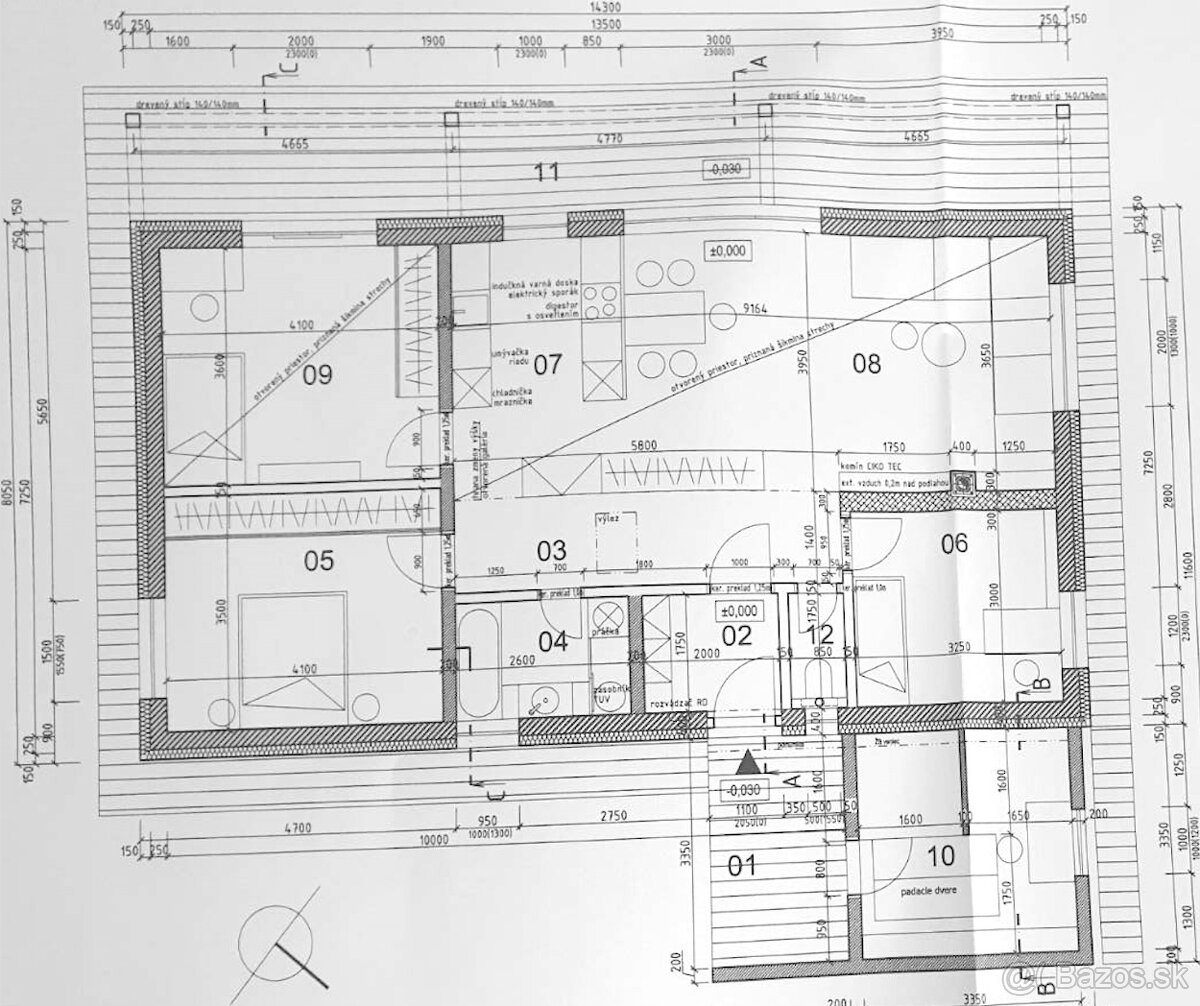
Ponúkame na predaj oplotený, slnečný pozemok s výmerou 17 árov (rozmery 22 x 80 m) v pokojnej lokalite na Ul. horný Urban v Leviciach. Pozemok je pripravený na výstavbu – nachádzajú sa na ňom vybudované základy pre rodinný dom s rozmermi 14,2 x 8,1 m, vrátane pivnice.
-Kompletná projektová dokumentácia
-Schválené jednania so všetkými dotknutými orgánmi (
-Elektrická prípojka a voda priamo na pozemku
-Na pozemku sa nachádza aj záhradná chatka
Výborná poloha, prístupová cesta spevnená, tiché prostredie a slnečná orientácia robia z tohto pozemku ideálne miesto na bývanie.
Lokalita: Horný Urban
Výmera: cca 1 700 m²
Projekt: súčasť predaja
Neváhajte nás kontaktovať pre viac informácií alebo obhliadku.
-Kompletná projektová dokumentácia
-Schválené jednania so všetkými dotknutými orgánmi (
-Elektrická prípojka a voda priamo na pozemku
-Na pozemku sa nachádza aj záhradná chatka
Výborná poloha, prístupová cesta spevnená, tiché prostredie a slnečná orientácia robia z tohto pozemku ideálne miesto na bývanie.
Lokalita: Horný Urban
Výmera: cca 1 700 m²
Projekt: súčasť predaja
Neváhajte nás kontaktovať pre viac informácií alebo obhliadku.
|
| |||||||||||||||||||||||||||||||
Kontaktovať inzerenta e-mailom
Kontaktovať e-mailom môže iba overený užívateľ.
Overenie je zadarmo.
Vaše telefónne číslo *
Kontaktovať e-mailom môže iba overený užívateľ.
Overenie je zadarmo.
Vaše telefónne číslo *
Podobné inzeráty
Predám stavebný pozemok/pozemky 14 km od Levíc - [1.11. 2025]Predám pozemok v obci Bory vo výmere 60 árov. Pozemok je vhodný pre individuálnu bytovú výstavbu, prípadne na výstavbu bytových domov. Na pozemku je možné postaviť 3 až 4 rodinné domy, resp. 2 - 3 bytovky. Inžinierske siete - elektrina, plyn sú pred pozemkom. Na pozemku sa nachádza studňa. Verejná k ...
V texte
Levice
934 01
934 01
397 x
Označiť zlý inzerát Chybnú kategóriu Ohodnotiť užívateľa Zmazať/Upraviť/Topovať
Predám- Pozemok pivničná ulica, Levice - [1.11. 2025]Predám pozemok na Pivničnej ulici v Leviciach. Pozemok je priechodný z oboch strán. Výmera pozemku je 3154 m2. Na pozemku sa nachádza zachovaná tesaná pivnica. Možnosť rozdeliť na dva samostatne pozemky.
250 000 €
Levice
934 01
934 01
396 x
Označiť zlý inzerát Chybnú kategóriu Ohodnotiť užívateľa Zmazať/Upraviť/Topovať
Na predaj: Stavebný pozemok s výhľadom v meste Levice - [31.10. 2025]Realitná spoločnosť Time4dreams Vám ponúka na predaj stavebný pozemok v okresnom meste Levice.
Nachádza sa v okrajovej časti mesta plnej zelene. Poskytuje ideálne podmienky na rekreačné a trvalé bývanie. Pozemok je slnečný a mierne svahovitý. V okolí je rozsiahla výstavba domov. Je možné ho kúpiť ...
159 460 €
Levice
934 01
934 01
55 x
Označiť zlý inzerát Chybnú kategóriu Ohodnotiť užívateľa Zmazať/Upraviť/Topovať
Na predaj: Stavebný pozemok s výhľadom + IS v Leviciach - [31.10. 2025]Realitná spoločnosť Time4dreams Vám ponúka na predaj stavebný pozemok v okresnom meste Levice.
Nachádza sa v okrajovej časti mesta plnej zelene. Poskytuje ideálne podmienky na rekreačné a trvalé bývanie. Pozemok je slnečný a mierne svahovitý. V okolí je rozsiahla výstavba domov. Je možné dokúpiť ...
95 000 €
Levice
934 01
934 01
67 x
Označiť zlý inzerát Chybnú kategóriu Ohodnotiť užívateľa Zmazať/Upraviť/Topovať
Na predaj: Rekreačný pozemok v obci Pukanec - [31.10. 2025]Realitná spoločnosť Time4dreams Vám ponúka na predaj stavebný pozemok vo výmere 2356m2 v rekreačnej obci Pukanec, neďaleko okresného mesta Levice.
Nachádza sa v lokalite plnej zelene s krásnym výhľadom na Štiavnické vrchy, samotnú obec a okolitú prírodu. Poskytuje ideálne podmienky na rekreačné a ...
94 240 €
Levice
934 01
934 01
51 x
Označiť zlý inzerát Chybnú kategóriu Ohodnotiť užívateľa Zmazať/Upraviť/Topovať
Stavebný pozemok 2.300 m2, Levice (SM – 848) - TOP - [3.11. 2025]J&MZ reality ponúka na predaj stavebný pozemok o celkovej výmere 2.336 m2 v okrajovej časti Levíc, ulica Svätý Ján, smer Kalinčiakovo.
INŽINIERSKE SIETE sú na hranici pozemku od hlavnej prístupovej cesty: ELEKTRINA, OBECNÝ VODOVOD, KANALIZÁCIA.
Územnoplánovacia informácia je k dispozícii.
Š ...
199 000 €
Levice
934 01
934 01
76 x
Označiť zlý inzerát Chybnú kategóriu Ohodnotiť užívateľa Zmazať/Upraviť/Topovať
Miesto pre váš nový dom – pozemok v obľúbenej lokalite Levíc - [29.10. 2025]Ponúkame Vám na predaj atraktívny stavebný pozemok v jednej z najobľúbenejších lokalít mesta Levice – na Moyzesovej ulici.
Pozemok s výmerou 570 m² je rovinatý, slnečný a oplotený, so všetkými inžinierskymi sieťami priamo na pozemku.
Svojou šírkou cca 16 m a dĺžkou 36 m ponúka ideálne rozmery ...
Dohodou
Levice
934 01
934 01
418 x
Označiť zlý inzerát Chybnú kategóriu Ohodnotiť užívateľa Zmazať/Upraviť/Topovať
Stavebný pozemok 1377 m2 v lukratívnej časti mesta - [28.10. 2025]Ponúkame na predaj stavebný pozemok v Leviciach, časť Kalinčiakovo. Pozemok sa nachádza v blízkosti obľúbeného kúpaliska Margita - Ilona v tichej a nádhernej lokalite.
Pozemok tvoria 2 stavebné pozemky o rozlohe ďalej, 681m2 a 696m2, a je možné nadobudnúť pozemky aj samostatne. Pozemok sa nachdáza ...
100 000 €
Levice
934 01
934 01
368 x
Označiť zlý inzerát Chybnú kategóriu Ohodnotiť užívateľa Zmazať/Upraviť/Topovať
Stavebný pozemok Levice - [27.10. 2025]Ponúkame na predaj stavebný pozemok o výmere 706 m2 v širšom centre mesta Levice v tichšej lokalite medzi rodinnými domami. Na uvedenom pozemku sa aktuálne nachádzajú 2 staré menšie stavby bez základov. Inžinierske siete elektrika, voda sú potiahnuté na pozemok, plynová prípojka na hranici pozemku, ...
80 000 €
Levice
934 01
934 01
341 x
Označiť zlý inzerát Chybnú kategóriu Ohodnotiť užívateľa Zmazať/Upraviť/Topovať
Dohodou
Levice
934 01
934 01
470 x
Označiť zlý inzerát Chybnú kategóriu Ohodnotiť užívateľa Zmazať/Upraviť/Topovať
