Prenajmeme sklady v Matine býv. Agrostav
- [19.8. 2025]Zmazať/ Upraviť/ Topovať











Prenajmeme rôzne sklady v Matine, od 1.7.2025
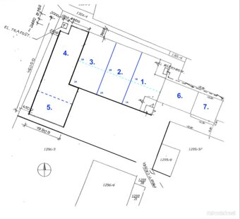
Prenajmeme rôzne sklady a haly v Matine, bývalý Agrostav alebo celý objekt spolu. Vhodné na e-shop, sklad pneumatík, nábytku, klampiarska výroba, strojárska výrova, predaj ocele, ...
Spolu cely objekt: ako v popise
Jednotlivo:
Hala č. 4. - 520 m2 - zateplena, WC, 2 kancelárie- 2100 eur/mesiac
video link: https://youtu.be/K8oGMGRpIj0
Hala č. 5. - 200 m2 - zateplena, WC, sprcha, 2 kancelárie - 800 eur/mesiac
video link: https://youtu.be/GTyGM2pe65w
Plocha na Parkovanie, manipuláciu s tovarom pre 4. a 5. 200 m2
TRAFOSTANICA PRIAMO NA POZEMKU
Sklad č. 7. - 148 m2 - čiastočne zatepleny, WC, kuchynka k dispozícii, s rampou - 300 eur/mesiac
Plocha na Parkovanie, manipuláciu s tovarom 60 m2
Prenajmeme rôzne sklady a haly v Matine, bývalý Agrostav alebo celý objekt spolu. Vhodné na e-shop, sklad pneumatík, nábytku, klampiarska výroba, strojárska výrova, predaj ocele, ...
Spolu cely objekt: ako v popise
Jednotlivo:
Hala č. 4. - 520 m2 - zateplena, WC, 2 kancelárie- 2100 eur/mesiac
video link: https://youtu.be/K8oGMGRpIj0
Hala č. 5. - 200 m2 - zateplena, WC, sprcha, 2 kancelárie - 800 eur/mesiac
video link: https://youtu.be/GTyGM2pe65w
Plocha na Parkovanie, manipuláciu s tovarom pre 4. a 5. 200 m2
TRAFOSTANICA PRIAMO NA POZEMKU
Sklad č. 7. - 148 m2 - čiastočne zatepleny, WC, kuchynka k dispozícii, s rampou - 300 eur/mesiac
Plocha na Parkovanie, manipuláciu s tovarom 60 m2
|
|
Kontaktovať inzerenta e-mailom
Kontaktovať e-mailom môže iba overený užívateľ.
Overenie je zadarmo.
Vaše telefónne číslo *
Kontaktovať e-mailom môže iba overený užívateľ.
Overenie je zadarmo.
Vaše telefónne číslo *
Podobné inzeráty

AstonReal ponúka EXKLUZÍVNE na prenájom skladový/výrobný priestor, ku ktorému prináleží aj vonkajšia plocha s parkovaním. Skladový priestor sa nachádza v priemyselnej zóne ZŤS pri Teplárni v Martine. Priama dostupnosť z obchvatu Martina je cca 500 m.
V týchto priestoroch sa nachádzajú dokopy 3 h ...
3 250 €
Martin
036 01
036 01
47 x
Označiť zlý inzerát Chybnú kategóriu Ohodnotiť užívateľa Zmazať/Upraviť/Topovať

📦 Ponúkame na prenájom skladovú halu s výmerou cca 40 × 33 m (1 320 m²).
📍 Hala sa nachádza vo Vrútkach, ul. Dielenská Kružná (pri vlakovej stanici).
🏢 Dispozícia haly:
🗂️ 7 miestností vrátane administratívnej miestnosti
🚻 2× WC + možnosť vybudovania ďalších 2 WC (samostatné priestory pre dámy ...
3 300 €
Martin
036 01
036 01
295 x
Označiť zlý inzerát Chybnú kategóriu Ohodnotiť užívateľa Zmazať/Upraviť/Topovať

Ponúkam do prenájmu novú halu v bývalom areáli ZTS. Pre bližšie info volajte . Cena je bez dph
1 800 €
Martin
036 01
036 01
84 x
Označiť zlý inzerát Chybnú kategóriu Ohodnotiť užívateľa Zmazať/Upraviť/Topovať

Reality AK ponúka na prenájom sklad v Martin o ploche 370 m2 a kancelárie 100 m2.
Výška skladu cca 6 m.
Vykurovanie je spoločné rozpočítané podľa plochy.
Elektrika a voda podľa skutočných nákladov, podružné meranie.
Sklad sa nachádza v blízkosti hlavnej cesty s dobrým napojením na diaľnicu.
Do ...
2 000 €
Martin
036 01
036 01
207 x
Označiť zlý inzerát Chybnú kategóriu Ohodnotiť užívateľa Zmazať/Upraviť/Topovať

Prenajmeme rôzne sklady a haly v Matine, bývalý Agrostav alebo celý objekt spolu. Vhodné na e-shop, sklad pneumatík, nábytku, klampiarska výroba, strojárska výrova, predaj ocele, ... Ku skladom vedie nová asfaltová cesta. Brány sú elektrické na diaľkové ovládanie.
Spolu cely objekt: ako v popise
J ...
3 000 €
Martin
036 01
036 01
213 x
Označiť zlý inzerát Chybnú kategóriu Ohodnotiť užívateľa Zmazať/Upraviť/Topovať