Ponuka priamo od majiteľa - 5 izbové novostavby v Rohožníku
- [13.8. 2025]Zmazať/ Upraviť/ Topovať











VO VÝSTAVBE! Nová štvrť pre nový začiatok. Bývajte moderne, úsporne a v harmónii s prírodou. Objavte nový level komfortu a pohody v malebnej obci Rohožník.
V obci Rohožník vzniká moderná a pokojná štvrť rodinných 5-izbových dvojdomov. Ideálne miesto pre rodinný život v tesnej blízkosti prírody, no zároveň s výbornou dostupnosťou do mesta. Buďte pri tom, čo tvorí skutočný pocit domova.
HLAVNÉ BENEFITY
• 5-izbové moderné dvojdomy
• Špeciálna uvádzacia cena pre prvých záujemcov
• Atraktívna novovybudovaná lokalita
• Komplet nová infraštruktúra – voda, kanalizácia, elektrina, internet
• Výborná poloha v blízkosti prírody
• Rýchla dostupnosť do mesta
• Nízkoenergetické riešenia
• Výstavba z kvalitných materiálov
• Dokončenie do prevedenia HOLODOM, ŠTANDARD alebo KOMPLET ZARIADENÝ
• Možnosť zariadiť si dom podľa vlastných predstáv a vytvoriť si domov snov
• Veľkorysá úžitková plocha 101 m²
• Ideálny pozemok cca 300 m²
• Skvelé miesto na relax a oddych na vlastnej terase so záhradkou
• Oplotený pozemok a zámková dlažba
• Výborná dispozícia domu rozdelená na dennú a nočnú zónu
• Podlahové vykurovanie
• Predpríprava na klimatizáciu, exteriérové žalúzie a alarm
• Predpríprava na krb
• Parkovanie priamo pred domom
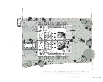
DISPOZÍCIA DOMU
1. podlažie – denná zóna:
• Zádverie, chodba
• Pracovňa alebo hosťovská izba
• Samostatná toaleta
• Práčovňa a technická miestnosť alebo sklad
• Priestranná kuchyňa s jedálňou spojená s obývačkou
• Schodisko
• Výstup na terasu a záhradu
2. podlažie – nočná zóna:
• Chodba
• 2 detské izby
• Spálňa
• Priestranná kúpeľňa s toaletou
• Dostatočný úložný priestor – možnosť vstavaných skríň
PARAMETRE V PREVEDENÍ HOLODOM
Súčasťou ceny sú:
•Dvojdom bude predelený dvomi obvodovými múrmi s izoláciou
•Kvalitná murovaná konštrukcia s dôrazom na tepelnú a zvukovú izoláciu
•Fasádna izolácia pre najvyšší komfort
•Plastové okná s trojsklom
•Hliníkové bezpečnostné vchodové dvere
•Elektrické podlahové vykurovanie s termostatom
•Predpríprava na klimatizáciu, exteriérové žalúzie a alarm
•Biele interiérové omietky
•Betónové podlahy, schody
•Oplotenie pozemku
•Vlastná terasa a záhradka
•Parkovanie pred domom – zámková dlažba
•Rozvody: elektrina, voda, kanalizácia, internet
•Zásobník na ohrev vody
V obci Rohožník vzniká moderná a pokojná štvrť rodinných 5-izbových dvojdomov. Ideálne miesto pre rodinný život v tesnej blízkosti prírody, no zároveň s výbornou dostupnosťou do mesta. Buďte pri tom, čo tvorí skutočný pocit domova.
HLAVNÉ BENEFITY
• 5-izbové moderné dvojdomy
• Špeciálna uvádzacia cena pre prvých záujemcov
• Atraktívna novovybudovaná lokalita
• Komplet nová infraštruktúra – voda, kanalizácia, elektrina, internet
• Výborná poloha v blízkosti prírody
• Rýchla dostupnosť do mesta
• Nízkoenergetické riešenia
• Výstavba z kvalitných materiálov
• Dokončenie do prevedenia HOLODOM, ŠTANDARD alebo KOMPLET ZARIADENÝ
• Možnosť zariadiť si dom podľa vlastných predstáv a vytvoriť si domov snov
• Veľkorysá úžitková plocha 101 m²
• Ideálny pozemok cca 300 m²
• Skvelé miesto na relax a oddych na vlastnej terase so záhradkou
• Oplotený pozemok a zámková dlažba
• Výborná dispozícia domu rozdelená na dennú a nočnú zónu
• Podlahové vykurovanie
• Predpríprava na klimatizáciu, exteriérové žalúzie a alarm
• Predpríprava na krb
• Parkovanie priamo pred domom
DISPOZÍCIA DOMU
1. podlažie – denná zóna:
• Zádverie, chodba
• Pracovňa alebo hosťovská izba
• Samostatná toaleta
• Práčovňa a technická miestnosť alebo sklad
• Priestranná kuchyňa s jedálňou spojená s obývačkou
• Schodisko
• Výstup na terasu a záhradu
2. podlažie – nočná zóna:
• Chodba
• 2 detské izby
• Spálňa
• Priestranná kúpeľňa s toaletou
• Dostatočný úložný priestor – možnosť vstavaných skríň
PARAMETRE V PREVEDENÍ HOLODOM
Súčasťou ceny sú:
•Dvojdom bude predelený dvomi obvodovými múrmi s izoláciou
•Kvalitná murovaná konštrukcia s dôrazom na tepelnú a zvukovú izoláciu
•Fasádna izolácia pre najvyšší komfort
•Plastové okná s trojsklom
•Hliníkové bezpečnostné vchodové dvere
•Elektrické podlahové vykurovanie s termostatom
•Predpríprava na klimatizáciu, exteriérové žalúzie a alarm
•Biele interiérové omietky
•Betónové podlahy, schody
•Oplotenie pozemku
•Vlastná terasa a záhradka
•Parkovanie pred domom – zámková dlažba
•Rozvody: elektrina, voda, kanalizácia, internet
•Zásobník na ohrev vody
|
|
Kontaktovať inzerenta e-mailom
Kontaktovať e-mailom môže iba overený užívateľ.
Overenie je zadarmo.
Vaše telefónne číslo *
Kontaktovať e-mailom môže iba overený užívateľ.
Overenie je zadarmo.
Vaše telefónne číslo *
Podobné inzeráty

Hľadáte priestranný rodinný dom v pokojnej lokalite s výbornou dostupnosťou? Tento dom v Rohožníku je ideálnou voľbou pre rodiny aj ako investícia! Veľký pozemok, praktická dispozícia a možnosť prispôsobiť si ho podľa vlastných predstáv robia z tejto nehnuteľnosti skvelú príležitosť.
Popis nehnut ...
199 999 €
Malacky
906 38
906 38
569 x
Označiť zlý inzerát Chybnú kategóriu Ohodnotiť užívateľa Zmazať/Upraviť/Topovať

Realitná kancelária ARCHEUS Bratislava ponúka exkluzívne na predaj výnimočný rodinný dom ktorý prešiel čiastočnou rekonštrukciou s pripraveným podkrovím na zobytnenie, rozsiahlou záhradou a dvojgarážou. To všetko v obľúbenej dedine na Záhorí - Rohožník.
Máme tu rodinný dom s veľkým a krásnym ...
205 000 €
Malacky
906 38
906 38
481 x
Označiť zlý inzerát Chybnú kategóriu Ohodnotiť užívateľa Zmazať/Upraviť/Topovať